2-к, Толмачевский Б. переулок, 5 ст1 Показать на карте
Третьяковская, 5 мин
Москва
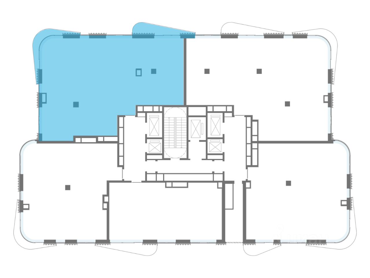
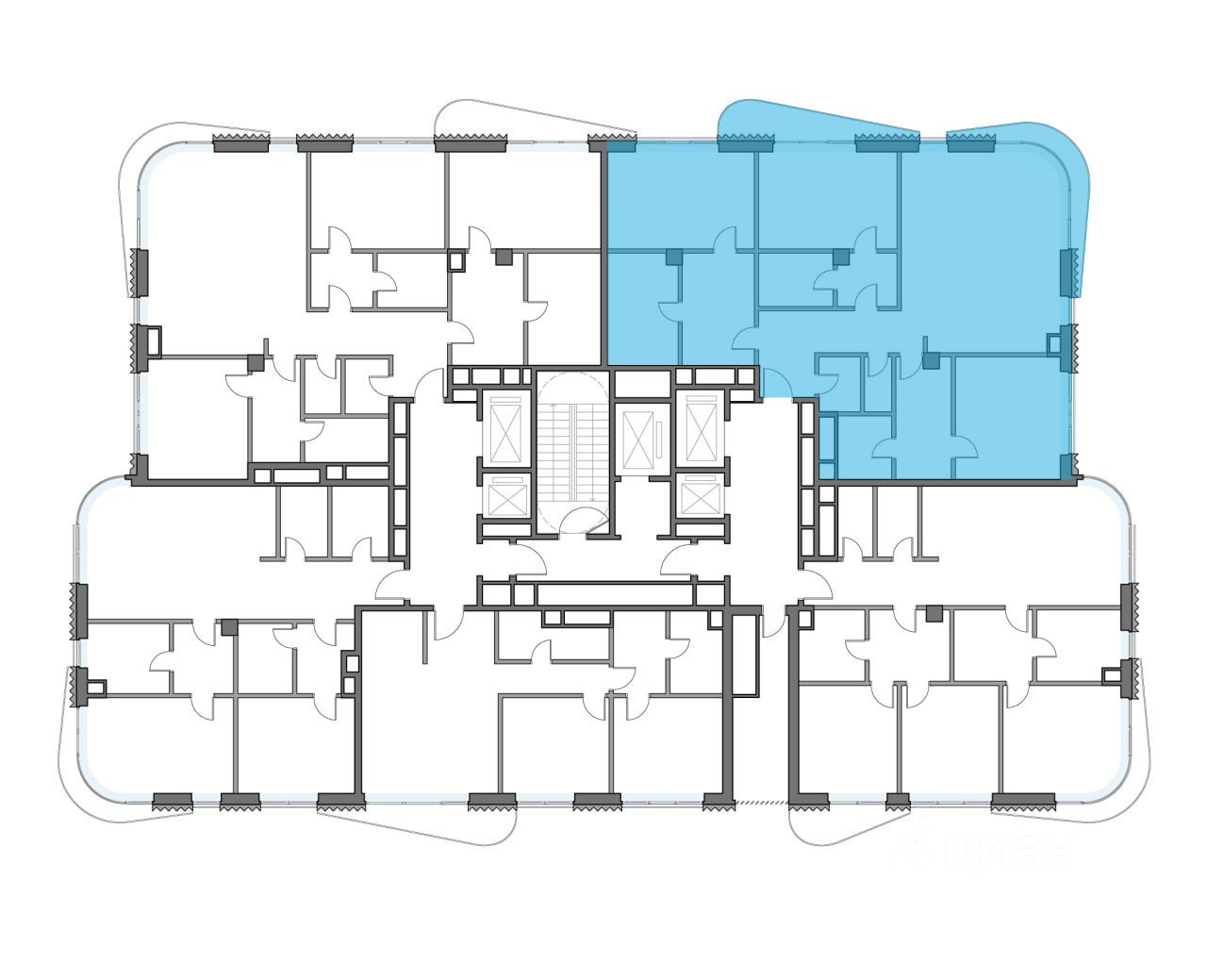
Роскошный пентхаус площадью 164 м² с террасой и дровяным камином на 14 этаже восточного корпуса дома ''Лаврушинский''.Пентхаус - редкий, коллекционный и самый дорогой формат жизни для тех, кто ценит высоту и простор для взгляда• Прямые виды на Замоскворечье и исторический центр города • Площадь пентхауса -164 м²• Площадь террасы - 172 м²• Высота потолков - 3,8 м²• Возможность размещения до двух спален• Кухня-гостиная с дровяным каминомО пентхаусе в доме ''Лаврушинский''Пространство пентхауса выстроено так, чтобы естественно подстраиваться под ваш ритм жизни. Планировка позволяет гибко организовать жилые сценарии и спланировать индивидуальные гардеробные и ванные комнаты для спален, сохраняя комфорт и приватность. В гостиной можно установить дровяной камин, создающий уютную атмосферу загородного пространства.Просторные террасы пентхаусов дарят ощущение полёта над городом. Они созданы, чтобы встречать здесь рассветы, устраивать тихие ужины или яркие вечеринки с потрясающими видами. Здесь хватит места для барбекю, летней кухни, уютной зоны отдыха, занятий спортом на открытом воздухе или собственного сада. Вы можете разместить на террасе хот-таб - собственное спа под открытым небом, чтобы расслабиться после деловой встречи или тренировки, полюбоваться рассветом и устроить свидание с видом на город.Жителям доступна вся инфраструктура и премиальные сервисы дома ''Лаврушинский'', включая Clubhouse: фитнес с 25-метровым бассейном и спа, пространства для отдыха и продуманную детскую инфраструктуру, в одном километре от Кремля, в глубине собственного двора-парка площадью 1,4 гектара.Пространство для жизни без компромиссов и ограничений - с общей площадью 336 м², включая террасу.Девелопер проекта Sminex - лидер на рынке премиальных и элитных домов Москвы. С 2001 года построили более 100 проектов площадью 12 млн м² - покупатели выбирают у нас каждую третью квартиру в этом сегменте.
164 м2
14 / 14 этаж
Монолит
- Показать контакты
- Добавить в избранное
164 м2
14 / 14 этаж
Монолит
1 030 550 000
6 283 841 /м2
Новостройка,
дом сдан
дом сдан
