2-к, Автомобильный проезд, 4 Показать на карте
Калитники, 6 мин
Москва
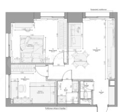
Id 63068. 2-комнатные апартаменты в Nice Loft — панорамное окно в гостинойПродаются апартаменты с удобной и продуманной планировкой в ЖК Nice Loft. Формат полноценной 2-комнатной квартиры — редкое предложение для комплекса.Главное преимущество — панорамное окно в гостиной, за счёт чего пространство наполнено светом и выглядит значительно шире.Планировка включает изолированную спальню и гостиную, а также два санузла — комфортно как для собственного проживания, так и для семьи.Отличный вариант и с точки зрения инвестиции: такие форматы хорошо сдаются за счёт планировки и функционала.Nice Loft — современный апарт-комплекс с концепцией активной городской жизни:дизайнерские лобби, охрана, спортивный кластер, фитнес-пространства и коммерческая инфраструктура внутри комплекса.Удобная транспортная доступность и близость к центру Москвы.Звоните — расскажу подробнее и организую показ.
43 м2
6 / 21 этаж
Кирпич - монолит
- Показать контакты
- Добавить в избранное
43 м2
6 / 21 этаж
Кирпич - монолит
15 000 000
345 622 /м2
