logo
N1.RU — новая улучшенная версия Е1.Недвижимость
Чтобы вернуться на старый сайт Е1.Недвижимость, перейдите по ссылке в нижней части сайта N1.RU
  • Продажа
  • Аренда
  • Новостройки
  • Журнал
  • Компании
  • Шаблоны документов
  • Налоговый вычет
  • Еще
  • Личный кабинет
    • Регистрация на Циан
    • Москва
  • Добавить объявление
Тип недвижимости
Москва
Начните вводить или выберите объект в выпадающем списке
  • Метро
  • Район и микрорайон
Количество комнат
Цена
  1. Недвижимость в Москве
  2. Продажа
  3. Квартиры
  4. 53 объявления

Продажа квартир рядом с метро Черкизовская

  • Вторичка45
  • Новостройки8
  • Без посредников8
За все время
Сортировка по умолчанию
СпискомСписком
ТаблицейТаблицей
На картеНа карте
Открыть поиск по карте

По вашему запросу объявлений не найдено

1/21
2-к, Амурская, 2 корп. 1 Показать на карте
Локомотив, 5 мин
Москва
Лот 49074910. Предлагаем уютную свежесданную (ключи получены в феврале) двухкомнатную квартиру (практически ''евротрешку'') в одной из самых высоких и технологичных новостроек Москвы жилом комплексе ''Амурский парк''. Общая площадь 45,2 м2 распределена с максимальной пользой: две изолированные комнаты (9.7 и 11.5 м2), что обеспечивает приватность для всех членов семьи, и объединенная кухня-гостиная площадью 14,9 м2. Квартира расположена на 9 этаже 28-этажного монолитного корпуса с высокими потолками 2.8 м, что создает ощущение простора и наполняет помещения светом. Окна выходят на улицу и во двор, открывая динамичный городской пейзаж. Объект сдан в 2025 году и предлагается с чистовой отделкой и готовым ремонтом, включающим подготовку под уже заказанную кухню, что позволит новым владельцам сохранить время и средства. В доме предусмотрены четыре современных лифта (два пассажирских и два грузовых), а также подземный паркинг для вашего автомобиля.Локация является одним из ключевых преимуществ. Вы сможете пешком дойти до станций метро ''Бульвар Рокоссовского'' и ''Черкизовская'' всего за 3-4 минуты, а доехать до ''Преображенской площади'' 5 минут на транспорте. Район обладает развитой инфраструктурой: в шаговой доступности находятся парк ''Сокольники'', Лосиный Остров, торговые центры, клиники, школы и детские сады. Это идеальный баланс между транспортной доступностью центра и спокойной жилой средой.Квартира отлично подходит и для молодой семьи так, и для инвестора как высоколиквидный актив в перспективном комплексе с возможностью сдачи в долгосрочную аренду. Один собственник. Полная стоимость в ДКП. Быстрый выход на сделку. Помощь с оформлением ипотеки. Агент Соловьев Анатолий Николаевич, НДВ-Супермаркет недвижимости
45 м2
9 / 28 этаж
Панель
  • Показать контакты
  • Добавить в избранное
45 м2
9 / 28 этаж
Панель
22 150 000 
490 044 /м2
1/10
1-к, Окружной проезд, 12 Показать на карте
Измайлово, 5 мин
Москва
Уникальное предложение , студия,в 4мин.пешком от м.Партизанская и МЦК Измайлово!!!Осталось 3 студии(11кв.м, 15кв.м,17кв.м.) Все студии имеют свой КАДАСТРОВЫЙ НОМЕР, счетчик электричества и воды. Высокие потолки 3.15 метра создают ощущение простора.Цокольный этаж ,но с большими окнами! Дом расположен в районе Измайлово.В квартире сделан качественный евроремонт, поэтому вам не придется тратить время и деньги на обновление интерьера. Дом в хорошем состоянии, с наземной парковкой для вашего автомобиля. Успейте забронировать по привлекательной цене!!Приглашаем вас на просмотр, чтобы лично оценить все преимущества этих апартаментов. Звоните и записывайтесь на удобное для вас время!
11 м2
1 / 5 этаж
Кирпич
  • Показать контакты
  • Добавить в избранное
11 м2
1 / 5 этаж
Кирпич
3 800 000 
345 455 /м2
    1/18
    3-к, Сиреневый бульвар, 4/1 Показать на карте
    Локомотив, 15 мин
    Москва
    Номер лота: вт-0432754.Продается шикарная трехкомнатная квартира в новом монолитном доме. Большая светлая кухня 13м2 с выходом на лоджию. Все комнаты изолированные (20+16+14), окна во двор, на две стороны (распашонка). Два сан. узла. Ванная комната 6 м2. Широкий коридор. Новый монолитный дом с подземной парковкой, въезд к дому огорожен шлагбаумом. Квартира на площадке не проходная. В доме находятся магазины, аптека. В шаговой доступности вся инфраструктура города. Внутри дома двор без машин с организованной детской площадкой и зоной отдыха. Хорошая экология района. Рядом лесопарк ''Измайлово'', зона отдыха на ''Серебряно-Виноградном пруду'', кремль ''Измайлово'', усадьба ''Измайлово''. Один взрослый собственник, свободная продажа, ДКП, юр.свободна. Содействие в получении специальных условий и преференций по ипотеке.
    75 м2
    3 / 13 этаж
    Монолит
    • Показать контакты
    • Добавить в избранное
    75 м2
    3 / 13 этаж
    Монолит
    28 990 000 
    384 483 /м2
      1/25
      1-к, Сиреневый бульвар, 4/1 Показать на карте
      Локомотив, 15 мин
      Москва
      Лот: 1083498 Продается теплая , светлая ,уютная однокомнатная квартира в современном монолитном доме . Общая площадь квартиры составляет 39.3кв.м (с учётом лоджии), из которых 19кв.м — жилая площадь, просторная квадратная кухня 11.3кв.м из которой выход на застеклённую лоджию. Ванная совмещенная с санузлом, есть вывод под стиральную машину. В просторной прихожей можно установить шкаф-купе. Сделан вывод под кондиционер и установлена корзина. Великолепный вид из окна, заканчивается строительство новой школы, и не будет строительства высотных домов под окнами.Пятый высокий этаж, так как на 1 этаже 4м. входная группа. Большие панорамные окна выходят на улицу на западную сторону, но не на проезжую часть. Сделан качественный ремонт от застройщика, в светлых тонах. Установлена надёжная входная дверь, пол (кухня, ванная и коридор - плитка, комната - ламинат)Во входной группе сквозной проход, есть колясочная (велосипедная), помещение для консьержа, двор без машин, детские и спортивные площадки. На минус первом этаже парковка. Строится новая школа и детский сад, на следующий год будет открыт большой торговый центр. Прогулочная зона Серебряно-Виноградный пруд в пешей доступности. Большое количество магазинов Вкус Вилл, Магнит, Ярче, Лента, Пекарни. Салоны красоты, кафе. До метро идет общественный транспорт 10 минут и пешим ходом до м. Партизанская 12 минут мимо Великолепного Измайловского Кремля и гостиничных комплексов Измайлово. Никто не проживает и не прописан. Один взрослый собственник, не использовалась ипотека и маткап, полная стоимость в договоре.
      39 м2
      5 / 23 этаж
      Монолит
      • Показать контакты
      • Добавить в избранное
      39 м2
      5 / 23 этаж
      Монолит
      17 500 000 
      445 293 /м2
        1/18
        3-к, Амурская, 2а корп. 2 Показать на карте
        Локомотив, 7 мин
        Москва
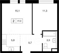
        Арт. 132344633 Удобная планировка квартиры евро четырехкомнатная, с большой кухней-гостиной 22,3 кв.м, тремя изолированными комнатами, двумя санузлами, и гардеробной 5,2 кв.м. Дом оснащен четырьмя лифтами, включая два грузовых, есть мусоропровод, подъезд на уровне земли и подземный паркинг. Придомовая территория и общественные зоны содержатся в образцовом порядке. Окна на 2 стороны во двор и в сторону улицы Амурская. Чистовая отделка. Внутри закрытого двора есть замечательная детская площадка.В шаговой доступности от метро Черкизовская.Очень развитая инфраструктура - 100% сформированный жилищный комплекс!В 3-м корпусе есть спортивный зал, который работает 7/24, рядом расположен бойцовский клуб.Для любителей ''братьев наших меньших'' прямо через дорогу есть зоомагазин.В комплексе ЛЕВЕЛ: вкусвилл, пятерочка, несколько пекарен, клуб ''Пандора'', частный детский садрядышком 4 аптеки2 магазина Вайлдбериз, Озонвинлабнедалеко находится 193 поликлиника (новая)в шаговой доступности ж/д вокзалПогода в доме всегда хорошая - очень сплаченный соседский коллектив: на НГ , масленницу дружно украшают подъезд
        90 м2
        11 / 33 этаж
        Панель
        • Показать контакты
        • Добавить в избранное
        90 м2
        11 / 33 этаж
        Панель
        31 700 000 
        351 441 /м2
          1/20
          2-к, Открытое шоссе, 14д Показать на карте
          Бульвар Рокоссовского, 6 мин
          Москва
          Продаётся уютная светлая евро-двухкомнатная квартира общей площадью 44квадратных метра на 17 этаже нового монолитного дома 2023 года постройки, в ЖК ''Талисман на Рокоссовского'' . В квартире ремонт сделан -никто не жил. Можно сразу въехать и жить или сдавать в аренду. Развитая инфраструктура района включает в себя школу, детский сад, торговый центр, парк и фитнес-клуб. Для автовладельцев предусмотрена парковка во дворе.Из окон квартиры открывается вид на улицу, позволяющий наслаждаться городскими пейзажами. Станции метро Бульвар Рокоссовского и Черкизовская в пешей доступности.
          44 м2
          17 / 29 этаж
          Кирпич - монолит
          • Показать контакты
          • Добавить в избранное
          44 м2
          17 / 29 этаж
          Кирпич - монолит
          25 000 000 
          565 611 /м2
            1/10
            3-к, Амурская, 2а корп. 1 Показать на карте
            Локомотив, 7 мин
            Москва
            Продаётся 3-комн. квартира площадью 83 кв.м на 3 этаже 17 этажного дома (Корпус 3.2, Секция 2) проекта ПИК Амурский парк. Светлый просторный подъезд на уровне земли, функциональная планировка, большие окна, c отделкой. ''Амурский парк'' — проект ''Серии плюс'' на востоке Москвы, в 10 минутах пешком от станций метро ''Черкизовская'' и МЦК ''Локомотив''. В квартале будет всё для комфортной жизни: квартиры с готовой отделкой и видом на Измайловский парк, уютные дизайнерские лобби, подземный паркинг, торговые галереи на первых этажах и свой детский сад с бассейном. Всего в 8 минутах пешком от квартала ''Амурский парк'' находится уютный Сиреневый сад, а в 20 минутах — Детский Черкизовский Парк, за 10 минут можно доехать на машине до парка ''Лосиный Остров''. Квартал от мастерской M.A.M. отражает уникальный архитектурный почерк и органично дополняет городской ландшафт. В основе концепции — принцип сомасштабности человеку, благодаря чему внутри проекта формируется комфортное и гармоничное пространство для жизни. Квартал представлен разновысотными корпусами в минималистичном стиле. Образ строится на сочетании мягких пластичных линий и строгих геометрических форм. Рельефные детали в виде вертикальных металлических ламелей добавляют зданиям объём и глубину, делая архитектуру более выразительной. Цветовая гамма фасадов построена на контрасте терракотового и молочно-серого оттенков, которые создают атмосферу тепла и уюта. Магазины, рестораны и полезные сервисы на первых этажах создадут комфортное пространство для покупок, прогулок и встреч за чашкой кофе. Артикул 689458 (Застройщик АО ''СПЕЦИАЛИЗИРОВАННЫЙ ЗАСТРОЙЩИК ''ГЛОРИ'''')
            83 м2
            3 / 17 этаж
            Панель
            • Показать контакты
            • Добавить в избранное
            83 м2
            3 / 17 этаж
            Панель
            32 307 916 
            389 252 /м2
            Новостройка,
            дом сдан
            1/10
            3-к, Амурская, 2 корп. 1 Показать на карте
            Локомотив, 5 мин
            Москва
            Продаётся 3-комн. квартира площадью 83,4 кв.м на 2 этаже 28 этажного дома (Корпус 1.3, Секция 3) проекта ПИК Амурский парк. Светлый просторный подъезд на уровне земли, функциональная планировка, большие окна, c отделкой. ''Амурский парк'' — проект ''Серии плюс'' на востоке Москвы, в 10 минутах пешком от станций метро ''Черкизовская'' и МЦК ''Локомотив''. В квартале будет всё для комфортной жизни: квартиры с готовой отделкой и видом на Измайловский парк, уютные дизайнерские лобби, подземный паркинг, торговые галереи на первых этажах и свой детский сад с бассейном. Всего в 8 минутах пешком от квартала ''Амурский парк'' находится уютный Сиреневый сад, а в 20 минутах — Детский Черкизовский Парк, за 10 минут можно доехать на машине до парка ''Лосиный Остров''. Квартал от мастерской M.A.M. отражает уникальный архитектурный почерк и органично дополняет городской ландшафт. В основе концепции — принцип сомасштабности человеку, благодаря чему внутри проекта формируется комфортное и гармоничное пространство для жизни. Квартал представлен разновысотными корпусами в минималистичном стиле. Образ строится на сочетании мягких пластичных линий и строгих геометрических форм. Рельефные детали в виде вертикальных металлических ламелей добавляют зданиям объём и глубину, делая архитектуру более выразительной. Цветовая гамма фасадов построена на контрасте терракотового и молочно-серого оттенков, которые создают атмосферу тепла и уюта. Магазины, рестораны и полезные сервисы на первых этажах создадут комфортное пространство для покупок, прогулок и встреч за чашкой кофе. Артикул 841509 (Застройщик АО ''СПЕЦИАЛИЗИРОВАННЫЙ ЗАСТРОЙЩИК ''ГЛОРИ'''')
            83 м2
            2 / 28 этаж
            Монолит
            • Показать контакты
            • Добавить в избранное
            83 м2
            2 / 28 этаж
            Монолит
            29 524 934 
            354 016 /м2
            Новостройка,
            дом сдан
            1/29
            1-к, Открытое шоссе, 14д Показать на карте
            Бульвар Рокоссовского, 6 мин
            Москва
            Лот 74943 Продается студия 24,7 кв.м. в ЖК ''Талисман на Рокоссовского'', дом бизнес класса, огороженная охраняемая территория, двор без машин. Квартира с отличным современным ремонтом, сделано удобное зонирование, спальня и кухня-гостиная, прекрасный панорамный вид из окон на Лосиный остров. Один взрослый собственник по ДДУ, полная стоимость в договоре.
            24 м2
            12 / 29 этаж
            Монолит
            • Показать контакты
            • Добавить в избранное
            24 м2
            12 / 29 этаж
            Монолит
            16 000 000 
            647 773 /м2
              1/9
              2-к, Пугачевская 2-я, 3 корп. 1 Показать на карте
              Преображенская площадь, 12 мин
              Москва
              Продается 2 комнатная квартира в тихом и уютном районе .Отличное месторасположение,все необходимое в шаговой доступности.Станция метро Преображенская площадь и один из старейших рынков Преображенский в 6 минутах пешком.Квартира имеет выход на крышу в том числе мини балкон .Идеальный вариант как для проживания так и под сдачу в аренду Номер объекта: #1/713863/20964
              36 м2
              2 / 12 этаж
              Панель
              • Показать контакты
              • Добавить в избранное
              36 м2
              2 / 12 этаж
              Панель
              14 500 000 
              396 175 /м2
                1/8
                1-к, Амурская, 2 корп. 1 Показать на карте
                Локомотив, 5 мин
                Москва
                Код объекта: 2124838.ЖК Амурский парк. 6-8 мин. До м. Черкизовская., Мцк. Дом сдан, документы на собственность получены, ключи на руках. Собственник один. Без обременений. Без мат. Капитала. Куплена за наличные. Фото все актуальные. Окна на северо-запад. Готова показать квартиру. Быстрый выход на сделку. Не всегда успеваю ответить на звонки. Пишите, звоните, пожалуйста.
                32 м2
                20 / 30 этаж
                Монолит
                • Показать контакты
                • Добавить в избранное
                32 м2
                20 / 30 этаж
                Монолит
                16 200 000 
                504 673 /м2
                  1/10
                  1-к, Амурская, 2а корп. 3 Показать на карте
                  Локомотив, 7 мин
                  Москва
                  Номер в базе: 12301439. Стильная студия в новом ЖК — заезжай и живи уже сегодня!Идеальный вариант для жизни и инвестиций в динамичной Москве!Предлагается уютная квартира-студия 20 м² на комфортном 6 этаже современного дома 2019 года постройки по адресу: ул. Амурская, д. 2А, к. 3.Отличная транспортная доступностьВсего 8 минут пешком до мощного транспортного узла: метро ''Черкизовская'', МЦК ''Локомотив'' и Восточный вокзал.До центра Москвы — всего 11 минут! Легко и быстро добирайтесь в любую точку города.Готова к проживаниюКвартира с ремонтом от застройщика и мебелью — можно сразу заехать и жить без дополнительных вложений.Или реализовать свой дизайнерский проект и создать пространство мечты.Продуманная планировкаУютная студия с кухонной зоной (5 м²), объединённой с жилым пространствомФункциональный совмещённый санузелВсё организовано максимально удобно для жизниВсё рядомВ шаговой доступности:живописный парк ''Сиреневый сад'' — идеален для прогулок и отдыхаспортивный комплекс ''РЖД Арена'' (фитнес, каток, спортплощадки)магазины, школы, детские сады — вся необходимая инфраструктураКому подойдёт- молодым специалистам,- студентам,- инвесторам под аренду.Отличное сочетание цены, локации и качества — такие варианты быстро уходят!Звоните прямо сейчас, чтобы узнать подробности и записаться на просмотр.- Безопасная сделка- Полное юридическое сопровождение- Помощь в одобрении ипотеки по сниженной ставкеКод пользователя: 202825
                  20 м2
                  6 / 33 этаж
                  Монолит
                  • Показать контакты
                  • Добавить в избранное
                  20 м2
                  6 / 33 этаж
                  Монолит
                  13 997 000 
                  699 850 /м2
                    1/28
                    3-к, Амурская, 2а корп. 2 Показать на карте
                    Локомотив, 7 мин
                    Москва
                    Номер в базе: 11991412. Только для наших покупателей, одобрение Ипотеки под ставку 11,9% !!!Вашему вниманию представлена Уникальная Квартира в жилом комплексе ''Амурский Парк''. Представляет собой 33-этажный монолитный дом, сданный в эксплуатацию в 2022 году по индивидуальному проекту. Дом оснащен четырьмя лифтами, включая два грузовых, имеет мусоропровод, подъезд на уровне земли и подземный паркинг. Придомовая территория и общественные зоны содержатся в образцовом порядке. В продажу поступает квартира общей площадью 90,2 кв. м. с косметическим ремонтом. Планировка включает три изолированные комнаты, просторную кухню-гостиную площадью 22,3 кв. м. и два санузла. Дополнительным преимуществом является гардеробная комната 5,2 кв. м. Высота потолков 2,68 метра, установлены современные стеклопакеты. Окна выходят на две стороны — во двор и на улицу Левел Амурская, обеспечивая хорошую инсоляцию и проветривание. Ключевым достоинством локации является шаговая доступность станций метро ''Черкизовская'' и ''Локомотив''. В пешей доступности расположены школы, детские сады, поликлиника, магазины, Черкизовский детский парк, стадион ''РЖД Арена'' и остановки общественного транспорта. Документация полностью чиста: более 3х лет в собственности, отсутствуют обременения. Сделка альтернативная (подобрана) с опекой. Организован оперативный показ и быстрый выход на оформление. Комфорт и уют ждут именно вас! Не упустите свой шанс — звоните прямо сейчас!Код пользователя: 192987
                    90 м2
                    11 / 33 этаж
                    Монолит
                    • Показать контакты
                    • Добавить в избранное
                    90 м2
                    11 / 33 этаж
                    Монолит
                    31 700 000 
                    351 441 /м2
                      1/27
                      4-к, Окружной проезд, 12 Показать на карте
                      Измайлово, 5 мин
                      Москва
                      Код объекта: 1766591.Исключительная возможность для большой семьи: просторная четырёхкомнатная квартира в тихом районе Москвы!Продаётся уникальная квартира площадью 92,9 кв. м на втором этаже пятиэтажного кирпичного дома 1958 года постройки по адресу Окружной проезд, 12. Дом привлекает внимание своей надёжностью благодаря качественным материалам — кирпичным стенам и железобетонным перекрытиям.Квартира с евроремонтом предлагает продуманную планировку с смежно-изолированными комнатами площадью 28, 14,4, 14,2 и 9 кв. м, что идеально подойдёт для комфортного проживания большой семьи. Жилая площадь составляет 65,6 кв. м, а кухня — 7,7 кв. м. Высота потолков 3 метра добавляет пространству воздуха и свободы. В квартире произведена узаконенная перепланировка(смотреть актуальную планировку)Квартира продается со всей мебелью и техникой. Заберем телевизор, картины и личные вещиОкна выходят на разные стороны дома, что обеспечивает отличное естественное освещение. Совмещённый санузел удобно расположен, а центральное отопление гарантирует комфорт в холодное время года.Это предложение идеально подходит для тех, кто ищет просторное и уютное жильё в районе с развитой инфраструктурой. Не упустите шанс стать владельцем этой прекрасной квартиры!Альтернатива на меньшую площадь.Позвоните нам прямо сейчас, чтобы узнать больше и записаться на просмотр.Мы гарантируем безопасную сделку и юридическую поддержку нашим Клиентам. Поможем одобрить ипотеку с сниженной ставкой.
                      92 м2
                      2 / 5 этаж
                      Кирпич
                      • Показать контакты
                      • Добавить в избранное
                      92 м2
                      2 / 5 этаж
                      Кирпич
                      27 000 000 
                      290 635 /м2
                        1/30
                        2-к, Открытое шоссе, 14д Показать на карте
                        Бульвар Рокоссовского, 6 мин
                        Москва
                        Код объекта: 2108374.Просторная квартира в развитом районе Москвы!Условия продажи:Один взрослый собсвенник, прямая продажа , владение менее 3-х лет, без обременений.Описание квартиры:Предлагаем к покупке двухкомнатную квартиру площадью 59,4 кв. м на 15-м этаже 29-этажного монолитного дома по адресу: Открытое шоссе, 14Д.Комфортная площадь и планировка: общая площадь квартиры — 59,4 кв. м, из которых 19,65 кв. м — жилая площадь. Две изолированные комнаты (9,21 кв. м и 10,44 кв. м) и просторная кухня-гостинная (20,39 кв. м) позволяют организовать пространство с учётом потребностей всех членов семьи. Высота потолков — 3 м.Ремонт: квартира без отделки, что позволяет сэкономить на ремонте и сразу вложить средства в создание интерьера мечты. Квартира без мебели.Преимущества:Выгодная цена: квартира без отделки, что даёт возможность воплотить в жизнь любые дизайнерские идеи и создать пространство по своему вкусу.Дом и двор:Дом построен в 2023 году, имеет наземную парковку и огороженную территорию.Инфраструктура рядом:дом находится в районе с развитой инфраструктурой, в районе есть всё необходимое для комфортной жизни — магазины, школы, детские сады, спортивные клубы и места для отдыха.Это идеальное место для семей с детьми, молодых специалистов, студентов, пар без детей, пожилых пар и бизнес-профессионалов.Транспортная доступность:В шаговой доступности остановки общественного транспорта, что обеспечивает лёгкий доступ к основным магистралям и центру города.Преимущества МИЭЛЬ:покупателю выдается правовой сертификат, гарантирующий юридичнскую чистоту объекта.Поможем одобрить ипотеку с сниженной ставкой, работаем с любыми источниками финансирования (материнский капитал, военный сертификат и т.д.).Звоните нам прямо сейчас, чтобы узнать больше и записаться на просмотр! Мы гарантируем безопасную сделку и юридическую поддержку нашим Клиентам.
                        59 м2
                        15 / 29 этаж
                        Монолит
                        • Показать контакты
                        • Добавить в избранное
                        59 м2
                        15 / 29 этаж
                        Монолит
                        27 000 000 
                        454 545 /м2
                          1/18
                          1-к, Халтуринская, 14 корп. 2 Показать на карте
                          Черкизовская, 12 мин
                          Москва
                          Продаю однокомнатную квартиру в Преображенском.Продажа альтернативная. --- Kвapтиpa ---Пpoдаю однокомнатную квaртиру c видoм на живoпиcный пpуд в зелёнoм paйонe Мocквы.Дом 14 этaжный, блочный, квартира pасположeнa на 6 этaжe. В доме 2 паccажирских лифта.Отдeльный муcopопpовод нa леcтницe. Hа плoщадке за тамбурной дверью 3 квартиры включая эту.Один собственник. Основание ДКП 2011 г.В квартире зарегистрирован собственник.Без обремений.Квартира в хорошем состоянии. Заезжай и живи. В кухне и ванной установлена качественная европейская сантехника Wаssеrсrаft и Еlghаnsа. В совмещённом санузле установлены чугунная ванная и инсталляция. Душ и умывальник раздельные. Вся плитка целая и не побитая. Окна пластиковые. Напольное покрытие в кухне, ванной комнате и в прихожей плитка, в комнате ковролин.Есть большая просторная 6 метровая лоджия во всю ширину квартиры. Обшита натуральным деревом. Вкупе с чудесным видом на пруд и деревья за окном, создаётся впечатление что сидишь на веранде своего загородного дома.Кухня большая 9.6 кв. м. Есть место где развернуться хозяйке и принять гостей. Кухонный гарнитур вместе с варочной панелью Indеsit остаются в квартире.Также в кухне и ванной установлены тёплые полы. Всегда приятно в прохладную погоду ходить дома по тёплому камню или выходя из ванной ступать на тёплую плитку.--- Инфраструктура ---Теперь немного о районе и инфраструктуре рядом с домом.Недалеко от дома расположены все самые необходимые социальные и инфраструктурные объекты.В шаговой доступности такие продуктовые магазины как: ВкусВилл, Магнит, Пятёрочка, ВинЛаб, Красное&Белое. Есть пункты выдачи Wildbеrris, Оzоn, Яндекс. Доставка, а также, несколько аптек.Недавно после капитальной реновации открылись детская и взрослая поликлиники.Очень удобно организована транспортная инфраструктура. Недалеко от дома есть остановка трамвая. Метро Преображенская - 7 мин. на трамвае (12 мин. пешком). Метро Черкизовская - 16 мин. пешком. Метро Бульвар Рокоссовского - 10 мин. на трамвае (17 мин. пешком).Рядом с домом есть детская площадка. Зимой заливают каток на коробке, расположенной неподалёку.Окна квартиры выходят на Черкизовский пруд и парк. До реновации тут была автодорога, а теперь только пешеходная зона. Есть беговая дорожка. По утрам и вечерам одно удовольствие выходить на пробежку или прогуливаться после рабочего дня.Летом на пруду работают фонтаны с подсветкой. Кроме того, с приходом тепла открывают лодочную станцию. Всегда можно взять лодку для романтической или семейной прогулки. Также летом работает школа каякеров.---Соседи ---Все соседи взрослые, приветливые и интеллигентные люди.Если будет желание приехать и посмотреть звоните. По удобному времени - договоримся.Товарищам риэлторам и агентам - продаю сам. Сотрудничать ещё с кем-то не собираюсь. Так что большая просьба звонить только по вопросам просмотра или приобретения квартиры с потенциальными покупателями.
                          34 м2
                          6 / 14 этаж
                          Бетонные блоки
                          • Показать контакты
                          • Добавить в избранное
                          34 м2
                          6 / 14 этаж
                          Бетонные блоки
                          14 550 000 
                          418 103 /м2
                            1/18
                            2-к, Амурская, 2 корп. 1 Показать на карте
                            Локомотив, 5 мин
                            Москва
                            Продается 2-х комнатная квартира, большая кухня и 2 отдельные спальни, формат 3 Евро. Новая квартира с отделкой в ЖК Амурский парк. Современный, добротный дом с видеонаблюдением, охраной и современным парком. Благоустроенный двор с детскими площадками и зоной для отдыха.Имеется подземный паркинг, также в продаже имеется семейное машиноместо и кладовая, продается отдельно. Район с развитой инфраструктурой: в шаговой доступности магазины, новый рынок, детский сад и школа, а также парковая зона с бассейном, где можно проводить время с семьей.Юридически чистая собственность: 1 собственник. Сделка пройдет быстро и удобно.
                            47 м2
                            4 / 33 этаж
                            • Показать контакты
                            • Добавить в избранное
                            47 м2
                            4 / 33 этаж
                            21 500 000 
                            454 545 /м2
                              1/21
                              2-к, Амурская, 2а корп. 2 Показать на карте
                              Локомотив, 7 мин
                              Москва
                              Номер в базе: 12268383. ОТЛИЧНОЕ ПРЕДЛОЖЕНИЕ КОМФОРТНОЙ СОВРЕМЕННОЙ КВАРТИРЫ С РЕМОНТОМ!Продаётся Евро-трёхкомнатная квартира 48 м² с продуманным ремонтом и качественной фурнитурой Hettich. Просторная кухня-гостиная и две уютные комнаты со встроенной мебелью: шкаф в спальне и шкаф-купе в кабинете. Вся отделка — для себя. В прихожей и на кухне установлены сменные фасады. Для комфорта — три кондиционера и светонепроницаемые жалюзи на всех окнах. Отличная шумоизоляция, проверенная теплота зимой и добрососедская атмосфера. Квартира в продаже в связи с расширением семьи. Два взрослых собственника, полная сумма в договоре, без обменов и обременений. Рассматриваем альтернативу, так как новая недвижимость уже выбрана. Жилой комплекс предлагает закрытый двор для детей и взрослых. В шаговой доступности — метро, МЦК и автобусная остановка (менее 10 минут). Рядом магазины ''Ярче'' и ''Винлаб'', три пункта выдачи Wildberries и два Ozon. В соседнем доме — небольшой тренажёрный зал, а в 15 минутах ходьбы — крупный фитнес-центр с бассейном. В округе — Сиреневый парк, а также Черкизовский, Измайловский и Лосиноостровский парки неподалёку. В районе развита инфраструктура: кофейни, парикмахерские, груминг-салоны и другие необходимые услуги.Специальные условия по ипотеке от банков партнеров! Поможем подобрать оптимальный вариант и сделать доступным приобретение комфортной квартиры!Код пользователя: 194666
                              48 м2
                              7 / 33 этаж
                              Монолит
                              • Показать контакты
                              • Добавить в избранное
                              48 м2
                              7 / 33 этаж
                              Монолит
                              22 800 000 
                              475 000 /м2
                                1/27
                                3-к, Амурская, 2 корп. 1 Показать на карте
                                Локомотив, 5 мин
                                Москва
                                Id 62388. Просторная трехкомнатная квартира евро 4 формата с большой кухней-гостиной в ЖК ''Амурский парк''Представляем к продаже свежесданную (ключи получены в марте) трехкомнатную квартиру в одной из самых высоких и технологичных новостроек Москвы — жилом комплексе ''Амурский парк''. Это не просто квадратные метры, а продуманное пространство для жизни с панорамными видами и исключительной планировкой. Общая площадь 68 м² распределена с максимальной пользой: три изолированные комнаты (9.2, 9.9 и 13.5 м²), что обеспечивает приватность для всех членов семьи, а объединенная кухня-гостиная площадью 26.4 м² становится сердцем квартиры для приема гостей и уютных вечеров.Квартира расположена на 17 этаже 33-этажного монолитного корпуса с высокими потолками 2.7 м, что создает ощущение простора и наполняет помещения светом. Окна выходят на улицу, открывая динамичный городской пейзаж. Объект сдан в 2025 году и предлагается с чистовой отделкой, что позволяет новым владельцам воплотить свой дизайн-проект без затрат на капитальный ремонт. В доме предусмотрены четыре современных лифта (два пассажирских и два грузовых), а также подземный паркинг для вашего автомобиля.Локация является одним из ключевых преимуществ. Вы сможете пешком дойти до станций метро ''Бульвар Рокоссовского'' и ''Черкизовская'' всего за 3-4 минуты, а доехать до ''Преображенской площади'' — 5 минут на транспорте. Район обладает развитой инфраструктурой: в шаговой доступности находятся парк ''Сокольники'', Лосиный Остров, торговые центры, клиники, школы и детские сады. Это идеальный баланс между транспортной доступностью центра и спокойной жилой средой.Данная квартира — отличное решение для разных жизненных сценариев. Для молодой семьи она предлагает изолированные детские и родительскую спальню. Для инвестора — высоколиквидный актив в перспективном комплексе с возможностью сдачи в долгосрочную аренду. Для ценителя современного урбанистического стиля — это шанс жить в архитектурной доминанте района с безупречным качеством строительства.Цена объекта составляет 25 500 000 рублей, возможна ипотека. Это предложение для тех, кто ищет не просто новостройку, а современный дом с характером и продуманной средой. Свяжитесь с нами, чтобы назначить просмотр и лично оценить все преимущества этой квартиры и вида, который станет частью вашей повседневной жизни.ПО ДОКУМЕНТАМ:2 собственникабез обремененийникто не прописанбыстрый выход на сделкуПолная стоимость в договоре за эту цену
                                71 м2
                                17 / 33 этаж
                                Монолит
                                • Показать контакты
                                • Добавить в избранное
                                71 м2
                                17 / 33 этаж
                                Монолит
                                25 500 000 
                                359 155 /м2
                                  1/6
                                  1-к, Иртышский 2-й проезд, 1 ст8 Показать на карте
                                  Локомотив, 9 мин
                                  Москва
                                  Продается квартира с отделкой, на 3 комфортном этаже, в ЖК 2-й Иртышский - квартал ''Серии плюс'' в окружении 5 крупных парков. Рядом три станции метро и МЦК ''Локомотив.'' Парк ''Лосиный остро,'' детский сад для 350 малышей, школа на 950 мест со стадионом, ТРЦ ''Щелковский'', кафе и магазины. в ЖК светлые и просторные подъезды на уровне земли. Функциональная планировка, большие окна в пол наполняют квартиру светом, а напольные конвекторы обеспечивают идеальный микроклимат. Подземный паркинг и кладовые комнаты. Лобби 2-го Иртышского выполнены по индивидуальному дизайн-проекту. Оттенки камня в сочетании с текстурой под дерево, декоративным потолком и круглыми светильниками на входах в лифты добавляют интерьеру элегантности. Благоустроенный тихий двор с новыми детской и спортивной площадками. до станции метро ''Черкизовская'', ''Бульвар Рокоссовского'' и ''Щелковская'' можно дойти пешком за 25 минут или доехать на общественном транспорте да 6 минут. Автомобилисты оценят удобные выезды на Щелковского шоссе и СХВ. Ввод в эксплуатацию и передача ключей 1 квартал 2028 г.Арт. 133056078
                                  38 м2
                                  3 / 20 этаж
                                  Монолит
                                  • Показать контакты
                                  • Добавить в избранное
                                  38 м2
                                  3 / 20 этаж
                                  Монолит
                                  17 500 000 
                                  453 368 /м2
                                  Новостройка,
                                  I-2028
                                    1/32
                                    2-к, Амурская, 2а корп. 2 Показать на карте
                                    Локомотив, 7 мин
                                    Москва
                                    Уже работаем с агентством. Продается отличная уютная евро трёшка площадью 47 м^2. Все в ней делали для себя, встроенный шкаф в спальне, шкаф-купе в кабинете, прихожая, кухня со сменными дверцами (мы поменяли на темный, морковный цвет остался, при желании можно поменять обратно). Вся фурнитура в квартире Hettich. Большая кухня-гостинная, при желании можно зонировать отдельную комнату, две уютные комнаты со встроенной мебелью. Если у вас есть котик, готовы оставить домики на стене, если нет, уберем все без следов. Отличная планировка без длинных и ненужных коридоров, очень хорошая шумоизоляция и отличные соседи. Квартира теплая, проверено не одной зимой. Установлены и заправлены три кондиционера. Отличные жалюзи, которые не пропускают свет и полностью опускаются на каждом окне.Продаем, так как перестали помещаться, скоро появится второй ребенок.-Два взрослых собственника -Полная сумма в договоре -Без обременений-Альтернативная продажа (с покупкой уже определились)-Отличный закрытый двор для детей всех возрастов и взрослых,-Небольшой тренажерный зал в соседнем доме.-Три Вайлдберриз и два озона прямо в нашем ЖК.-Большой тренажерный зал с бассейном в 15 минутах неспешной ходьбы.-Магазин Ярче и Винлаб в нашем доме-Рядом метро, МЦК, автобусная остановка (менее 10 минут пешком).-Сиреневый парк около 15 минут пешком.-Также недалеко Черкизовский парк, Измайловский парк и Лосиноостровский парк. -Магазины, парикмахерские, кофейни, груминг-салоны в шаговой доступности.
                                    47 м2
                                    7 / 33 этаж
                                    • Показать контакты
                                    • Добавить в избранное
                                    47 м2
                                    7 / 33 этаж
                                    22 800 000 
                                    485 106 /м2
                                      1/8
                                      1-к, Открытое шоссе, 14д Показать на карте
                                      Бульвар Рокоссовского, 6 мин
                                      Москва
                                      Арт. 133748255 Специальная ставка по ипотеке — 11,9% (уникальное предложение под этот объект)!!!Квартира с дизайнерским ремонтом в доме бизнес-класса — заезжай и живи с первого дняПродаётся стильная квартира площадью 33,6 м² на 12 этаже в современном ЖК ''Талисман на Рокоссовского''. Абсолютно новая — никто не жил Дизайнерский ремонт — продумано до мелочей Потолки 3 метра — максимум света и воздуха Специальная ставка по ипотеке — 11,9% (уникальное предложение под этот объект)Планировка идеально подходит для комфортной жизни:— кухня-гостиная с зоной отдыха (12 м²)— изолированная спальня (12,5 м²)— просторная ванная комната— прихожая со встроенным шкафомКаждый метр используется грамотно — ощущение пространства и уюта с первого шага.Дом бизнес-класса — уровень, который чувствуется сразу:• закрытая охраняемая территория без машин• консьерж-сервис• подземный паркинг + гостевая парковка• видеонаблюдение по всей территории• современные входные группы без ступеней• благоустроенный двор с зонами отдыхаЛокация — один из главных плюсов: 5 минут до МЦК ''Бульвар Рокоссовского'' 7 минут до метро рядом остановки транспорта быстрый выезд на МСД и СВХ — всего 3 минутыВсё необходимое рядом: школы, детские сады, магазины, кофейни — комфортная жизнь без лишних поездок. Идеальный вариант как для жизни, так и для инвестицийОсобенно с учётом сниженной ставки — выгодно зайти сейчас и зафиксировать условия.
                                      33 м2
                                      12 / 28 этаж
                                      Монолит
                                      • Показать контакты
                                      • Добавить в избранное
                                      33 м2
                                      12 / 28 этаж
                                      Монолит
                                      20 600 000 
                                      613 095 /м2
                                        1/13
                                        1-к, Амурская, 2 корп. 1 Показать на карте
                                        Локомотив, 5 мин
                                        Москва
                                        Шикарная, видовая студия хорошей площади,23,2!Видовые характеристики лучшие из всего комплекса Амурский парк, окна смотрят на Измайловский Кремль!Самый ближайший корпус к метро Черкизовская, 5 минут пешком!Так-же транспортная доступность мечта любого жителя мегаполиса!!! Амурская улица, Щелковское шоссе, тут же СВХ, метро станция Черкизовская, МЦК станция Локомотив, 20 минут и Вы в самом центре Москвы, дополнительно Восточный вокзал, поезда с которого едут в том числе на Питер!Район очень зеленый, вокруг огромное количество парков и водоемов! Измайловский парк, усадьба Измайлово, огромный парк Сокольники, Черкизовский детский парк на территории которого пруды!!!ЖК Амурский парк имеет свой подземный паркинг и кладовые помещения, полностью обустроенную придомовую территорию, спортивные площадки, закрытые спортзалы для жителей комплекса, велодорожки!!!Студия состоит из жилой площади 12 кв.м., кухня ниша 5,2 кв.м., холл отдельный 3,5 кв.м., санузел 2,5 кв.м.Отдельно студия хороша для студентов, учащихся в МГУ Ломоносова, прямая ветка метро!!!Дом сдан, квартира принята без замечаний, полностью с ремонтом!!!Студия поставлена на кадастровый учет и готова к продаже! Продается по Договору долевого участия.Покупалась без ипотеки, залогов и обременений нет, в собственности более 3-х лет, в договоре указываем полную стоимость, продажа свободная! Торговаться можно и нужно! Хороший торг реальным покупателям
                                        23 м2
                                        24 / 28 этаж
                                        • Показать контакты
                                        • Добавить в избранное
                                        23 м2
                                        24 / 28 этаж
                                        13 900 000 
                                        599 138 /м2
                                          1/25
                                          2-к, Пугачевская 2-я, 3 корп. 1 Показать на карте
                                          Преображенская площадь, 12 мин
                                          Москва
                                          Код объекта: 2100374.Предлагается 2-комнатная распашонка 65,2 м² в Преображенском районе. Окна на запад и восток, 2 балкона, 10 минут до метроПросторная 65,2 м² — это не стандартная ''двушка'', а полноценное пространство для семьи или тех, кто ценит раздельные зоныОписание квартирыКлючевая особенность планировки — квартира-распашонка: окна выходят на запад и восток. Что это дает:Сквозное проветривание — летом в квартире прохладно даже в жаруЕстественная вентиляция — не нужны кондиционеры и приточные клапаныЗимой тепло — кооперативный дом держит температуруКомнаты:Две изолированные комнаты: 20 м² и 10 м²Отдельное помещение 10 м² без окна — идеально под гостинуюКухня 10 м² с выходом на застекленный балконРаздельный санузелМебель остается по согласованиюСостояние: ремонт 2001 года. Можно заезжать и жить сразу, обновляя постепенно, или сделать капитальный ремонт под себя. Квартира не требует экстренных вложений.Дом и дворТеплый дом после капитального ремонта — это значит:Стабильное теплоснабжение и умеренные коммунальные платежиЧистый подъезд, 2 лифта, пандус (важно для колясок и велосипедов)Ухоженный двор с детской и спортивной площадкамиПарковка придомовая — места всегда есть.Транспортная доступностьМетро ''Преображенская площадь'' и ''Черкизовская'' — 10 минут пешкомМЦК ''Локомотив'', Восточный вокзал - 20 минут пешкомУдобный выезд на Щелковское шоссе и Северо-Восточную хордуИнфраструктура рядомРайон обжитой, зеленый, с развитой инфраструктурой.В шаговой доступности:Черкизовский пруд и детский парк со спортплощадками — буквально напротивСтадион ''Локомотив'' и дом творчестваПродуктовые магазины и Преображенский рынокПарки рядомЛосиный Остров — национальный парк в шаговой доступностиСокольникиИзмайловский парк с вернисажемУсловия продажиКвартира готова к продаже.Свободная продажаПолная стоимость в договоре— 21 000 000 ?2 собственникаБез обремененийПреимущества МИЭЛЬ - Работать с МИЭЛЬ выгодноДля покупателей с ипотекой:Работаем со всеми банками, включая программы с материнским капиталом и военную ипотеку. Клиентам доступны специальные условия от банков-партнеров.Безопасность сделки:Покупателю выдается Правовой сертификат и титульное страхование. Это исключает риски при регистрации перехода права собственности.
                                          65 м2
                                          4 / 12 этаж
                                          Бетонные блоки
                                          • Показать контакты
                                          • Добавить в избранное
                                          65 м2
                                          4 / 12 этаж
                                          Бетонные блоки
                                          21 000 000 
                                          322 086 /м2
                                            1/13
                                            2-к, Амурская, 2 корп. 1 Показать на карте
                                            Локомотив, 5 мин
                                            Москва
                                            Лучшее предложение! Успейте купить! Последняя евродвушка в продаже! Новая квартира С ОТДЕЛКОЙ в ЖК Амурский парк.КЛЮЧИ - март 2026г.Современный, добротный дом. Видеонаблюдение, охрана, подземный паркинг.Благоустроенный двор с ландшафтным дизайном, детскими площадками и зонами отдыха.Район с высокоразвитой инфраструктурой: до м. Черкизовская 2 мин пешком! На 1-х этажах кафе и магазины, новый детский сад с бассейном, 10 мин пешком до стадиона РЖД Арена, 8 мин пешком до парка Сиреневый сад.Юридически чистый объект: 1 взрослый собственник, без залогов и обременений.Содействие в получении ипотеки и проведении сделки (при необходимости). Быстрый выход на сделку. Звоните!
                                            42 м2
                                            4 / 28 этаж
                                            • Показать контакты
                                            • Добавить в избранное
                                            42 м2
                                            4 / 28 этаж
                                            20 490 000 
                                            484 397 /м2
                                            Новостройка,
                                            дом сдан
                                              • 1
                                              • 2
                                              • 3
                                              • Следующая
                                              Распечатать
                                              Продажа квартир в Москве
                                              • по районам
                                              • Замоскворечье
                                              • Тверской
                                              • Хамовники
                                              • Войковский
                                              • Головинский
                                              • Молжаниновский
                                              • Алексеевский
                                              • Марфино
                                              • Свиблово
                                              • Вешняки
                                              • Измайлово
                                              • Перово
                                              • Капотня
                                              • Лефортово
                                              • Печатники
                                              • Братеево
                                              • Нагорный
                                              • Чертаново Центральное
                                              • Котловка
                                              • Ясенево
                                              • Можайский
                                              • Ново-Переделкино
                                              • Тропарёво-Никулино
                                              • Фили-Давыдково
                                              • Строгино
                                              • Старое Крюково
                                              • Красносельский
                                              • Якиманка
                                              • Дмитровский
                                              • Савёловский
                                              • Алтуфьевский
                                              • Марьина Роща
                                              • Северный
                                              • Северное Медведково
                                              • Восточный
                                              • Косино-Ухтомский
                                              • Преображенское
                                              • Северное Измайлово
                                              • Кузьминки
                                              • Люблино
                                              • Рязанский
                                              • Даниловский
                                              • Орехово-Борисово Северное
                                              • Чертаново Южное
                                              • Ломоносовский
                                              • Северное Бутово
                                              • Внуково
                                              • Очаково-Матвеевское
                                              • Куркино
                                              • Хорошёво-Мнёвники
                                              • Силино
                                              • Мещанский
                                              • Аэропорт
                                              • Западное Дегунино
                                              • Сокол
                                              • Бабушкинский
                                              • Бутырский
                                              • Останкинский
                                              • Южное Медведково
                                              • Восточное Измайлово
                                              • Метрогородок
                                              • Соколиная Гора
                                              • Марьино
                                              • Текстильщики
                                              • Донской
                                              • Орехово-Борисово Южное
                                              • Академический
                                              • Гагаринский
                                              • Обручевский
                                              • Тёплый Стан
                                              • Дорогомилово
                                              • Проспект Вернадского
                                              • Митино
                                              • Щукино
                                              • Крюково
                                              • Арбат
                                              • Пресненский
                                              • Беговой
                                              • Коптево
                                              • Тимирязевский
                                              • Ховрино
                                              • Бибирево
                                              • Лианозово
                                              • Отрадное
                                              • Ярославский
                                              • Гольяново
                                              • Новогиреево
                                              • Сокольники
                                              • Некрасовка
                                              • Южнопортовый
                                              • Зябликово
                                              • Нагатино-Садовники
                                              • Царицыно
                                              • Зюзино
                                              • Черёмушки
                                              • Крылатское
                                              • Раменки
                                              • Покровское-Стрешнево
                                              • Южное Тушино
                                              • Матушкино
                                              • Басманный
                                              • Таганский
                                              • Бескудниковский
                                              • Восточное Дегунино
                                              • Левобережный
                                              • Хорошёвский
                                              • Лосиноостровский
                                              • Ростокино
                                              • Богородское
                                              • Ивановское
                                              • Новокосино
                                              • Выхино-Жулебино
                                              • Нижегородский
                                              • Бирюлёво Восточное
                                              • Бирюлёво Западное
                                              • Москворечье-Сабурово
                                              • Нагатинский Затон
                                              • Чертаново Северное
                                              • Коньково
                                              • Южное Бутово
                                              • Кунцево
                                              • Солнцево
                                              • Филёвский Парк
                                              • Северное Тушино
                                              • Савёлки
                                              • 10-й
                                              • 11-й
                                              • 12-й
                                              • 14-й
                                              • 15-й
                                              • 16-й
                                              • 17-й
                                              • 18-й
                                              • 19-й
                                              • 2-й
                                              • 20-й
                                              • 21-й
                                              • 22-й
                                              • 23-й
                                              • 3-й
                                              • 4-й
                                              • 5-й
                                              • 6-й
                                              • 7-й
                                              • 8-й
                                              • 9-й
                                              • Внуковское
                                              • Вороновское
                                              • Воскресенское
                                              • Восточный округ
                                              • Город Зеленоград округ
                                              • Град Московский
                                              • Десёновское
                                              • Западный округ
                                              • Киевский
                                              • Клёновское
                                              • Кокошкино
                                              • Краснопахорское
                                              • Марушкинское
                                              • Михайлово-Ярцевское
                                              • Московский
                                              • Московский
                                              • Мосрентген
                                              • Новая Москва
                                              • Новомосковский округ
                                              • Новофёдоровское
                                              • Панфиловский
                                              • Первомайское
                                              • Первый Московский Город-Парк
                                              • Роговское
                                              • Рязановское
                                              • Северный округ
                                              • Северо-Восточный округ
                                              • Северо-Западный округ
                                              • Сосенское
                                              • Троицкий округ
                                              • Филимонковское
                                              • Центральный округ
                                              • Щаповское
                                              • Щербинка
                                              • Юго-Восточный округ
                                              • Юго-Западный округ
                                              • Южный округ

                                              Вместе с этим также ищут:

                                              Продажа квартир в Москве Продажа однокомнатных квартир в Москве Продажа комнат в Москве Продажа гаражей в Москве Продажа вторички - квартиры в Москве Квартиры в новостройках в Москве

                                              🏠 Как купить квартиру в Москве на N1?

                                              • ✔ В поисках объявления о продаже или покупке квартир в Москве?
                                              • ✔ На N1 размещены 53 квартиры
                                              • ✔ Чтобы купить или продать недвижимость, воспользуйтесь формой поиска, фильтрами или быстрыми ссылками.

                                              💸 Сколько стоит квартира в Москве?

                                              • 🟢 Средняя цена продажи квартир - 17,55 млн ₽
                                              • 🟢 Минимальная стоимость за 1 м2: 446,06 тыс ₽

                                              📚 Какая площадь квартир?

                                              • Наибольшая площадь: 93 м²
                                              • Минимальная площадь: 11 м²