2-к, Каховка, 5 корп. 2 Показать на карте
Каховская, 5 мин
Москва
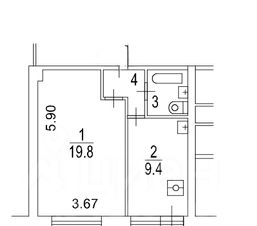
Продается уютная двухкомнатная квартира по адресу Каховка 5 к 2.Район, в котором находится дом, отличается прекрасной инфраструктурой и благоустроенной территорией: здесь много зелени, есть современная детская площадка. В шаговой доступности расположены школы, детские сады, поликлиники, магазины,Любители прогулок оценят близость парка Зюзино, который располагается в 10 минутах ходьбы от дома. Транспортная доступность: удобный выезд на Варшавское и Каширское шоссе.Квартира общей площадью 43 кв.м, удачно расположена на 2 этаже 9 этажного дома. В квартире выполнен качественный ремонт. Квартира функциональной планировки полностью укомплектована мебелью. Два санузла. Квартира прекрасно подойдет для семьи или для арендного бизнеса.Один взрослый собственник, свободная продажа, никто не зарегистрирован.
43 м2
2 / 9 этаж
Монолит
- Показать контакты
- Добавить в избранное
43 м2
2 / 9 этаж
Монолит
16 700 000
388 372 /м2
