Таунхаус, Таманская, 3 ст3 Показать на карте
Москва
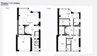
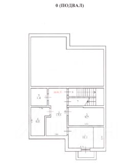
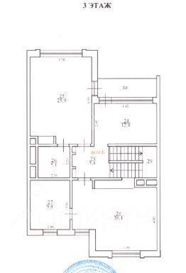
Номер объекта: 013854. На продажу предлагается таунхаус на Рублево-Успенском шоссе, в Москве, в коттеджном поселке Берег Столицы. Таунхаус 4-х уровневый, кирпичный, общей площадью 420 м.кв., расположен на участке размером 5 сот. На 1 м/м. Все коммуникации центральные. Таунхаус под отделку. В цоколе: холл, комната персонала, кладовая, с/у. На первом этаже: холл, кухня, гостиная, гардеробная, с/у. На втором этаже: холл, 3 спальни, 2 с/у. На третьем этаже: холл с выходом на балкон, 2 спальни, 2 с/у.Спальни, детские, гостиные, кабинеты — создайте пространство для комфортной жизни, исходя из ваших желаний. Эксплуатируемая кровля предоставляет дополнительные возможности благоустройства.TWEED Недвижимость - участник ассоциации AREA.
420 м2
4 этажа
Кирпич
- Показать контакты
- Добавить в избранное
420 м2
4 этажа
Кирпич
275 000 000
654 762 /м2
