3-к, Зеленый Парк ЖК, 5.3 Показать на карте
Москва
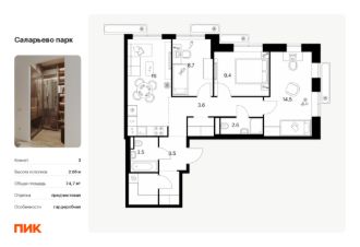
Продаётся 3-комн. квартира площадью 81,4 кв.м на 5 этаже 13 этажного дома (Корпус 5.3, Секция 2) проекта ПИК Зелёный парк. Светлый просторный подъезд на уровне земли, функциональная планировка, большие окна, c отделкой. Большой квартал с оригинальной архитектурой в обжитом районе Зеленограда. От него до станции МЦД-3 ''Зеленоград-Крюково'' — 20 минут пешком, до Кутузовского шоссе можно доехать на машине за 3 минуты, а до Пятницкого шоссе — за 5 минут.Характер ''Зелёного парка'' отражён в архитектуре. Квартал состоит из уютных разноэтажных блоков с оригинальными акцентами. Цветовая палитра проекта спокойная и сдержанная: оттенки белого и коричневого сочетаются с пастельным розовым и мятным.В проекте запланированы также два детских сада, две школы и паркинг. На первых этажах откроются магазины, кафе и другие сервисы — чтобы купить кофе и свежий хлеб к завтраку, можно будет просто спуститься на лифте. В уютных дворах-парках появятся места для отдыха, детские площадки, кофейни и зоны отдыха.Рядом — Зеленоградский лес, Парк Победы и Михайловский пруд, где можно гулять и заниматься спортом. У жителей ''Зелёного парка'' будет возможность получить московскую прописку.Для любителей спорта в 10 минутах пешком от квартала — велодром с BMX-трассой, физкультурно-оздоровительный комплекс Горизонт, а также лыжероллерная трасса длиной около 3 км. Артикул 1030941 (Застройщик АО ''СПЕЦИАЛИЗИРОВАННЫЙ ЗАСТРОЙЩИК ''ЗЕЛЕНОГРАДСКИЙ'')
81 м2
5 / 13 этаж
Монолит
- Показать контакты
- Добавить в избранное
81 м2
5 / 13 этаж
Монолит
23 747 717
291 741 /м2
Новостройка,
III-2028
III-2028
