3-к, Ленинградский проспект, 37/2 Показать на карте
ЦСКА, 11 мин
Москва
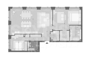
206105 ЖК Prime ParkПродается 3-комнатная квартира площадью 96 м² на 18-м этаже в премиальном комплексе Prime Park. В квартире выполнен дизайнерский ремонт с использованием премиальных материалов.Планировочное решение:- кухня-гостиная с обеденной зоной- 2 мастер-спальни с гардеробной и ванной- гостевой санузел- прихожая с системой хранения- постирочнаяПреимущества квартиры:- площадь 96 м²- потолки 3,1 м- панорамные окна- премиальные материалы в отделке- инженерная доска- натуральный камень, керамогранит, шпон- приточно-вытяжная вентиляция- теплые полы- шумоизоляцияКвартира полностью укомплектована мебелью, техникой и сантехникой премиального уровня: Kuppersbusch, Gessi, Antoniolupi.Благодаря четырем большим панорамным окнам в квартире много естественного света, а также открывается уникальный вид на город и стадион ''ВТБ Арена''. Уникальность квартире придают 2 мастер-спальни.Инфраструктура:Авиапарк, Галерея Аэропорт, ВЭБ Арена, ВТБ Арена, Мегаспорт, престижные школы, гимназии, детские сады и вузы, кафе, рестораны.Транспортная доступность:- 10 минут до центра- 3 станции метро в пешей доступности- 20 минут до ШереметьевоДокументы:- 1 собственник- никто не прописан- без обременений- быстрый выход на сделкуНа этаже 5 квартир, что подчеркивает премиальность дома. Вход осуществляется по магнитному ключу или по заявке через приложение. Закрытая собственная парковая зона — 5 га.Звоните! Будем рады ответить на ваши вопросы.Презентация по запросу.
96 м2
18 / 41 этаж
Монолит
- Показать контакты
- Добавить в избранное
96 м2
18 / 41 этаж
Монолит
135 000 000
1 401 869 /м2
