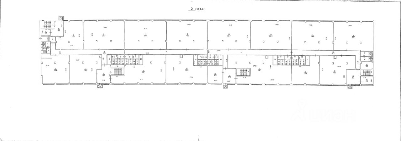
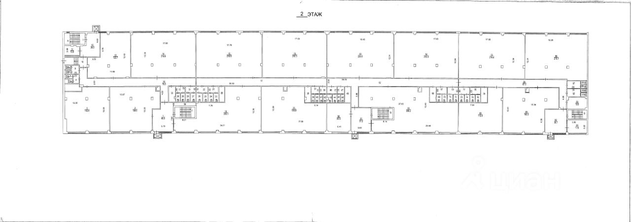
Собственник. Офисный центр ''Новорогожский'' класса В+ занимает огороженную охраняемую территорию площадью 1,4544 га (77:01:0006043:3 - 0,5352 Га, 77:01:0006043:20 - 0,9192 Га) на которой расположены основное офисное здание, состоящее из двух корпусов 11 310 кв.м и 2 050 кв.м, а также два вспомогательных строения (гараж, проходная). Общая площадь зданий 13 540 кв. м. Парковка на 300 машиномест. Здания приведены в состояние готовности под ключ. Отделка выполнена с использованием керамогранита, стекла и металла. В лифтовых холлах установлены лифты OTIS (Франция) грузоподъемностью 1000 кг. Система вентиляции и кондиционирования. Собственная газовая котельная. Оптико-волоконные линии связи. Выделенная мощность 974 кВт. Высота потолков 3-5,2 м. Свободная планировка. Сетка колонн. Большие окна.