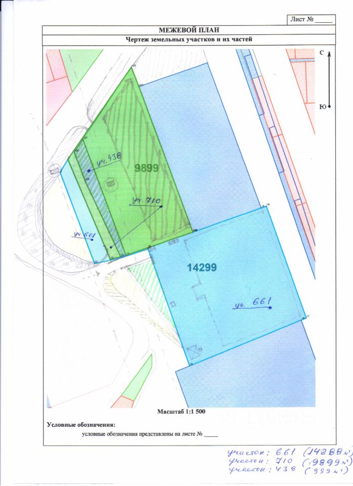
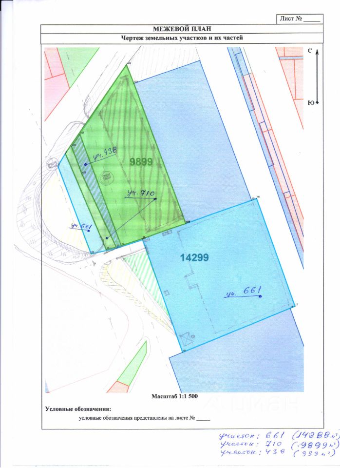
Характеристики: Модульно - каркасное здание 16695 м2 в 2х эт. с антресолью, здание модульной котельной Земельный участок 1.4 га (Кадастровый номер: 50-50-21/085/2008-289). Помещение охраны-18м2, Здание трансформаторной -18м2, Прилегающая к территории стоянка на 30 машиномест. Здание Пл.- 16695.8 м2- из них: Площадь складских помещений 15796.3 м2, Офисных 899.5 м2.
Высота до ферм в складском помещении 1ого эт.-9.00м, 2ого эт.-6.00м, высота антресоли 3.5м.
Полностью сдан в аренду.
Возможно дополнить 5305 м2 на отдельном земельном участке высота потолков- 12м
Характеристики: Модульно - каркасное здание 16695 м2 в 2х эт. с антресолью, здание модульной котельной Земельный участок 1.4 га (Кадастровый номер: 50-50-21/085/2008-289). Помещение охраны-18м2, Здание трансформаторной -18м2, Прилегающая к территории стоянка на 30 машиномест. Здание Пл.- 16695.8 м2- из них: Площадь складских помещений 15796.3 м2, Офисных 899.5 м2.
Высота до ферм в складском помещении 1ого эт.-9.00м, 2ого эт.-6.00м, высота антресоли 3.5м. Степень огнестойкости III. Отделка фасада сэндвич-панели, отделка цоколь штукатурка. Окна двойной стеклопакет, двери и ворота металлические-секционные. Сетка колонн 12 х 12 м на 1ом эт.,и 12х24 м на 2ом.эт. Горячее водоснабжение от газ. котельной, Расход тепла 0,05 Гкал/ч Холодное водоснабжение централизованное, с врезкой в существующую сеть. Суточный расход воды 9,0 м3/сутки. Возможное доп. выделение воды-15м3/сут.
Ливневая канализация на существующие очистные сооружения ливневых вод. Водоотведение через систему хоз.-быт. канализации в локальные очистные сооружения. Объем бытовых стоков 9,0 м3/сутки.
Электроснабжение от трансформаторной подстанции, расположенной на данном участке-300 КВТ (с возможностью докупить 500кВт).
Дополнительно возможно обеспечить газификацию объекта-30-50м3/сутки. (с нужным объемом газа).
Можно как арендный бизнес с сохранением арендаторов Склад полностью сдан в аренду, есть потенциал для индексации. Рассмотрим Ваши предложения и различные формы сделок.