Если цена в объявлении изменится, мы сразу сообщим вам об этом на электронную почту.
Нажимая «Подписаться», вы соглашаетесь с правилами.
продам 4-к, Грузинская Б., 69135 000 000 ₽
3 мар
Дата публикации объявления
Обн. 23 мая
Дата обновления объявления
1 013 514 ₽/м²
Чистая продажа
Термин "Чистая продажа" означает, что в квартире никто не прописан или
есть куда выписаться и вывезти вещи. Это лучший вариант для покупателя.
Вероятность срыва сделки минимальна.
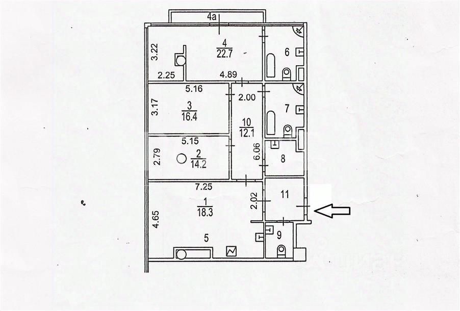
Лот: 25837. На продажу предлагается четырехкомнатная квартира площадью 132 кв.м. в премиальном жилом комплексе ''Четыре Ветра''.
В квартире выполнен ремонт по индивидуальному проекту с использованием премиальных материалов. Квартира полностью укомплектована бытовой техникой и мебелью итальянского производства.
Функциональная планировка: кухня-гостиная, две спальни со своими санузлами, кабинет (можно организовать третью спальню), гостевой санузел, постирочная, прихожая, просторный балкон.
Панорамные окна и высокие потолки (3,35 м.) создают ощущение пространства и наполненности светом. Квартира угловая, панорамные окна выходят на две стороны.
Лот: 25837. На продажу предлагается четырехкомнатная квартира площадью 132 кв.м. в премиальном жилом комплексе ''Четыре Ветра''.
В квартире выполнен ремонт по индивидуальному проекту с использованием премиальных материалов. Квартира полностью укомплектована бытовой техникой и мебелью итальянского производства.
Функциональная планировка: кухня-гостиная, две спальни со своими санузлами, кабинет (можно организовать третью спальню), гостевой санузел, постирочная, прихожая, просторный балкон.
Панорамные окна и высокие потолки (3,35 м.) создают ощущение пространства и наполненности светом. Квартира угловая, панорамные окна выходят на две стороны.