Лучшие виды с высоты птичьего полета, которые никто никогда не перекроет.
Срочная продажа, цена ниже застройщика на 4 млн. Переуступка. Обременений нет.
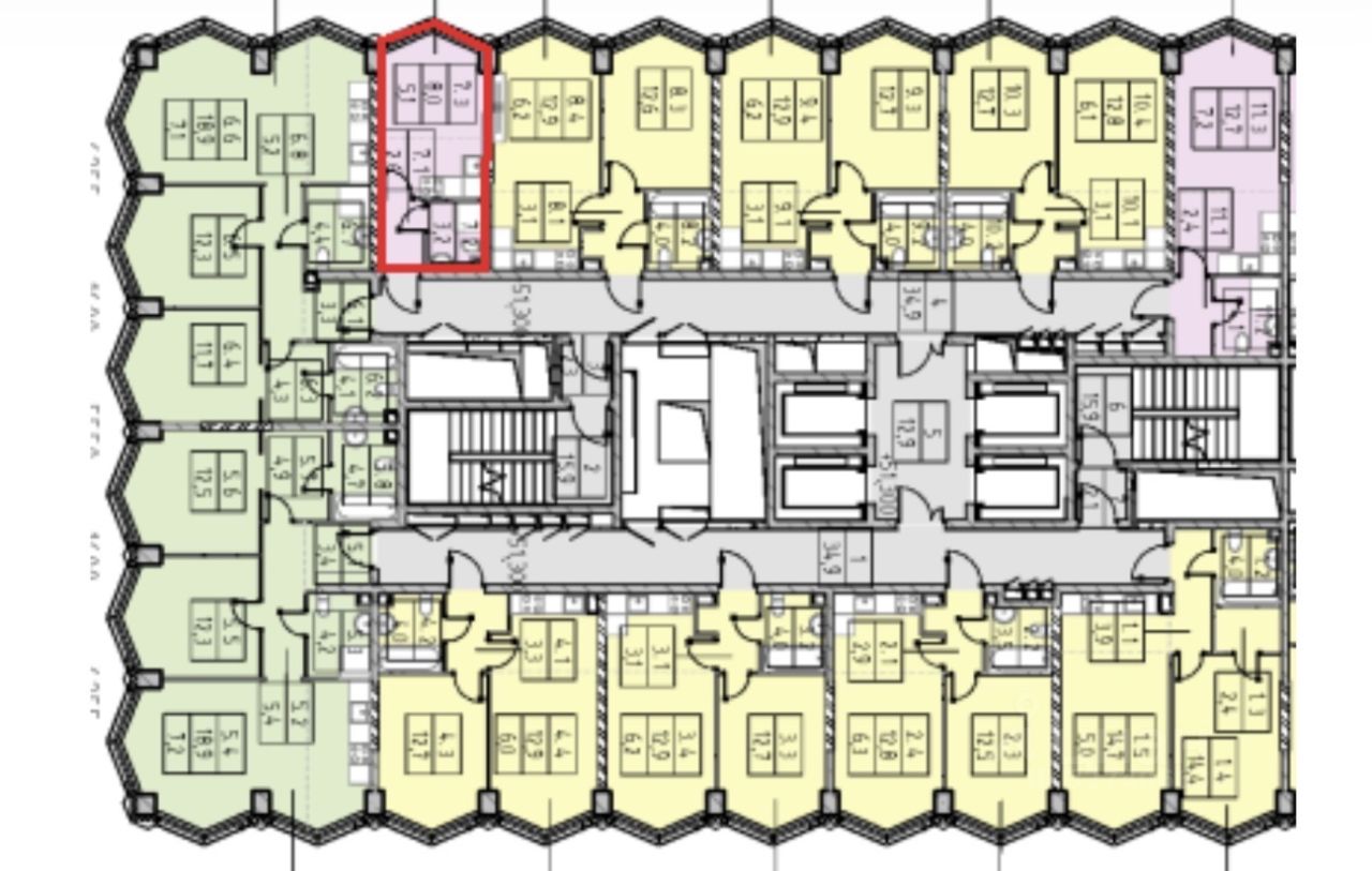
Что за такое райское место Зиларт вы наверняка знаете. А это дом Spark, самый ближайший дом к метро и красивому парку.
Я собственник. Риелторов не беспокоить, уже есть.





