Если цена в объявлении изменится, мы сразу сообщим вам об этом на электронную почту.
Нажимая «Подписаться», вы соглашаетесь с правилами.
продам 3-к квартира28 400 000 ₽
28 фев
Дата публикации объявления
Обн. 25 апр
Дата обновления объявления
2
Количество просмотров (+ просмотры за сегодня)
Топ
438 272 ₽/м²
Чистая продажа
Термин "Чистая продажа" означает, что в квартире никто не прописан или
есть куда выписаться и вывезти вещи. Это лучший вариант для покупателя.
Вероятность срыва сделки минимальна.
Квартира
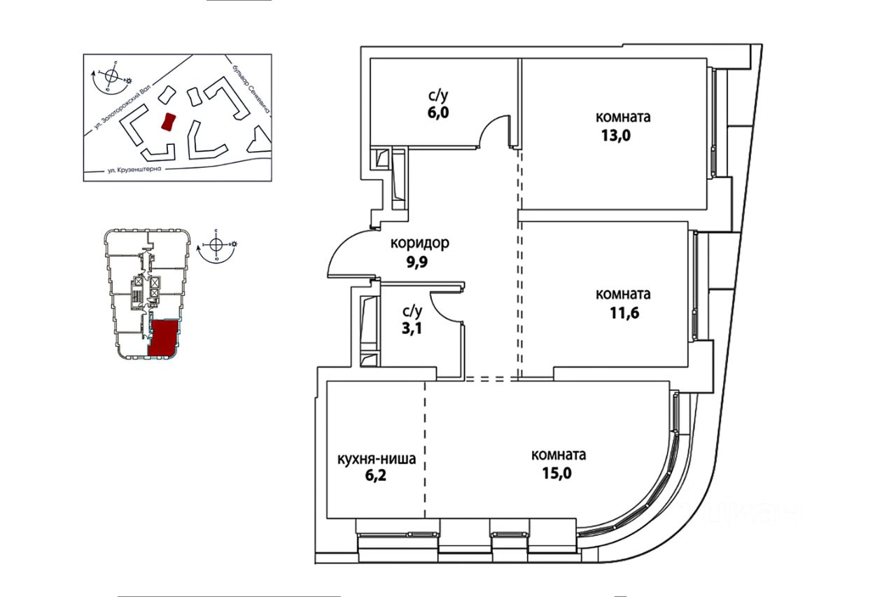
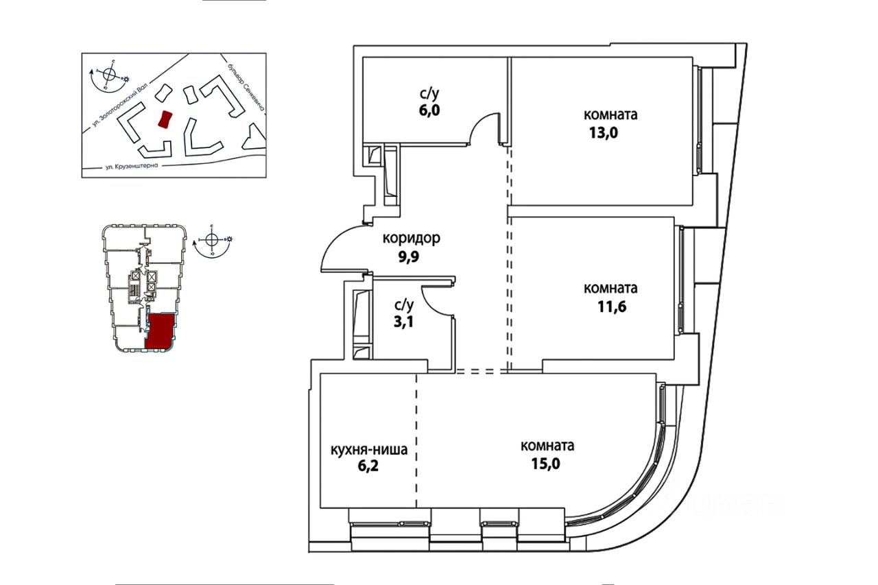
Общая площадь64,8 м2
Кухня6,2 м2
Тип собственностидругое (укажите в описании)
Дом
Срок сдачи4 кв. 2027 г.
Этаж4 из 27
Материал домамонолит
В жилом комплексе Символ, корпусе Вдохновение предлагается трехкомнатная квартира без отделки. Удобная и функциональная планировка включает: кухню-гостиную, две спальни, две ванные комнаты, просторный коридор с зоной гардеробной. Панорамные окна кварты ориентированы в две стороны, открывается вид в благоустроенный внутренний двор. Представьте себе жилой квартал, где городская жизнь гармонично переплетается с природой, где каждый элемент продуман для вашего комфорта. Это СИМВОЛ расположенный на самой окраине центра Москвы, всего в двух километрах от Садового кольца, и в непосредственной близости от живописной набережной Яузы и векового Лефортовского парка. Архитектурная концепция СИМВОЛА, созданная международными мастерами LDA Design и UHA London, вдохновлена самой природой.
В жилом комплексе Символ, корпусе Вдохновение предлагается трехкомнатная квартира без отделки. Удобная и функциональная планировка включает: кухню-гостиную, две спальни, две ванные комнаты, просторный коридор с зоной гардеробной. Панорамные окна кварты ориентированы в две стороны, открывается вид в благоустроенный внутренний двор. Представьте себе жилой квартал, где городская жизнь гармонично переплетается с природой, где каждый элемент продуман для вашего комфорта. Это СИМВОЛ расположенный на самой окраине центра Москвы, всего в двух километрах от Садового кольца, и в непосредственной близости от живописной набережной Яузы и векового Лефортовского парка. Архитектурная концепция СИМВОЛА, созданная международными мастерами LDA Design и UHA London, вдохновлена самой природой. Плавные, текучие линии зданий, напоминающие природные формы, создают ощущение спокойствия и уюта, избавляя от визуальной агрессии острых углов. Внутри квартала вас ждут настоящие зеленые оазисы просторные дворы, свободные от автомобилей, где царит атмосфера безопасности и уединения. Сердцем СИМВОЛА является парк Зеленая река двухкилометровый зеленый оазис, который служит местом для отдыха, встреч и проведения мероприятий. Парк предлагает разнообразные зоны для активного и творческого досуга: от игровых комплексов для детей до амфитеатра и площадок для танцев. СИМВОЛ уже обладает развитой городской инфраструктурой: здесь есть лицей, детские сады, спортивные объекты, медицинские учреждения, магазины и рестораны. Близость к Лефортовскому парку, парку Казачьей Славы и набережной Яузы, а также расположенный напротив ТРЦ Город, делают жизнь в СИМВОЛЕ максимально удобной и насыщенной