сдам универсальное помещение, Русаковская, 12 корп. 1150 000 ₽ в месяц
28 фев
Дата публикации объявления
Обн. 29 мар
Дата обновления объявления
3947 ₽/м² в месяц
Параметры
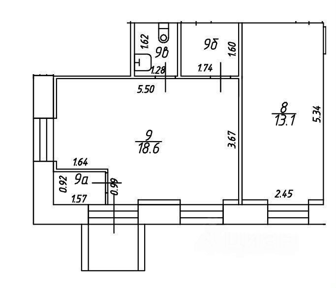
Общая площадь38 м2
Этаж1
Отдельный входесть
Сдаётся помещение на 1 этаже с отдельным входом | 1 линия Предлагается в аренду просторное коммерческое помещение на 1 этаже с отдельным входом. До метро — около 8 минут пешком Проходная улица Живой район с постоянным трафиком Помещение расположено на первой линии домов, прямо на пешеходном потоке, отлично просматривается с проезжей части. Собственник.
Сдаётся помещение на 1 этаже с отдельным входом | 1 линия Предлагается в аренду просторное коммерческое помещение на 1 этаже с отдельным входом. До метро — около 8 минут пешком Проходная улица Живой район с постоянным трафиком Помещение расположено на первой линии домов, прямо на пешеходном потоке, отлично просматривается с проезжей части. Собственник. О помещении: • Планировка — 2 комнаты • Между ними ненесущая перегородка (можно объединить в единое пространство) • Подсобное помещение — 2 м² • Окна на две стороны — хорошее естественное освещение • Есть мокрая точка Трафик и окружение: • 1 минута пешком до МЦД Митьково — регулярный поток людей • На пути к метро Сокольники и Красносельская (8 минут пешком) • Напротив расположен крупный бизнес-центр • Рядом школа — дополнительный стабильный поток Локация обеспечивает постоянное движение потенциальных клиентов. Подойдёт для: ПВЗ (в радиусе отсутствуют конкуренты) Офиса Сферы услуг Шоурума Магазина Звоните или пишите — организую оперативный показ.