28 фев
Обн. сегодня
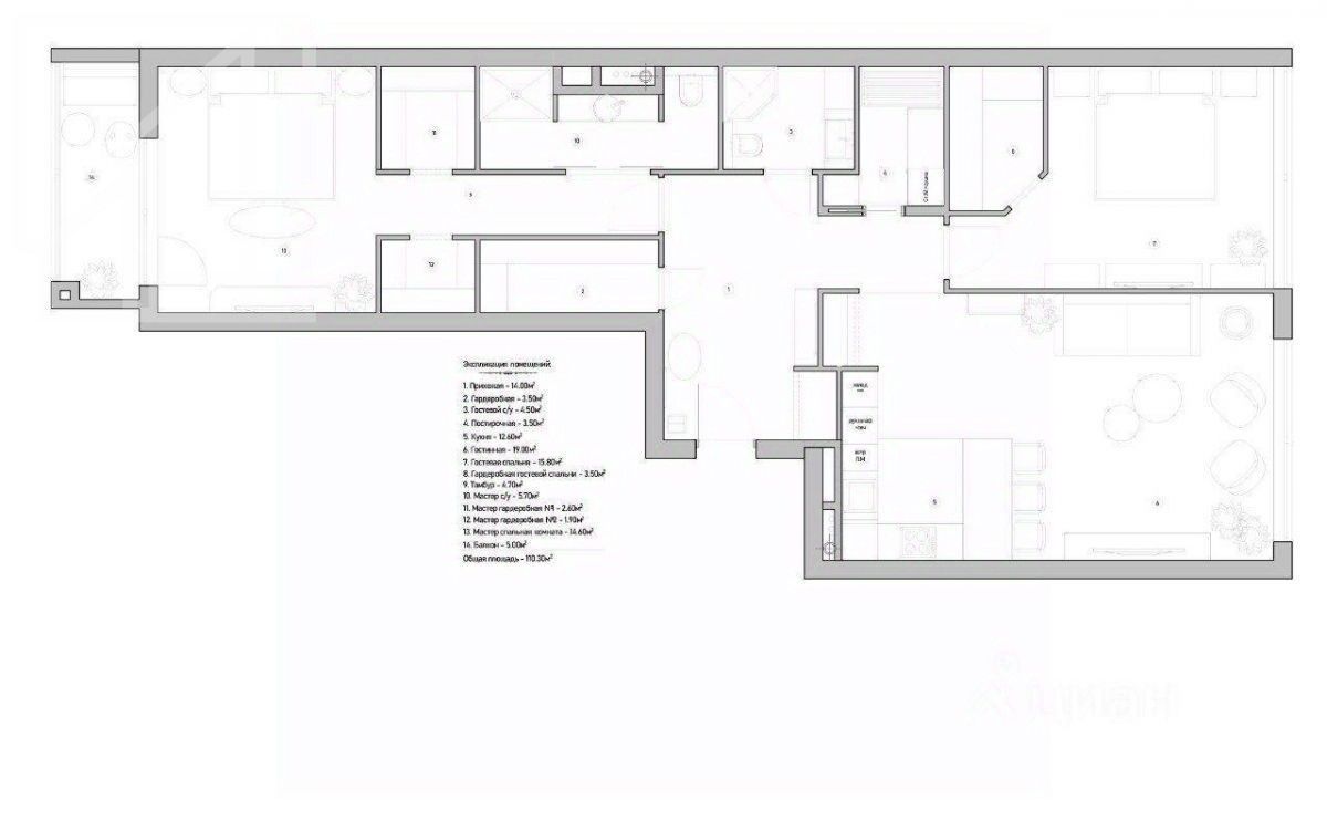
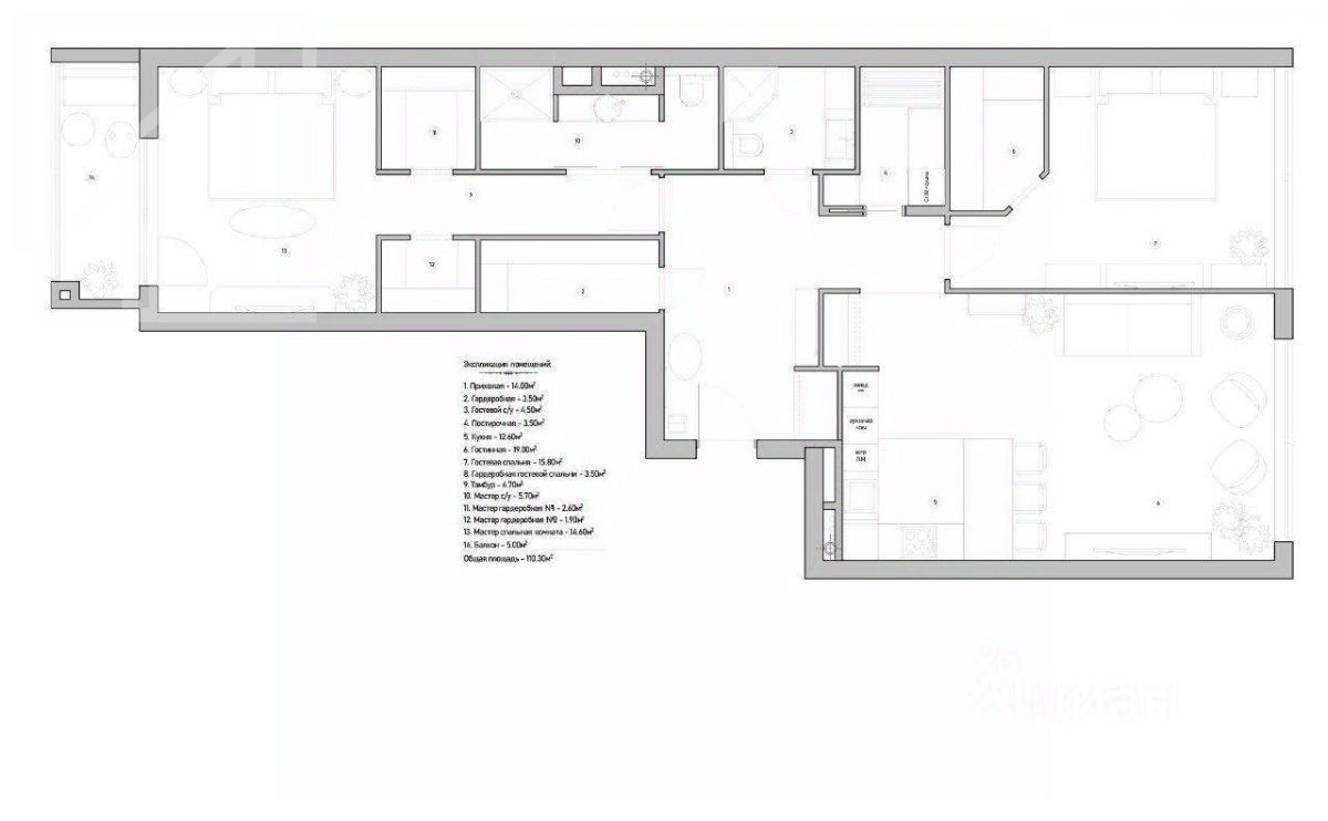
Сдам 3-к, Усачева, 15а
Спортивная, 8 минут пешком
Фрунзенская, 8 минут пешком
Москва
1 050 000 ₽ в месяц
Квартира
- Общая площадь106 м²
- Балкон1
Дом
- Год постройки2022
- Этаж7 из 14
- Материал домамонолит
Описание
Лот 555139. Бонус коллегам! Предлагается квартира с уникальной планировкой в Хамовниках.
Контакты
Агентство недвижимости
Trust Realty
Юлианна Trust Realty
№117198062




