Если цена в объявлении изменится, мы сразу сообщим вам об этом на электронную почту.
Нажимая «Подписаться», вы соглашаетесь с правилами.
продам 1-к, МКАД 51-й километр, 3.517 129 460 ₽
27 фев
Дата публикации объявления
Обн. сегодня
Дата обновления объявления
Спецпредложение
Турбо x8
402 100 ₽/м²
Чистая продажа
Термин "Чистая продажа" означает, что в квартире никто не прописан или
есть куда выписаться и вывезти вещи. Это лучший вариант для покупателя.
Вероятность срыва сделки минимальна.
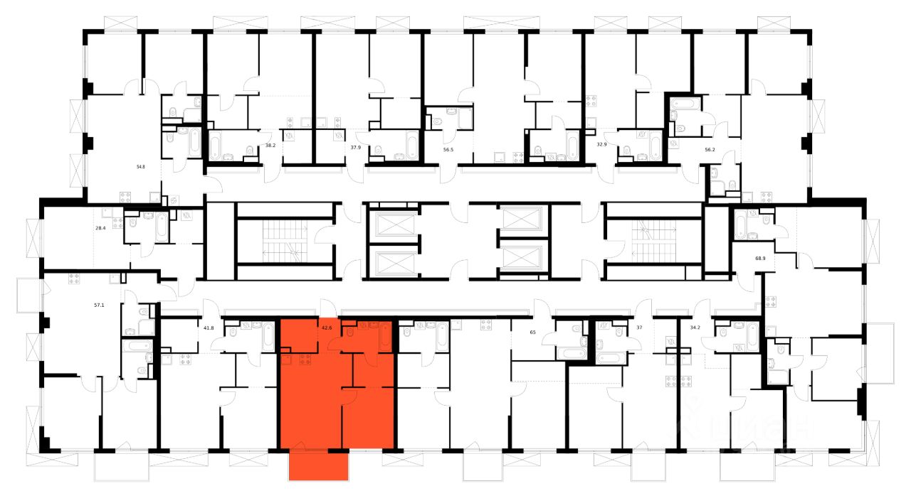
Продаётся 1-комн. квартира площадью 42,6 кв.м на 12 этаже 24 этажного дома (Корпус 3.5, Секция 2) проекта ПИК Кавказский бульвар 51. Светлый просторный подъезд на уровне земли, функциональная планировка, большие окна, предчистовая отделка.
''Кавказский бульвар 51'' — современный жилой квартал в районе Царицыно. Проект частично реализован и находится в районе Царицыно, недалеко от одноимённого музея-заповедника. До метро ''Кантемировская'' — 17 минут пешком.
За 20 можно дойти до станции ''Чертаново''. В 10 минутах на машине — МКАД, в 11 минутах — Варшавское шоссе, а в 16 минутах — ТТК.
В проекте жилые дома высотой от 5 до 33 этажей, детский сад и школа.
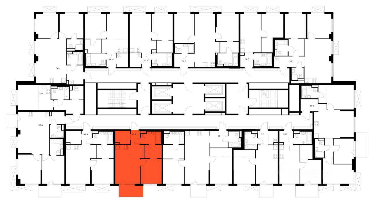
Продаётся 1-комн. квартира площадью 42,6 кв.м на 12 этаже 24 этажного дома (Корпус 3.5, Секция 2) проекта ПИК Кавказский бульвар 51. Светлый просторный подъезд на уровне земли, функциональная планировка, большие окна, предчистовая отделка.
''Кавказский бульвар 51'' — современный жилой квартал в районе Царицыно. Проект частично реализован и находится в районе Царицыно, недалеко от одноимённого музея-заповедника. До метро ''Кантемировская'' — 17 минут пешком.
За 20 можно дойти до станции ''Чертаново''. В 10 минутах на машине — МКАД, в 11 минутах — Варшавское шоссе, а в 16 минутах — ТТК.
В проекте жилые дома высотой от 5 до 33 этажей, детский сад и школа. На первых этажах доступны магазины, кафе, салоны красоты и другие сервисы — чтобы купить кофе и свежий хлеб к завтраку, можно просто спуститься на лифте. В уютных дворах-парках есть места для отдыха и детские площадки. Для прогулок на свежем воздухе мы построим для жителей широкий пешеходный бульвар.
В районе вокруг ''Кавказского бульвара 51'' есть всё для комфортной жизни: детские сады, школы, поликлиники, магазины и торговые центры. Девять минут на машине — и вы у музея-заповедника ''Царицыно'', где можно гулять среди исторических построек, лежать на траве под тенью деревьев или заниматься спортом на специальных площадках. Есть парки и поближе: до Аршиновского можно дойти за 8 минут, а до парка ''Сосенки'' — за 13 минут. Артикул 998616 (Застройщик АО ''СПЕЦИАЛИЗИРОВАННЫЙ ЗАСТРОЙЩИК ''ТОРГОВЫЙ ДОМ СПУТНИК'')