Квартира расположена в доме в хорошем районе города Москвы, во дворе есть машино места, детская площадка.
В шаговой доступности несколько лесо парковых зон ( Дубовая роща маяк, Сходненский ковш), Химкинское водохранилище.
Вокруг много магазинов, школы, поликлиники.
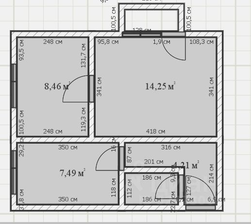
Хорошая планировка на 2 стороны дает много света в дневное время, отопление хорошее.
Свободная продажа , оперативный показ более 5 лет в собственности, никто не зарегистрирован, онин взрослый собственник.





























