сдам офисное помещение, Горбунова, 2 ст3800 000 ₽ в месяц
26 фев
Дата публикации объявления
Обн. сегодня
Дата обновления объявления
3404 ₽/м² в месяц
Параметры
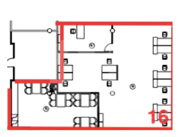
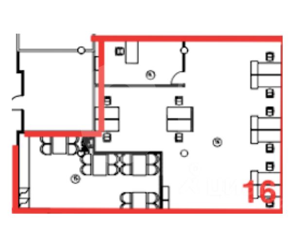
Общая площадь235 м2
Этаж7
Год постройки2011
Предлагаем в аренду офис на 20 - 52 сотрудников в бизнес-центре ''Гранд Сетунь Плаза''. Разработаем планировку под вашу команду бесплатно с неограниченными правками.
Площадь: 235 м². Состояние: готов к въезду. Арендная плата: 800 000 руб./мес. Ставка: 40 851 руб./м²/год (включая эксплуатацию). Налогообложение: УСН. Коммунальные расходы: оплачиваются по факту. Тип аренды: Прямая аренда. Этаж: 7 из 10.
Помещение с функциональной смешанной планировкой.
Вентиляция: приточно-вытяжная. Кондиционирование: центральное. Охрана: система управления контроля доступа. Пожарная сигнализация: спринклерная система.
Бизнес-центр Гранд Сетунь Плаза класса В+ расположен рядом с метро Сетунь.
Предлагаем в аренду офис на 20 - 52 сотрудников в бизнес-центре ''Гранд Сетунь Плаза''. Разработаем планировку под вашу команду бесплатно с неограниченными правками.
Площадь: 235 м². Состояние: готов к въезду. Арендная плата: 800 000 руб./мес. Ставка: 40 851 руб./м²/год (включая эксплуатацию). Налогообложение: УСН. Коммунальные расходы: оплачиваются по факту. Тип аренды: Прямая аренда. Этаж: 7 из 10.
Помещение с функциональной смешанной планировкой.
Вентиляция: приточно-вытяжная. Кондиционирование: центральное. Охрана: система управления контроля доступа. Пожарная сигнализация: спринклерная система.
Бизнес-центр Гранд Сетунь Плаза класса В+ расположен рядом с метро Сетунь.
Удобный выезд на: СЗХ, МКАД.
Инфраструктура здания: Наземная парковка на 234 места, столовая и кафе, продуктовый магазин, фитнес-центр, торговая галерея, 9 пассажирских лифтов.
Юридические адреса обслуживаются в налоговой 31.
Звоните или пишите в чат - организуем просмотр в день обращения и направим презентацию по объекту.
Бесплатно разработаем планировку под вашу команду, рассчитаем оптимальную рассадку и зонирование.
*Количество рабочих мест рассчитано автоматически: от 4,5 до 12 м² на человека. ID объекта: 034736