Если цена в объявлении изменится, мы сразу сообщим вам об этом на электронную почту.
Нажимая «Подписаться», вы соглашаетесь с правилами.
продам универсальное помещение, Народного Ополчения, 17к340 340 000 ₽
21 фев
Дата публикации объявления
Обн. вчера
Дата обновления объявления
2
Количество просмотров (+ просмотры за сегодня)
Топ
650 000 ₽/м²
Параметры
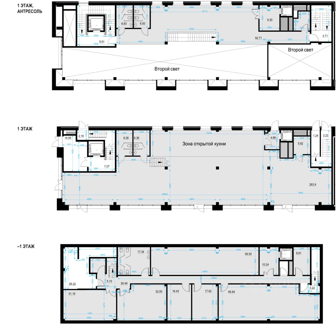
Общая площадь523,6 м2
Этаж1
Назначение помещения
кафе, бар, ресторан
Продается помещение общей площадью 523,6 кв.м с базовой предчистовой отделкой. Веллтон Клуб - новый формат коммерческой недвижимости, который станет центром притяжения густонаселенного квартала Wellton Park. В пешей доступности проживает более 70 000 тыс. жителей. Превосходная транспортная доступность и пешеходный трафик (8 мин до станции метро ''Народное ополчение''). Потенциальное назначение: ресторан Помещение расположено на 3-х уровнях: -1 этаж - 111,1 кв.м. 1 этаж - 267,5 кв.м. антресоль - 145 кв.м.
Базовая отделка включает: - Пол: керамогранит и наливной. - Стены: внутренние перегородки из блоков, лестничные пролеты и лифтовые холлы в чистовой отделке.
Продается помещение общей площадью 523,6 кв.м с базовой предчистовой отделкой. Веллтон Клуб - новый формат коммерческой недвижимости, который станет центром притяжения густонаселенного квартала Wellton Park. В пешей доступности проживает более 70 000 тыс. жителей. Превосходная транспортная доступность и пешеходный трафик (8 мин до станции метро ''Народное ополчение''). Потенциальное назначение: ресторан Помещение расположено на 3-х уровнях: -1 этаж - 111,1 кв.м. 1 этаж - 267,5 кв.м. антресоль - 145 кв.м.
Базовая отделка включает: - Пол: керамогранит и наливной. - Стены: внутренние перегородки из блоков, лестничные пролеты и лифтовые холлы в чистовой отделке. - Санузлы (1 этаж): 3 санузла в чистовой отделке с установленной сантехникой. - Потолки: подвесные ''Армстронг'' и ГКЛ
Высота потолков от 4 м до 8 м. Электрическая мощность по запросу. Приточно-вытяжная вентиляция, центральное кондиционирование, отопление, мокрые точки и отдельная технология под размещение ресторана.
Рекламные возможности: - Размещение рекламных вывесок на фасаде, - Реклама среди жителей жилого квартала через Управляющую компанию.