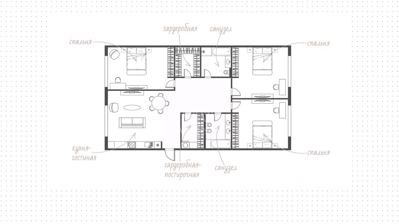
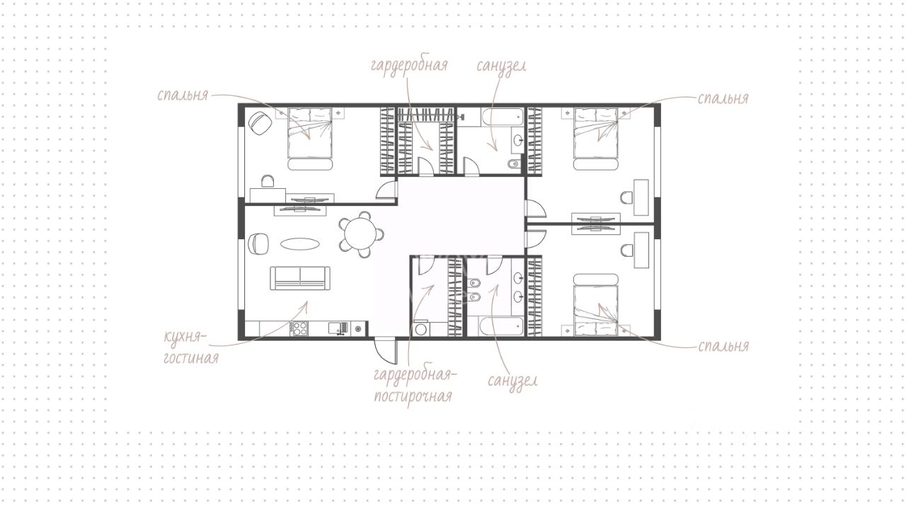
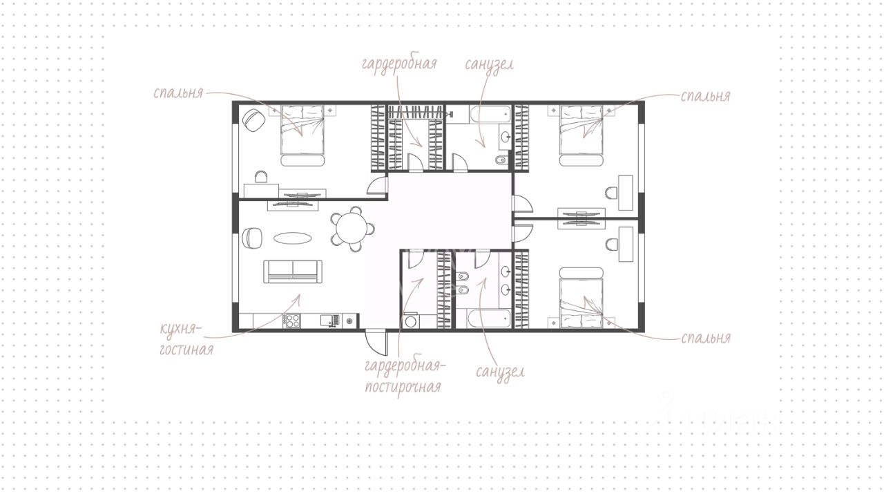
Просторная квартира с 3 спальнями в комплексе премиум-класса ''Садовые кварталы''. Квартира без отделки площадью 187 м² расположена на 2 этаже. Возможно спланировать кухню-гостиную, 3 спальни, 2 санузла, гардеробные и холл. Панорамные окна ориентированы на две стороны света, открываются виды на территорию комплекса.
Комментарий эксперта. Меня зовут Надежда Кузнецова — брокер компании Whitewill. Я отвечаю за продажу этого лота. Свяжитесь со мной, чтобы получить расширенную презентацию, больше фотографий или договориться о просмотре. Могу провести экскурсию по локации и познакомить вас с этим домом.
ID 324 798.


















