Термин "Чистая продажа" означает, что в квартире никто не прописан или
есть куда выписаться и вывезти вещи. Это лучший вариант для покупателя.
Вероятность срыва сделки минимальна.
Предлагается на продажу двухэтажный пентхаус 276,1 м², с террасой и возможностью воплощения индивидуального дизайна в интерьере, в премиальном комплексе ''ТИТУЛ на Серебрянической'' корпус AUREUS
Преимущества лота:
- Окна из дуба, выходят на Ю-В
- Вид на реку и высотку на Котельнической набережной
- Входная дверь с металлическим усилением, отделана шпоном
- Отсутствие несущих конструкций позволит осуществить любое дизайнерское решени
Функциональная планировка:
1 этаж
- Кухня-гостиная 45,5 м²
- Спальня/детская с гардеробной и ванной комнатой 43,5 м²
- Спальня/детская/кабинет 32,4 м²
- Санузел с ванной/душевой кабиной 4,9 м²
- Гостевой с
Предлагается на продажу двухэтажный пентхаус 276,1 м², с террасой и возможностью воплощения индивидуального дизайна в интерьере, в премиальном комплексе ''ТИТУЛ на Серебрянической'' корпус AUREUS
Преимущества лота:
- Окна из дуба, выходят на Ю-В
- Вид на реку и высотку на Котельнической набережной
- Входная дверь с металлическим усилением, отделана шпоном
- Отсутствие несущих конструкций позволит осуществить любое дизайнерское решени
Функциональная планировка:
1 этаж
- Кухня-гостиная 45,5 м²
- Спальня/детская с гардеробной и ванной комнатой 43,5 м²
- Спальня/детская/кабинет 32,4 м²
- Санузел с ванной/душевой кабиной 4,9 м²
- Гостевой санузел 2,8 м²
- Прихожая - 14 м²
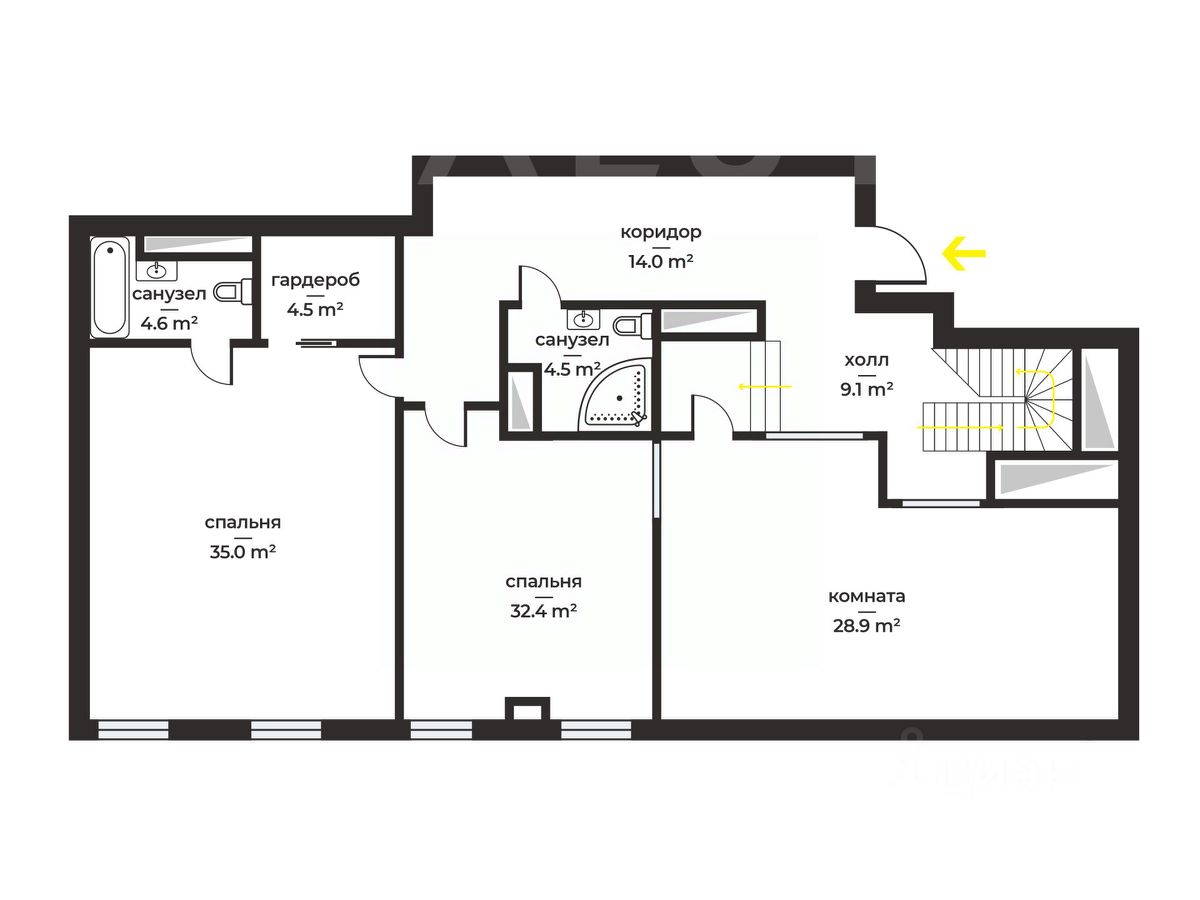
2 этаж
- Спальня/детская с гардеробной и ванной комнатой 44,1 м²
- Спальня/детская/кабинет 32,4 м²
- Санузел с ванной/душевой кабиной 4,5 м²
- Биллиардная/игровая 28,9 м²
- Холл 9,1 м²
- Прихожая - 14 м²
Инфраструктура комплекса:
- Роскошные лобби в дизайнерском исполнении от самого востребованного архитектурного бюро Лондона
- Клабхаус располагает лаундж-зоной с мраморным камином, домашней библиотекой и большим столом для переговоров и проведения встреч
- Собственный двор-парк от ландшафтных дизайнеров парка Зарядье
- Система тонкой фильтрации воды и воздуха
Инфраструктура района:
- В пешей доступности театры центра Москвы, Бульварное кольцо, набережная Москва-реки, ГУМ и ЦУМ
- В 15 минутах ходьбы находится парк Зарядье и Московский кремль
- Комплекс расположен в одном из самых тихих районов центра Москвы, сохранивших дух 19-го века и окружен скверами, многочисленными православными храмами и палатами 17-века