сдам офисное помещение, Большая Якиманка, 17/2 ст13 843 633 ₽ в месяц
13 фев
Дата публикации объявления
Обн. 14 мая
Дата обновления объявления
2
Количество просмотров (+ просмотры за сегодня)
4159 ₽/м² в месяц
Параметры
Общая площадь924 м2
Этаж2
Год постройки1900
БЕЗ КОМИССИИ! Аренда от собственника!
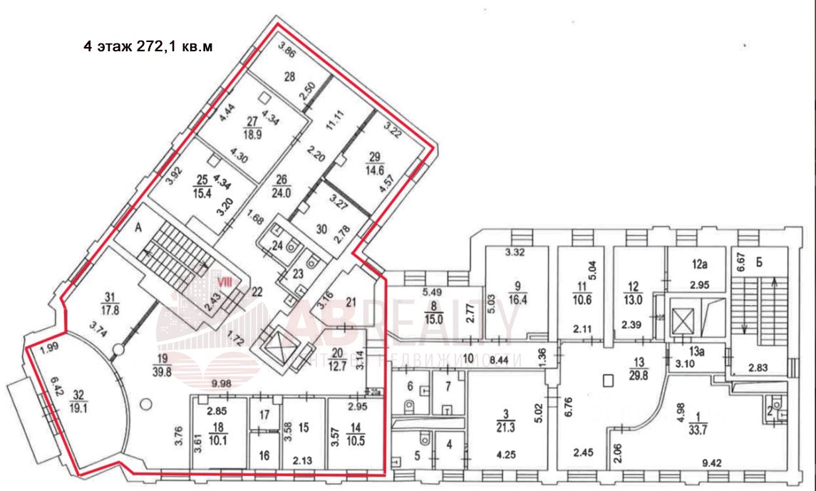
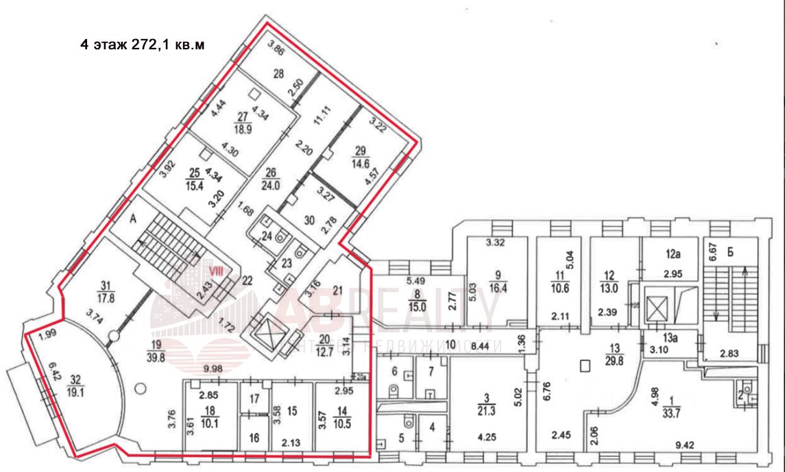
В ЦАО в бизнес-центре на Якиманке сдаются в аренду офисы от 184 кв.м. БЦ класс В+. Престижная локация: 3 мин. пешком м. Полянка, 10 мин. м. Третьяковская и м. Октябрьская. Исторический центр города. Выезд на Садовое и Бульварное кольцо.
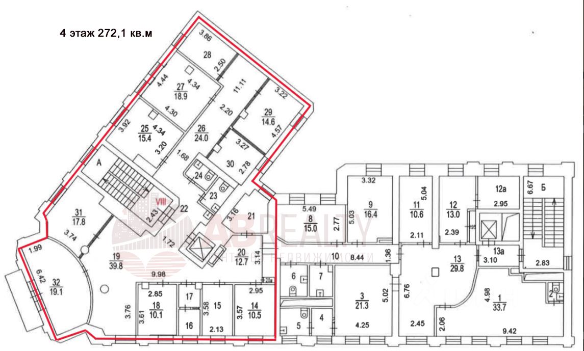
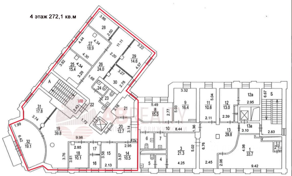
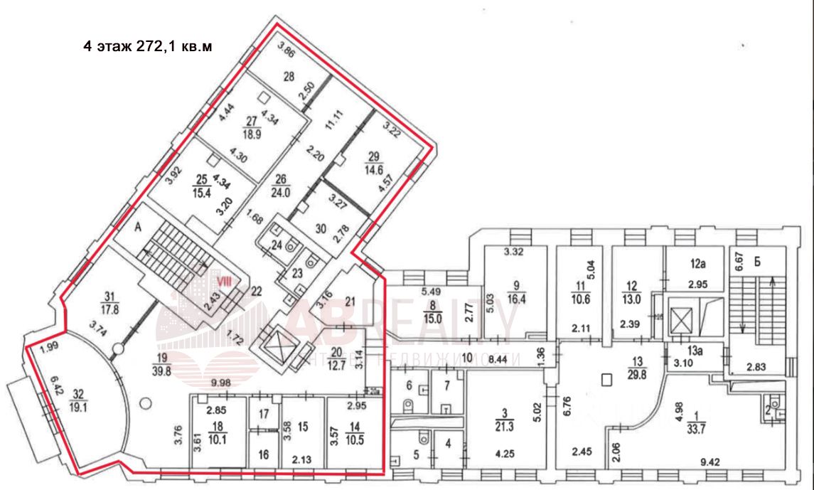
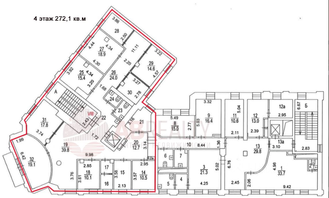
2 этаж офис 184,1 кв.м. 3 этаж офисные блоки 253 кв.м и 214,8 кв.м. 4 этаж офис 272,1 кв.м. Просторные кабинеты с окнами, в блоках свои кухни с мокрой точкой и санузлы. Качественная офисная отделка. Потолки 3,2 м.
БЕЗ КОМИССИИ! Аренда от собственника!
В ЦАО в бизнес-центре на Якиманке сдаются в аренду офисы от 184 кв.м. БЦ класс В+. Престижная локация: 3 мин. пешком м. Полянка, 10 мин. м. Третьяковская и м. Октябрьская. Исторический центр города. Выезд на Садовое и Бульварное кольцо.
2 этаж офис 184,1 кв.м. 3 этаж офисные блоки 253 кв.м и 214,8 кв.м. 4 этаж офис 272,1 кв.м. Просторные кабинеты с окнами, в блоках свои кухни с мокрой точкой и санузлы. Качественная офисная отделка. Потолки 3,2 м.
- Доступ 24/7 - Фасад после реконструкции - Современные инженерные коммуникации - Приточно-вытяжная вентиляция и центральное кондиционирование - Круглосуточная охрана и видеонаблюдение - Развитая инфраструктура: рестораны, кафе, музеи, ТЦ и тд. - Имеется возможность парковки в соседнем ЖК Есенин (по наличию)
Прямой договор с собственником! БЕЗ скрытых платежей и комиссий! Арендная ставка указана с учетом НДС и эксплуатационных расходов. Предоставляется юридический адрес. ИФНС 6. Звоните и записывайтесь на просмотр!