Если цена в объявлении изменится, мы сразу сообщим вам об этом на электронную почту.
Нажимая «Подписаться», вы соглашаетесь с правилами.
продам дом, Беклемишево12 000 000 ₽
13 фев
Дата публикации объявления
Обн. 13 мар
Дата обновления объявления
3
Количество просмотров (+ просмотры за сегодня)
82 759 ₽/м²
Чистая продажа
Термин "Чистая продажа" означает, что в квартире никто не прописан или
есть куда выписаться и вывезти вещи. Это лучший вариант для покупателя.
Вероятность срыва сделки минимальна.
Этажей2
Площадь участка8 соток
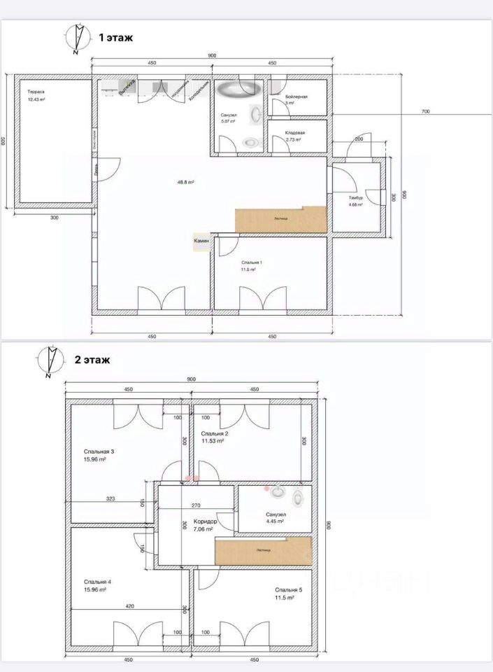
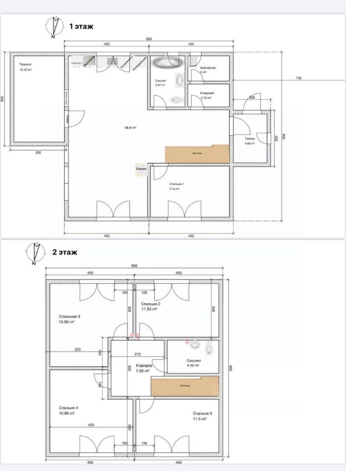
Общая площадь145 м2
Материал домапанель
Газоснабжениенет
Арт. 129417218 Предлагаем вашему вниманию прекрасный дом, расположенный в тихом и живописном месте. Это идеальное место для тех, кто ценит красоту природы и спокойствие.
Продаётся современный каркасный дом 160 м², построенный в 2021 году, на участке 8 соток, прямо у леса. Дмитровский район, д. Беклемишево, всего 45 км от МКАД по Дмитровскому шоссе. Цена: 12 млн рублей.
Дом строился для себя, с вниманием к деталям и из качественных, проверенных материалов. Здесь всё продумано для комфортной, спокойной жизни вдали от городского шума — но с удобной доступностью к Москве.
Планировка, в которую легко влюбиться
Фундамент ТИСЭ — надёжность и долговечность.
Арт. 129417218 Предлагаем вашему вниманию прекрасный дом, расположенный в тихом и живописном месте. Это идеальное место для тех, кто ценит красоту природы и спокойствие.
Продаётся современный каркасный дом 160 м², построенный в 2021 году, на участке 8 соток, прямо у леса. Дмитровский район, д. Беклемишево, всего 45 км от МКАД по Дмитровскому шоссе. Цена: 12 млн рублей.
Дом строился для себя, с вниманием к деталям и из качественных, проверенных материалов. Здесь всё продумано для комфортной, спокойной жизни вдали от городского шума — но с удобной доступностью к Москве.
Идеально для большой семьи или комфортного приёма гостей.
Терраса 15 м² — место для утреннего кофе, летних ужинов и тихих вечеров с видом на лес
Надёжность и безопасность
современная охранная система окна Rehau кровельная система GrandLine продуманная дренажная система
Дом отлично защищён от холода, влаги и непогоды.
Премиальные коммуникации и оснащение
скважина 68 м с системой очистки воды автономная канализация Евролос БИО 5 ''умный'' бойлер Electrolux 100 л с дистанционным управлением сантехника Jacob Delafon, Grohe тёплые полы в ванной стильная кухня IKEA с техникой Bosch, Atlant, Thermex
Тепло и уют круглый год
энергоэффективное утепление минеральной ватой Paroc (150 мм) премиальные конвекторы Nobo (Норвегия) с возможностью удалённого управления камин Nordflam (Польша) с мощным дымоходом Дом отлично держит тепло даже в сильные морозы
Дополнительные плюсы
вся мебель IKEA, покупалась новой специально для дома участок с бытовкой и готовым ландшафтным планом надёжный забор из профнастила и распашные ворота возможность подключения оптоволоконного интернета один собственник, полный порядок с документами спокойные, приятные соседи
Дом, в который можно заехать и жить сразу. Без компромиссов. Без лишних вложений.