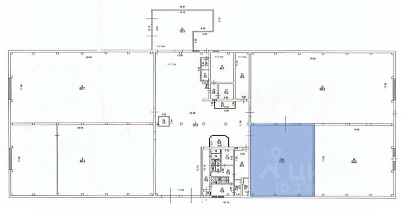
Предлагается в аренду производственно-складское помещение общей площадью 277,2 кв.м.
Технические характеристики:
• Высота потолка:
- до перекрытия 7,6 метров
- до ригеля 5,2 метра
• Нагрузка на пол 3 т/кв.м
• Электрическая мощность 1 кВт/кв.м
• Водоснабжение возможно подвести из МОП
• Канализация возможно подвести из МОП
Также на территории производственно-складского комплекса есть возможность аренды офисных помещений.
Арендная ставка: 1 350 руб. за 1 кв.м + OPEX (120 руб. за 1 кв.м).. ID помещения 150384



