Если цена в объявлении изменится, мы сразу сообщим вам об этом на электронную почту.
Нажимая «Подписаться», вы соглашаетесь с правилами.
продам 3-к, Усачева, 29 корп. 754 900 000 ₽
11 фев
Дата публикации объявления
Обн. 12 мая
Дата обновления объявления
4
Количество просмотров (+ просмотры за сегодня)
801 460 ₽/м²
Чистая продажа
Термин "Чистая продажа" означает, что в квартире никто не прописан или
есть куда выписаться и вывезти вещи. Это лучший вариант для покупателя.
Вероятность срыва сделки минимальна.
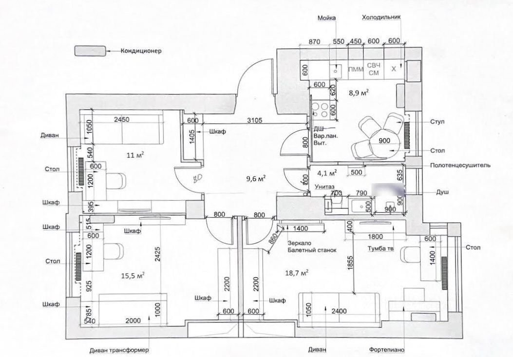
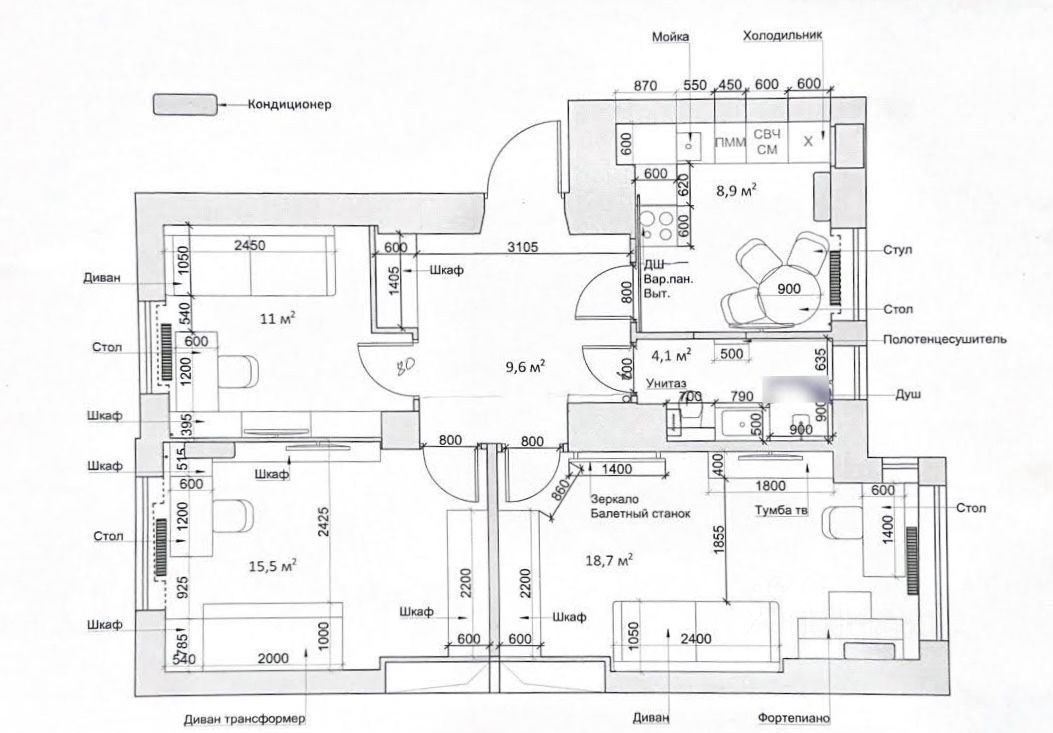
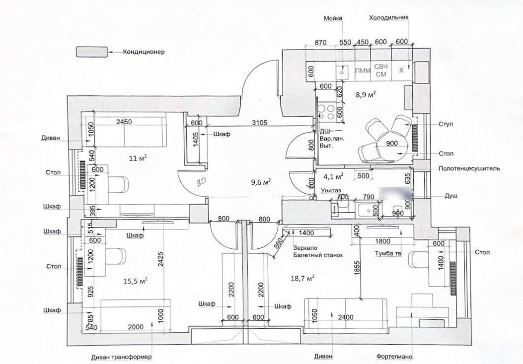
О ДОМЕ: кирпичный дом 1928 года постройки после капремонта в престижном районе Хамовники. О КВАРТИРЕ: светлая и теплая квартира после качественного ремонта с заменой окон и радиаторов. За счет высоких потолков в квартире много воздуха и света. Функциональной планировкой предусмотрено: три изолированные комнаты ( 18,7, 15,5, 10,2 ), кухня, раздельный санузел с окном, просторная прихожая. Ухоженный подъезд, интеллигентные соседи. Въезд в огороженный двор с детской и спортивной площадками ограничен шлагбаумом, есть мета для парковки автомобилей. Все, что необходимо для комфортной жизни находится в шаговой доступности-В пешей доступности лучшие школы страны (1535, 57, Пироговская гимназия, Золотое сечение). В 3 минутах парки Усадьба Трубецких и сквер Девичьего поля.
О ДОМЕ: кирпичный дом 1928 года постройки после капремонта в престижном районе Хамовники. О КВАРТИРЕ: светлая и теплая квартира после качественного ремонта с заменой окон и радиаторов. За счет высоких потолков в квартире много воздуха и света. Функциональной планировкой предусмотрено: три изолированные комнаты ( 18,7, 15,5, 10,2 ), кухня, раздельный санузел с окном, просторная прихожая. Ухоженный подъезд, интеллигентные соседи. Въезд в огороженный двор с детской и спортивной площадками ограничен шлагбаумом, есть мета для парковки автомобилей. Все, что необходимо для комфортной жизни находится в шаговой доступности-В пешей доступности лучшие школы страны (1535, 57, Пироговская гимназия, Золотое сечение). В 3 минутах парки Усадьба Трубецких и сквер Девичьего поля. До Лужников, где сейчас представлены все виды спортивных тренировок, не более 5 минут на машине. Усачевский рынок, множество кафе, ресторанов и объектов инфраструктуры. До станции метро Спортивная 3 минуты пешком. ДОКУМЕНТЫ: свободная продажа, один собственник, без обременений, полная сумма в договоре.