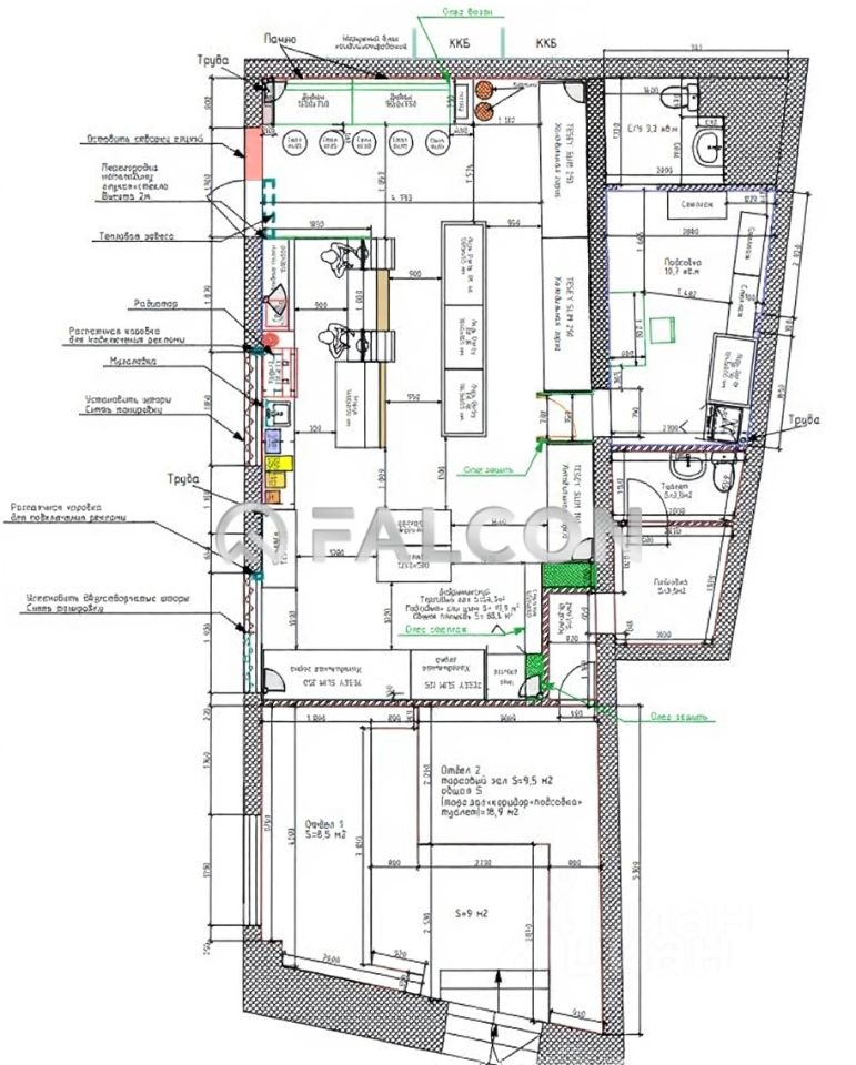
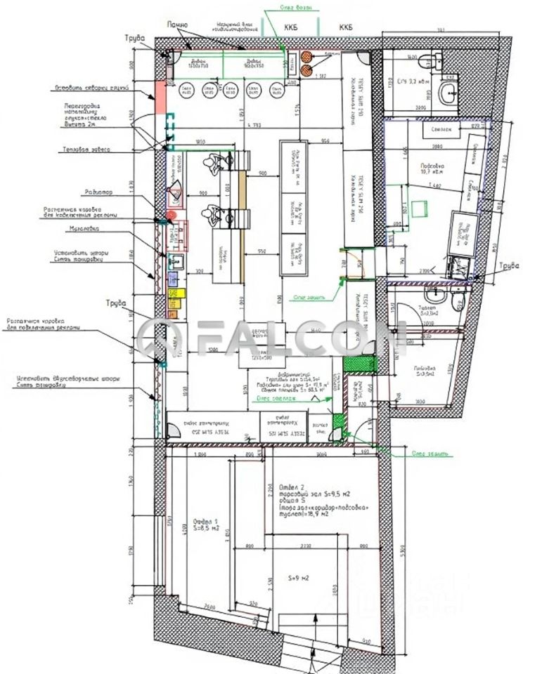
Сдается торговое помещение общей площадью 102,8 м. кв. на 1-м этаже жилого дома с витринами. Помещение угловое на 1-ой линии домов рядом с м. Чкаловская. Помещение оборудовано всеми центральными коммуникациями, электрическая мощность 60кВт. Два отдельных входа. За дополнительной информацией обращайтесь по телефону.
KA4585














