Если цена в объявлении изменится, мы сразу сообщим вам об этом на электронную почту.
Нажимая «Подписаться», вы соглашаетесь с правилами.
продам 3-к, Солнечная, 28 300 000 ₽
5 фев
Дата публикации объявления
Обн. 13 мар
Дата обновления объявления
129 485 ₽/м²
Чистая продажа
Термин "Чистая продажа" означает, что в квартире никто не прописан или
есть куда выписаться и вывезти вещи. Это лучший вариант для покупателя.
Вероятность срыва сделки минимальна.
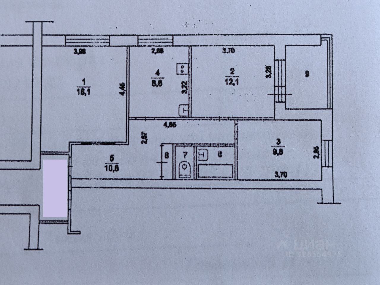
Продаётся трехкомнатная квартира, общей площадью 64,1 кв. м. без учета лоджии, расположенная на четвертом этаже девятиэтажного кирпичного дома, построенного в 1981 году. Дом находится в живописном районе Раменского городского округа, в посёлке Удельная, на улице Солнцева, д. 2.
Квартира имеет жилую площадь 40 кв. м., комнаты (18,1+12,1+9,8 кв.м.), кухня - 8,6 кв. м., раздельный с/у, большая лоджия 2,8 кв.м. Квартира требует ремонта!
Для семей с детьми особенно важно будет узнать, что в 10 минутах ходьбы от дома находятся школа, детский сад, Удельнинская гимназия им. Горячева, а также поликлиника, детские и спортивная площадки.
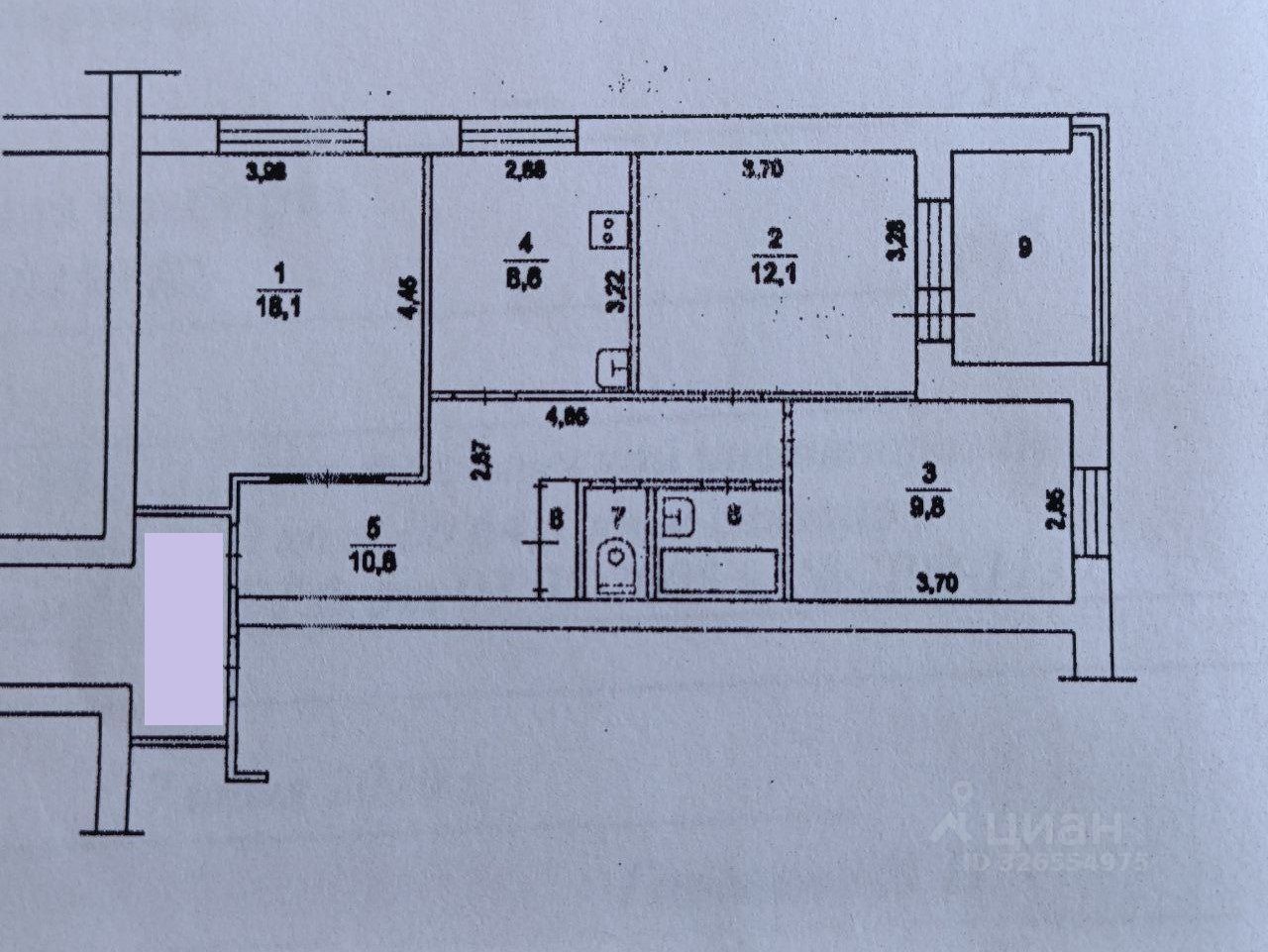
Продаётся трехкомнатная квартира, общей площадью 64,1 кв. м. без учета лоджии, расположенная на четвертом этаже девятиэтажного кирпичного дома, построенного в 1981 году. Дом находится в живописном районе Раменского городского округа, в посёлке Удельная, на улице Солнцева, д. 2.
Квартира имеет жилую площадь 40 кв. м., комнаты (18,1+12,1+9,8 кв.м.), кухня - 8,6 кв. м., раздельный с/у, большая лоджия 2,8 кв.м. Квартира требует ремонта!
Для семей с детьми особенно важно будет узнать, что в 10 минутах ходьбы от дома находятся школа, детский сад, Удельнинская гимназия им. Горячева, а также поликлиника, детские и спортивная площадки. Для удобства жителей предусмотрена парковка во дворе, а также в шаговой доступности располагается торговые центры, различные сетевые магазины, где можно приобрести всё необходимое.
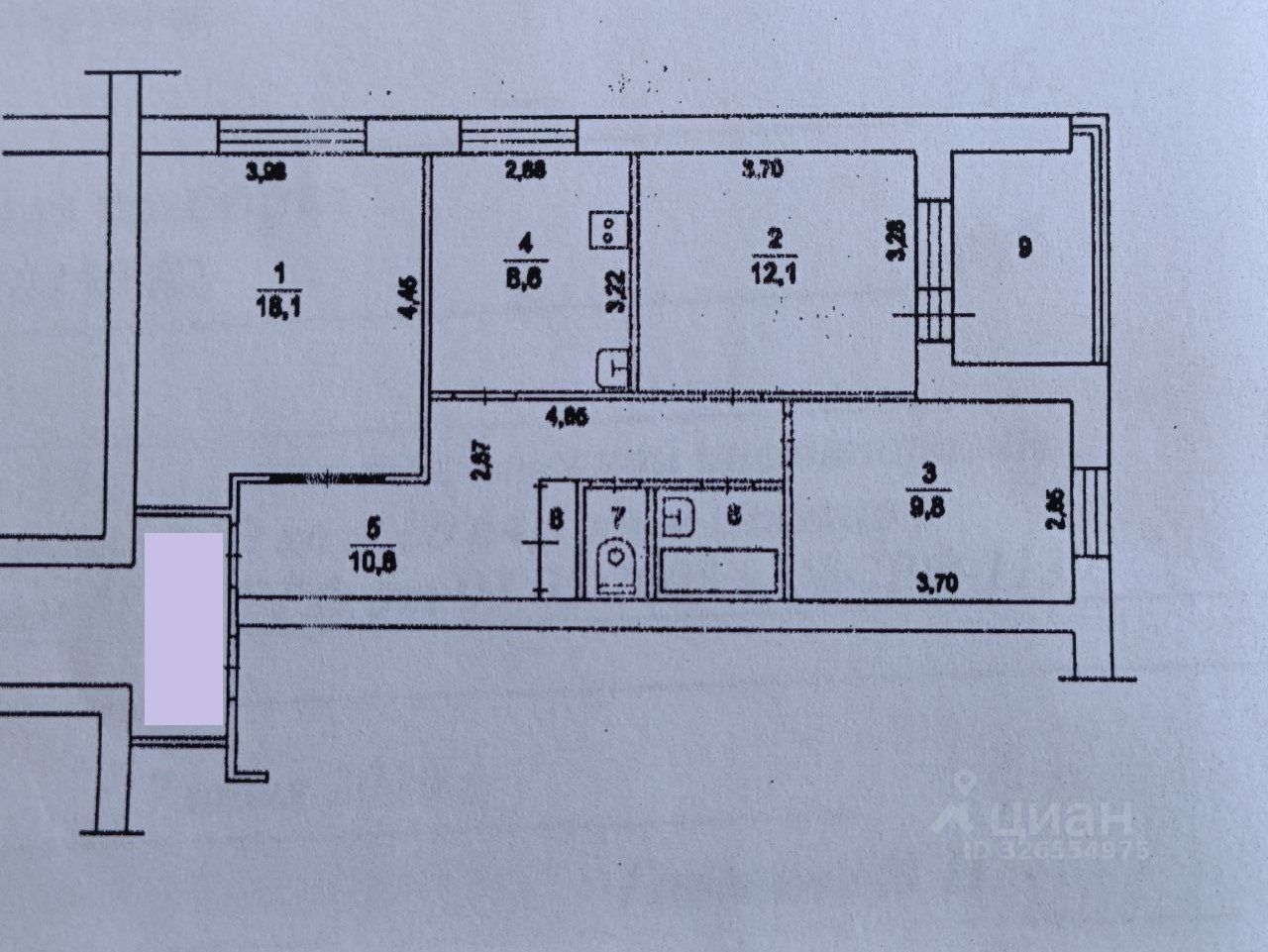
Этот дом идеально подойдёт тем, кто ценит спокойствие и уют, а также желает иметь все необходимые объекты инфраструктуры в непосредственной близости от своего жилья. Если вы ищете место, где можно создать свой уголок комфорта и уюта, то эта квартира станет отличным выбором. До железнодорожной станции Удельная 5 минут пешком!