Продажа ОФИСА в бизнес парке Останкино — актив с потенциалом роста и возможностью трансформации в ГАБ
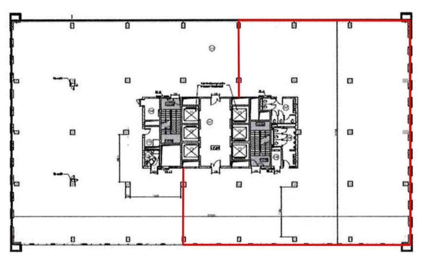
Половина 5 этажа в корпусе 1 Ostankino Business Park со следующими характеристиками: - 867,5м², Точная площадь будет уточнена после ввода объекта в эксплуатацию. - открытая планировка, - потолки 3,7 м, - панорамное остекление с открывающимися окнами, - центральное кондиционирование и приточно-вытяжная вентиляция, - своя мокрая точка, - автоматическая система пожаротушения и сигнализации.
Останкино бизнес парк — это шесть зданий класса А, каждое имеет 12 этажей, спроектированы как современный деловой квартал.
Продажа ОФИСА в бизнес парке Останкино — актив с потенциалом роста и возможностью трансформации в ГАБ
Половина 5 этажа в корпусе 1 Ostankino Business Park со следующими характеристиками: - 867,5м², Точная площадь будет уточнена после ввода объекта в эксплуатацию. - открытая планировка, - потолки 3,7 м, - панорамное остекление с открывающимися окнами, - центральное кондиционирование и приточно-вытяжная вентиляция, - своя мокрая точка, - автоматическая система пожаротушения и сигнализации.
Останкино бизнес парк — это шесть зданий класса А, каждое имеет 12 этажей, спроектированы как современный деловой квартал. Здесь привычная деловая архитектура соединяется с уютной внутренней средой и продуманной инфраструктурой: - надежная управляющая компания, - круглосуточная охрана и система доступа, - наземный паркинг на 500 мест, - места для отдыха, рестораны, кафе, супермаркеты.
Транспортная доступность: 3 минуты пешком до метро Бутырская и станции МЦД Останкино. Удобный выезд на ТТК, Дмитровское шоссе и проспект Мира.
Выгоды для покупателя/инвестора: Покупка половины этажа даёт контроль над пространством и усиливает статус компании. Можно разместить собственный бизнес на своих условиях. Локация показывает рост арендных ставок, что делает актив ликвидным. Есть возможность превратить объект в готовый арендный бизнес со стабильным доходом + капитализацией.
Лучший способ понять потенциал этого пространства — увидеть его лично. Звоните! Подберём время, которое вам будет удобно.