Если цена в объявлении изменится, мы сразу сообщим вам об этом на электронную почту.
Нажимая «Подписаться», вы соглашаетесь с правилами.
продам 1-к, Разведчика Дейча11 600 000 ₽
29 янв
Дата публикации объявления
Обн. сегодня
Дата обновления объявления
355 828 ₽/м²
Чистая продажа
Термин "Чистая продажа" означает, что в квартире никто не прописан или
есть куда выписаться и вывезти вещи. Это лучший вариант для покупателя.
Вероятность срыва сделки минимальна.
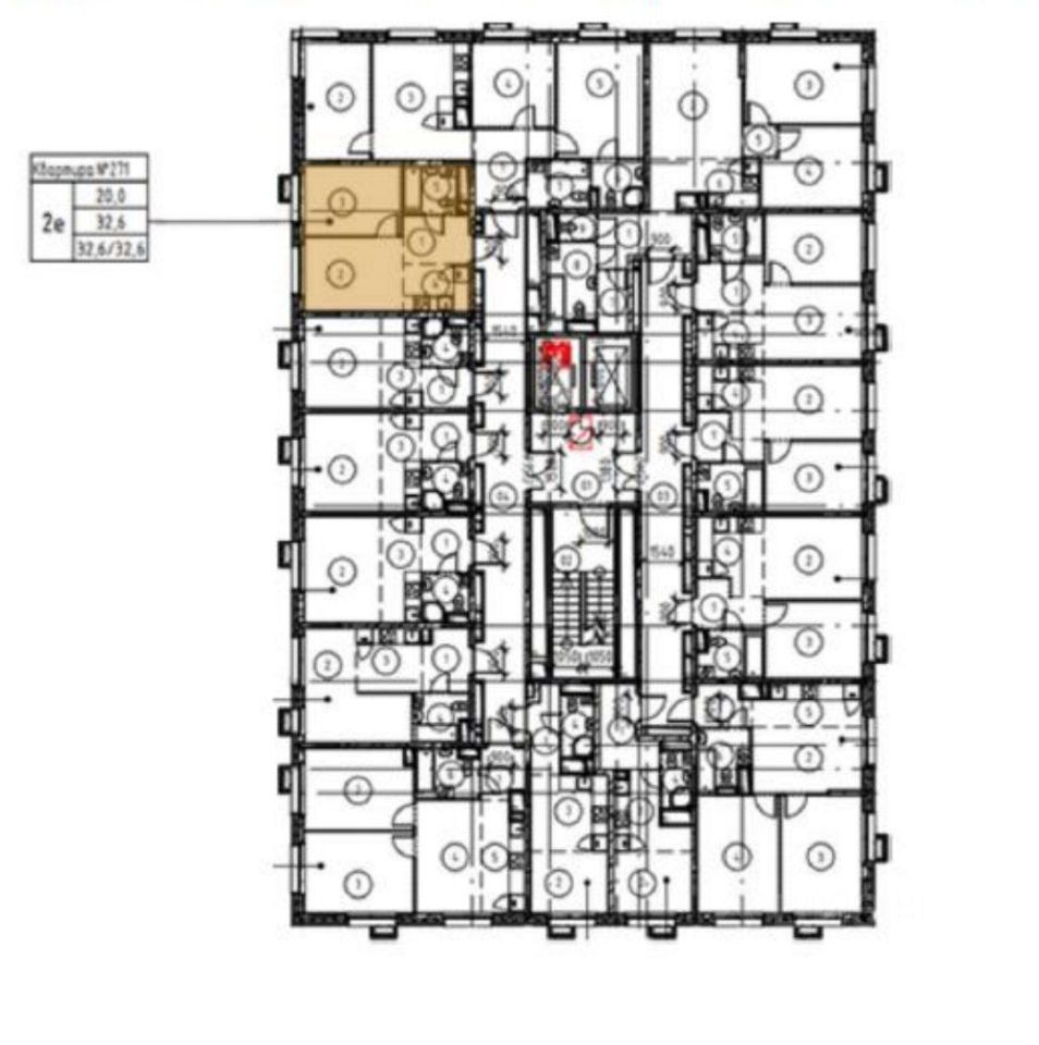
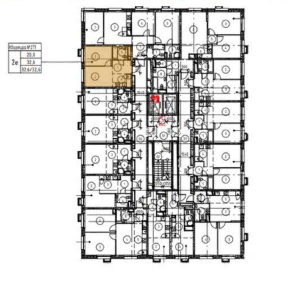
Квартира
Общая площадь32,6 м2
Жилая площадь20 м2
Кухня10 м2
Тип собственностидругое (укажите в описании)
Дом
Срок сдачи2 кв. 2026 г.
Этаж4 из 16
Однокомнатная квартира в ЖК Foreville. Уникальный шанс купить по цене 2025 года!
Один взрослый собственник, без обременений, материнский капитал не использовался, нет ипотеки, все документы готовы к продаже, полная стоимость в договоре.
Продается квартира по договору уступки права требования (ДДУ) в жилом комплексе Foreville. Сдача дома — 2 квартал 2026 года.
Преимущества квартиры и ЖК Foreville:
Срок сдачи: II квартал 2026 (скоро!). Чистая продажа, без обременений. Все расчеты безопасно. Современная планировка с возможностью выбора отделки. Развитая инфраструктура комплекса: двор без машин, детские и спортивные площадки, подземный паркинг.
Однокомнатная квартира в ЖК Foreville. Уникальный шанс купить по цене 2025 года!
Один взрослый собственник, без обременений, материнский капитал не использовался, нет ипотеки, все документы готовы к продаже, полная стоимость в договоре.
Продается квартира по договору уступки права требования (ДДУ) в жилом комплексе Foreville. Сдача дома — 2 квартал 2026 года.
Преимущества квартиры и ЖК Foreville:
Срок сдачи: II квартал 2026 (скоро!). Чистая продажа, без обременений. Все расчеты безопасно. Современная планировка с возможностью выбора отделки. Развитая инфраструктура комплекса: двор без машин, детские и спортивные площадки, подземный паркинг. Выгодная локация с хорошей транспортной доступностью и социальной инфраструктурой.
Звоните прямо сейчас, пока это объявление не увидел кто-то другой!