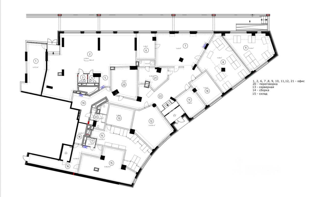
Продажа просторного помещения площадью 840 квадратных метров, которое может быть использовано под любой вид Вашего бизнеса или Ваших арендаторов.
Оптимальное решение для стабильного бизнеса или выгодных инвестиций.
Расположение: в ЗАО среди ключевых магистралей (Можайское, Рублевское, Кутузовское шоссе, МКАД), 1 этаж жилого комплекса, имеет потрясающие видовые характеристики в сторону Карамышевской набережной и Москва-Сити.
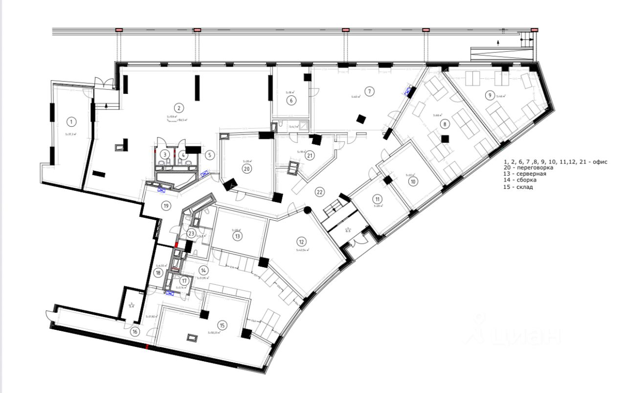
Преимущества: - отличная планировка, - большое количество окон, - 3 входные группы, - потолки 4 метра, - множество санузлов, - возможность спланировать любую планировку и сделать чистовую отделку под свой вид бизнеса, -12 минут пешком метро Народного ополчения, в конце 2026г.
ЖК ''Утесов''
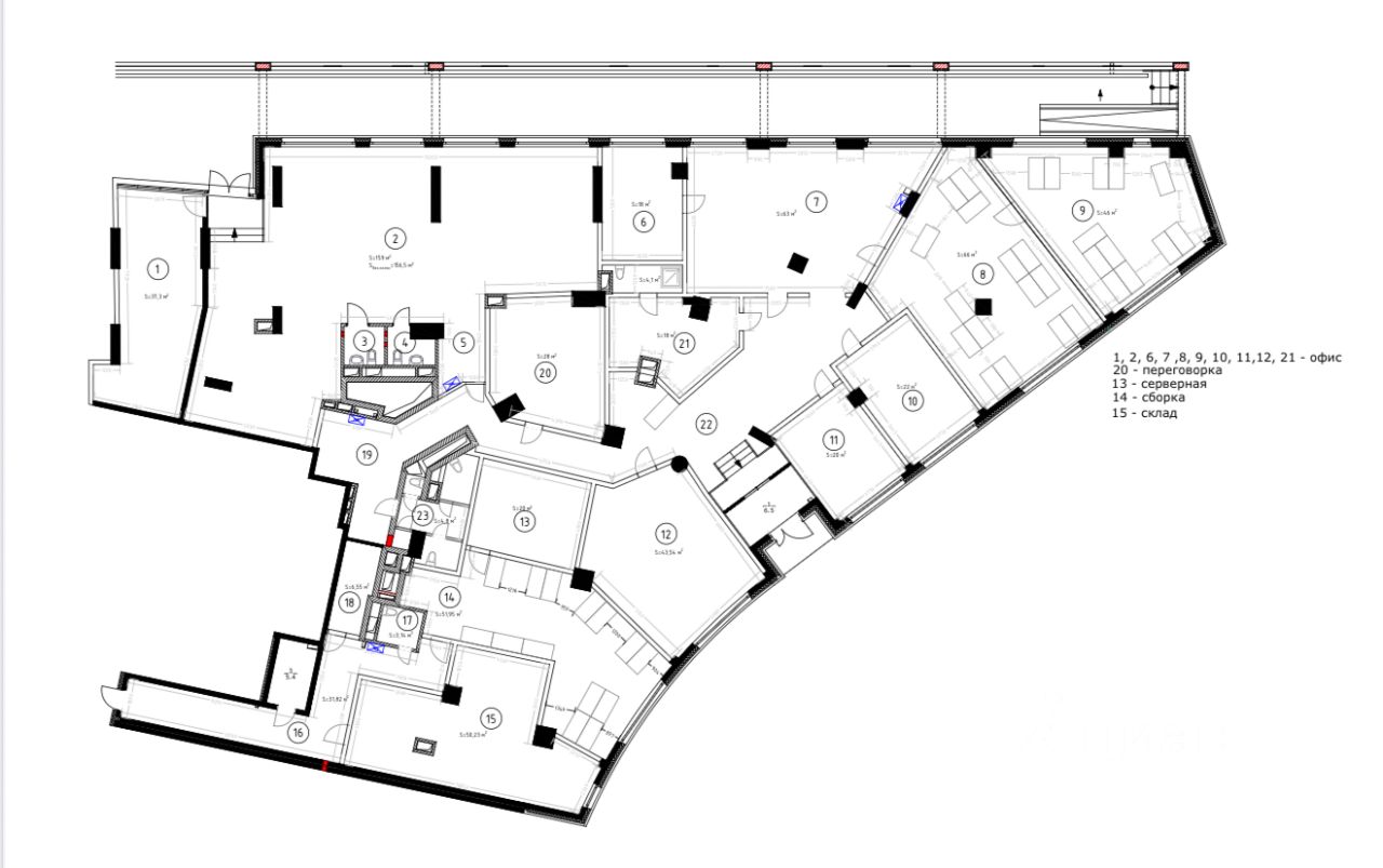
Продажа просторного помещения площадью 840 квадратных метров, которое может быть использовано под любой вид Вашего бизнеса или Ваших арендаторов.
Оптимальное решение для стабильного бизнеса или выгодных инвестиций.
Расположение: в ЗАО среди ключевых магистралей (Можайское, Рублевское, Кутузовское шоссе, МКАД), 1 этаж жилого комплекса, имеет потрясающие видовые характеристики в сторону Карамышевской набережной и Москва-Сити.
Преимущества: - отличная планировка, - большое количество окон, - 3 входные группы, - потолки 4 метра, - множество санузлов, - возможность спланировать любую планировку и сделать чистовую отделку под свой вид бизнеса, -12 минут пешком метро Народного ополчения, в конце 2026г. в шаговой доступности будет отрыта новая станция метро Рублево-Архангельской линии.
Коммуникации: - отопление централизованное, - водоснабжение централизованное, - мощность 40 кВт., возможно увеличить мощность до 80 кВт.
Безопасность: огороженная территория, пропускная система, круглосуточная охрана и видеонаблюдение обеспечивают высокий уровень безопасности.
Парковочные места: бесплатная краткосрочная наземная парковка, подземный паркинг (аренда или покупка мест в многоуровневом подземном паркинге), городская парковка.
Это предложение выглядит привлекательным для тех, кто ищет просторное помещение для бизнеса, особенно если речь идет о медицинском центре или офисе с высокими требованиями к инфраструктуре и комфорту.