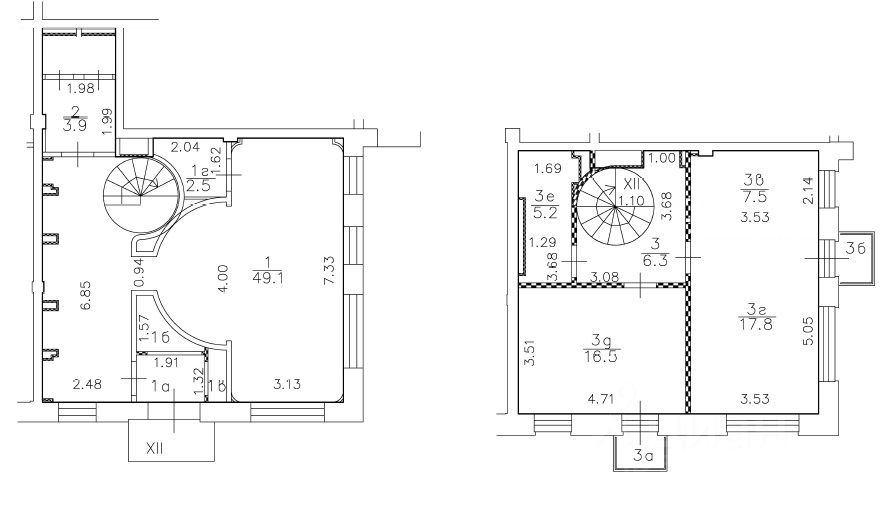
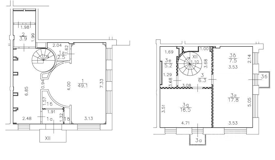
Продаются двухуровневые апартаменты с готовым дизайнерским ремонтом и мебелью в новом ЖК Studio 12. Первый и второй этаж, с собственным отдельным входом с улицы.
Дизайнерский ремонт с мебелью, огромные панорамные окна. Потолки 4 метра.
Первый этаж - большая общая зона с кухней, большим круглым столом и диваном. Санузел.
Второй этаж - две комнаты и большой санузел с душевой кабиной.
Приточно-вытяжная система, кондиционирование, климат контроль во всех комнатах.
Помещение не использовалось после ремонта.
Идеально подойдет под креативный мини офис, винный или гастрономический клуб.
Фото настоящие.





































