сдам торговые площади, Вернадского проспект, 41 ст3475 000 ₽ в месяц
24 янв
Дата публикации объявления
Обн. 2 мая
Дата обновления объявления
4481 ₽/м² в месяц
Параметры
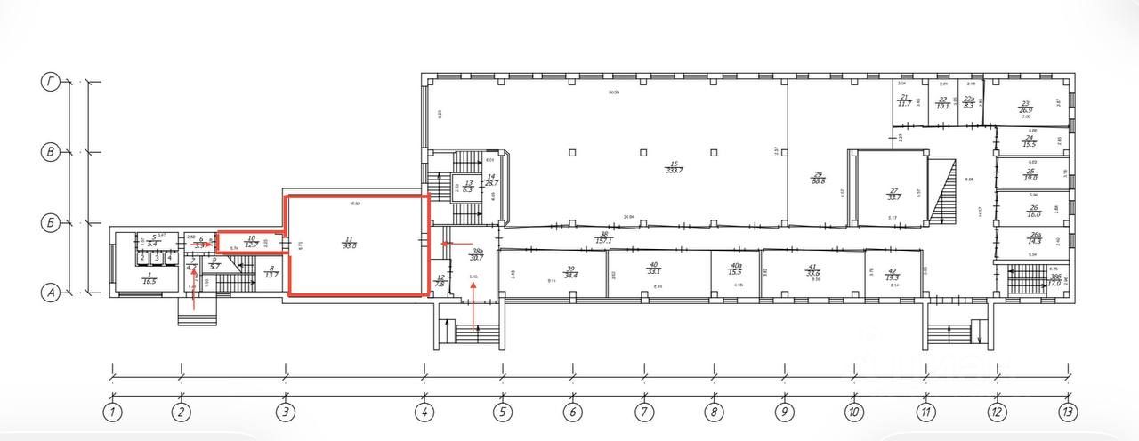
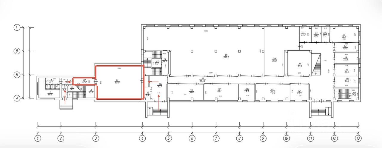
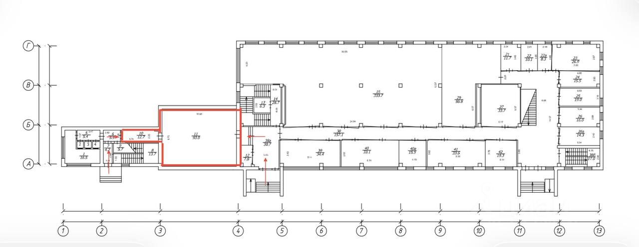
Общая площадь106 м2
Этаж1
Год постройки1989
Предлагаемая площадь: 106м2 Первый этаж Высота потолка более 3м Возможность торговать до 23:00 Хороший трафик Жилой сектор Бесплатная парковка Предоставляем рекламную вывеску на фасаде здания Доступ к помещению круглосуточный Детских образовательных учреждений поблизости нет Электричество более 20кВт, трехфазный ввод ТОРГ Электричество и вода по счетчику, остальные расходы на обслуживание ТЦ входят в стоимость арендной платы. -У главного входа есть бесплатная парковка для посетителей
Арендодатель на УСН+7%
В отличии от крупных торговых центров, ТЦ Премьер работает по другим принципам посещаемости, активная посещаемость в основном по будням.
-Удобный заезд с проспекта Вернадского, ул.
Предлагаемая площадь: 106м2 Первый этаж Высота потолка более 3м Возможность торговать до 23:00 Хороший трафик Жилой сектор Бесплатная парковка Предоставляем рекламную вывеску на фасаде здания Доступ к помещению круглосуточный Детских образовательных учреждений поблизости нет Электричество более 20кВт, трехфазный ввод ТОРГ Электричество и вода по счетчику, остальные расходы на обслуживание ТЦ входят в стоимость арендной платы. -У главного входа есть бесплатная парковка для посетителей
Арендодатель на УСН+7%
В отличии от крупных торговых центров, ТЦ Премьер работает по другим принципам посещаемости, активная посещаемость в основном по будням.
-Удобный заезд с проспекта Вернадского, ул. Удальцова, Ленинского проспекта, до метро 240 м
-Рядом проходят улицы: Лобачевского, Михаила Певцова, Семёнова-Тян-Шанского и тд
В ТЦ имеются Сбербанк, МТС, Билайн, Фикс Прайс, Рублевский, Мясницкий Ряд, Ломбард Меридиан, ФиксПрайс, Копирка, Диана-химчистка, Белка-белорусская косметика, Будь здоров, Мосцветторг, кафе Лело, Хинкальная, Смешные цены и множество других сетевых магазинов которые способствуют бесперебойной посещаемости. Это хороший развитый район ЗАО с устоявшейся инфраструктурой.