сдам офисное помещение, Лихачева проспект, 514 393 333 ₽ в месяц
23 янв
Дата публикации объявления
Обн. вчера
Дата обновления объявления
2585 ₽/м² в месяц
Параметры
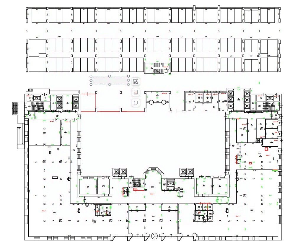
Общая площадь5567 м2
Этаж2
Год постройки1958
Предлагаем в аренду офис на 464 - 1237 сотрудников в бизнес-парке ''Технопарк ЗИЛ корпус Б''. Разработаем планировку под вашу команду бесплатно с неограниченными правками.
Площадь: 5 567 м². Состояние: под отделку. Арендная плата: 14 393 333 руб./мес. Ставка: 31 026 руб./м²/год (включая эксплуатацию). Налогообложение: включая НДС. Коммунальные расходы: оплачиваются по факту. Тип аренды: Прямая аренда. Этаж: 1, 2 из 6.
Технопарк ЗИЛ класса A расположен рядом с метро Тульская и станцией ЗИЛ.
Предлагаем в аренду офис на 464 - 1237 сотрудников в бизнес-парке ''Технопарк ЗИЛ корпус Б''. Разработаем планировку под вашу команду бесплатно с неограниченными правками.
Площадь: 5 567 м². Состояние: под отделку. Арендная плата: 14 393 333 руб./мес. Ставка: 31 026 руб./м²/год (включая эксплуатацию). Налогообложение: включая НДС. Коммунальные расходы: оплачиваются по факту. Тип аренды: Прямая аренда. Этаж: 1, 2 из 6.