Предлагается в продажу офис площадью 141,4 м² - готовый арендный бизнес, в элитном комплексе апартаментов в центре Москвы
Преимущества лота:
- Open space пространство
- Просторный кабинет руководителя
- Панорамное остекление в пол
- Премиум ремонт
- Покрытие пола-натуральная доска
- Наличие мокрых зон: душевая, кухня и 2 санузла
Экономика объекта:
- МАП - 770 000 ?/мес.
- Налог ИП - 45 200 ?/мес.
- Налог на недвижимость - 8 845 ?/мес.
- Эксплуатация - 25 000 ?/мес.
- Чистый операционный доход - 691 000 ?/мес.
Предлагается в продажу офис площадью 141,4 м² - готовый арендный бизнес, в элитном комплексе апартаментов в центре Москвы
Преимущества лота:
- Open space пространство
- Просторный кабинет руководителя
- Панорамное остекление в пол
- Премиум ремонт
- Покрытие пола-натуральная доска
- Наличие мокрых зон: душевая, кухня и 2 санузла
Экономика объекта:
- МАП - 770 000 ?/мес.
- Налог ИП - 45 200 ?/мес.
- Налог на недвижимость - 8 845 ?/мес.
- Эксплуатация - 25 000 ?/мес.
- Чистый операционный доход - 691 000 ?/мес.
- Окупаемость 10,5 лет при ежегодной индексации 5%
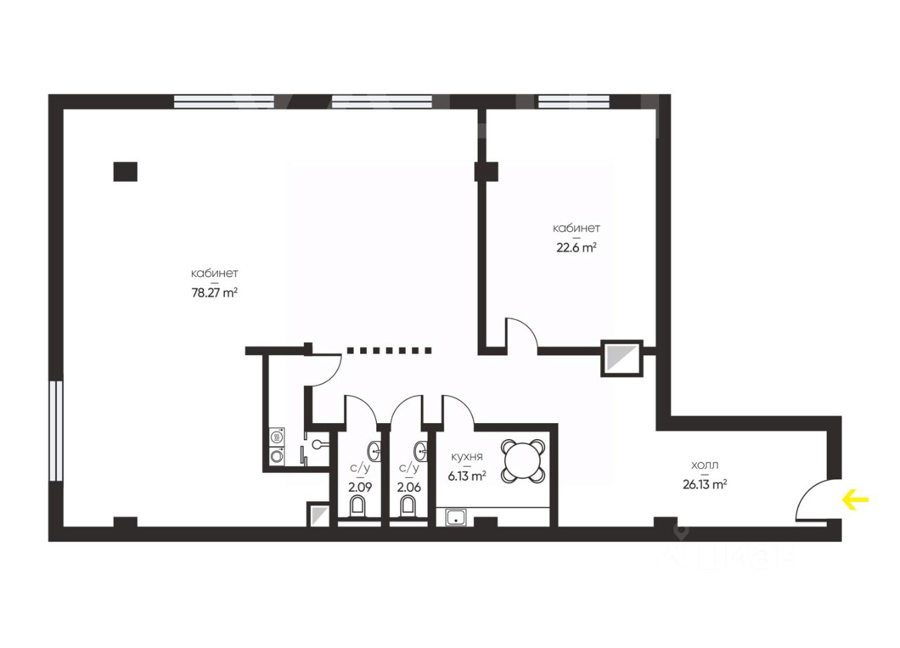
Функциональная планировка:
- Open Space пространство - 78,27 м²
- Кабинет руководителя - 22,6 м²
- Кухня - 6,13 м²
- 2 с/у - 2,06 м² и 2,09 м²
- Душевая и постирочная - 1,9 м²
- Холл - 26,13 м²
Инфраструктура комплекса:
- На крыше комплекса разбиты тенистые сады с зонами отдыха, живыми растениями и шезлонгами. Доступны всем арендаторам и собственникам помещений в здании, в теплое время года
- Конференц-зал
- Круглосуточный консьерж-сервис
- Система контроля доступа, охрана и видеонаблюдение
- Пожарная сигнализация и система пожаротушения
- Центральная система кондиционирования и отопления