сдам офисное помещение, Андропова проспект, 11 корп. 2 ст27 241 208 ₽ в месяц
23 янв
Дата публикации объявления
Обн. 30 апр
Дата обновления объявления
2541 ₽/м² в месяц
Параметры
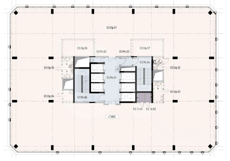
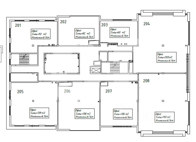
Общая площадь2849 м2
Этаж3
Год постройки2023
Предлагаем в аренду офис на 238 - 633 сотрудников в бизнес-парке ''деловой квартал ЮПорт''. Разработаем планировку под вашу команду бесплатно с неограниченными правками.
Площадь: 2 849 м². Состояние: под отделку. Арендная плата: 7 241 208 руб./мес. Ставка: 30 500 руб./м²/год (включая эксплуатацию). Налогообложение: включая НДС. Коммунальные расходы: оплачиваются по факту. Тип аренды: Прямая аренда. Этаж: 1, 2, 3 из 4.
Бизнес-центр ЮПорт класса А расположен рядом с метро Технопарк.
Предлагаем в аренду офис на 238 - 633 сотрудников в бизнес-парке ''деловой квартал ЮПорт''. Разработаем планировку под вашу команду бесплатно с неограниченными правками.
Площадь: 2 849 м². Состояние: под отделку. Арендная плата: 7 241 208 руб./мес. Ставка: 30 500 руб./м²/год (включая эксплуатацию). Налогообложение: включая НДС. Коммунальные расходы: оплачиваются по факту. Тип аренды: Прямая аренда. Этаж: 1, 2, 3 из 4.