Если цена в объявлении изменится, мы сразу сообщим вам об этом на электронную почту.
Нажимая «Подписаться», вы соглашаетесь с правилами.
продам 5-к, Усачева, 11и490 000 000 ₽
22 янв
Дата публикации объявления
Обн. 25 апр
Дата обновления объявления
2
Количество просмотров (+ просмотры за сегодня)
2 051 926 ₽/м²
Чистая продажа
Термин "Чистая продажа" означает, что в квартире никто не прописан или
есть куда выписаться и вывезти вещи. Это лучший вариант для покупателя.
Вероятность срыва сделки минимальна.
К продаже предлагается ДВУХУРОВНЕВЫЙ ПЕНТХАУС в самом желаемом корпусе ЖК ''САДОВЫЕ КВАРТАЛЫ'' с возможностью сделать 3-4 СПАЛЬНИ.
ПАНОРАМНЫЕ ОКНА из массива дуба по всему периметру и высокие потолки 3,9 м на первом уровне и 3,30 м на втором уровне обеспечивают отличную инсоляцию в течение всего дня.
Из окон открываются ПРЕКРАСНЫЕ ВИДЫ на тихий благоустроенный двор жилого комплекса, Новодевичий монастырь, Москва-Сити.
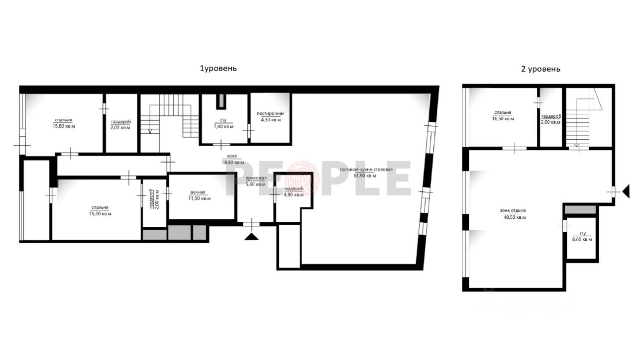
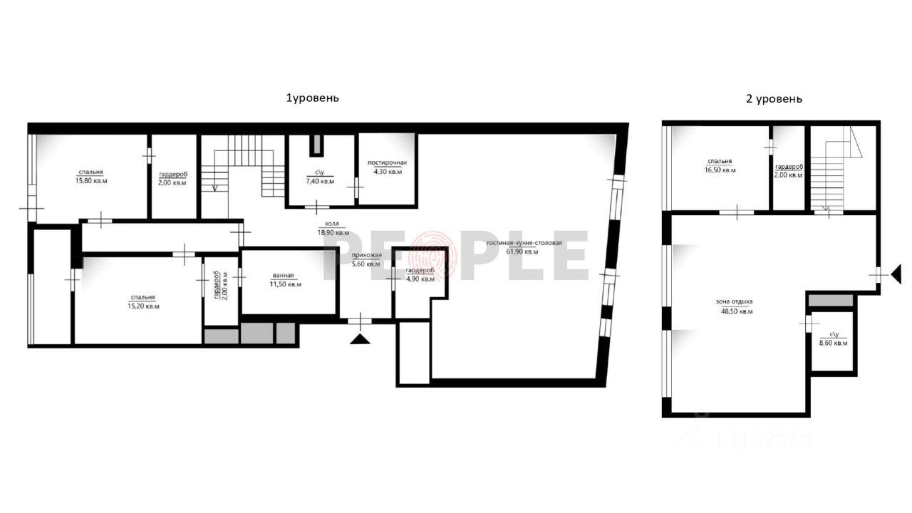
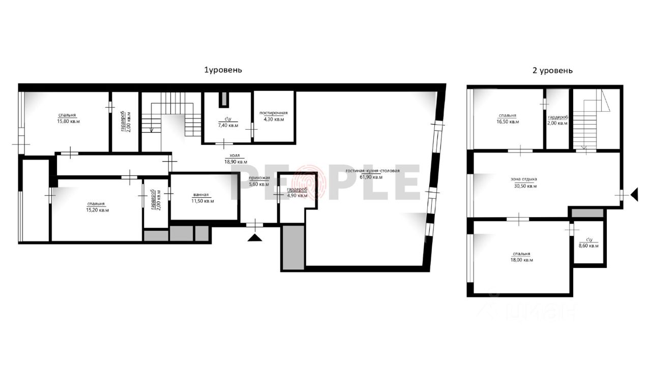
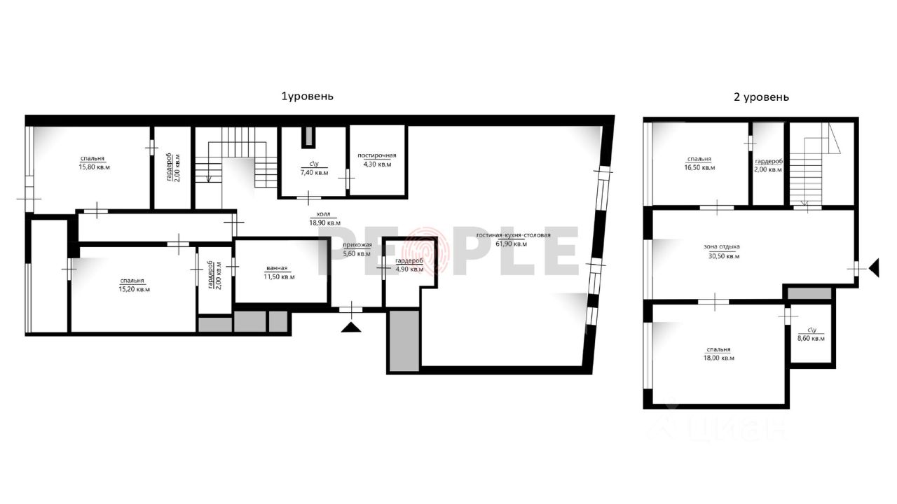
СВОБОДНАЯ ПЛАНИРОВКА (ВАРИАНТ ПЛАНИРОВКИ):
ПЕРВЫЙ уровень: - кухня-столовая с обеденной зоной более 60 кв.м.
ЭКСКЛЮЗИВ АГЕНТСТВА PEOPLE
К продаже предлагается ДВУХУРОВНЕВЫЙ ПЕНТХАУС в самом желаемом корпусе ЖК ''САДОВЫЕ КВАРТАЛЫ'' с возможностью сделать 3-4 СПАЛЬНИ.
ПАНОРАМНЫЕ ОКНА из массива дуба по всему периметру и высокие потолки 3,9 м на первом уровне и 3,30 м на втором уровне обеспечивают отличную инсоляцию в течение всего дня.
Из окон открываются ПРЕКРАСНЫЕ ВИДЫ на тихий благоустроенный двор жилого комплекса, Новодевичий монастырь, Москва-Сити.
СВОБОДНАЯ ПЛАНИРОВКА (ВАРИАНТ ПЛАНИРОВКИ):
ПЕРВЫЙ уровень: - кухня-столовая с обеденной зоной более 60 кв.м. - МАСТЕР-СПАЛЬНЯ со своим с/у, гардеробной комнатой и выходом на балкон - изолированная спальня - 3 санузла - постирочная - гардеробная
ВТОРОЙ уровень: - большая зона отдыха/гостиная - кладовая
УСЛОВИЯ СДЕЛКИ: Прямая продажа Быстрый выход на сделку Один взрослый собственник
О КОМПЛЕКСЕ: ЖК ''Садовые кварталы'' - элитный комплекс клубных домов в самом центре Хамовников, всего в 3 км от Кремля. - Лучший по экологии и транспортной доступности район ЦАО. - Территория комплекса 11 гектаров, из которых 6 гектаров благоустроенный парк. - Прогулочные зоны и собственный пруд. - Центральная площадь между пятью жилыми кварталами. - Элитная архитектура с использованием натуральных материалов. - Круглосуточная охрана и видеонаблюдение. - Консьерж-сервис.
ИНФРАСТРУКТУРА И УДОБСТВА: - Детские сады, спортивные и детские площадки в каждом квартале. - Двухуровневая торгово-развлекательная галерея вокруг пруда. - Рестораны, кафе, бутики и фитнес-клубы. - Подземный паркинг и гостевые машиноместа. - Просторные прогулочные зоны и ландшафтный парк. - Современные образовательные учреждения и медицинские центры в шаговой доступности.
РАСПОЛОЖЕНИЕ И ТРАНСПОРТНАЯ ДОСТУПНОСТЬ: - ЦАО, Хамовники 3 км от Кремля. - Ближайшие станции метро: Фрунзенская, парк Культуры. - Удобный выезд на Садовое кольцо и центральные магистрали Москвы. - Пешая доступность до парков, ресторанов, музеев и элитных школ.