Если цена в объявлении изменится, мы сразу сообщим вам об этом на электронную почту.
Нажимая «Подписаться», вы соглашаетесь с правилами.
продам коммерческую землю, Моносеево20 250 000 ₽
21 янв
Дата публикации объявления
Обн. 3 фев
Дата обновления объявления
405 000 ₽/сотку
Параметры
Площадь участка50 соток
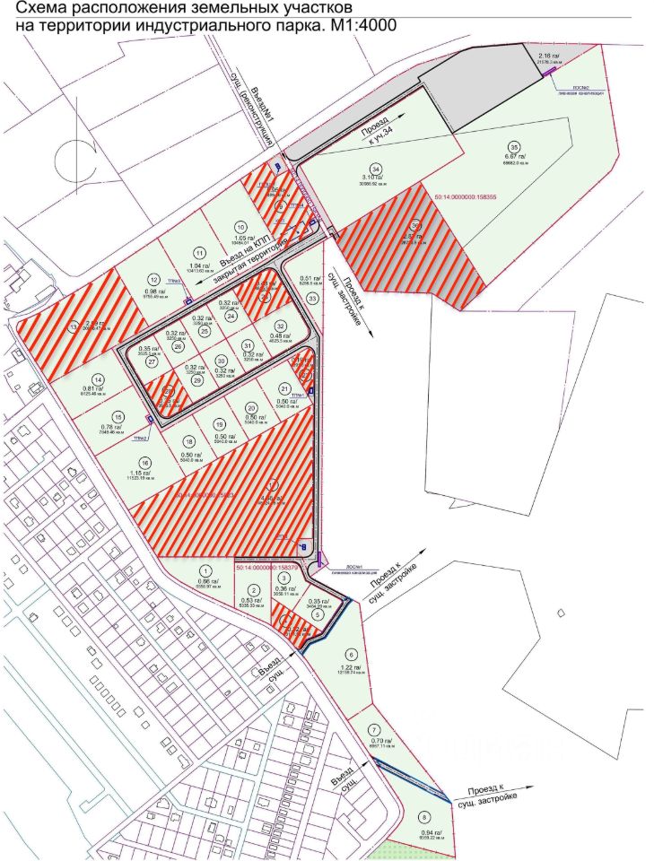
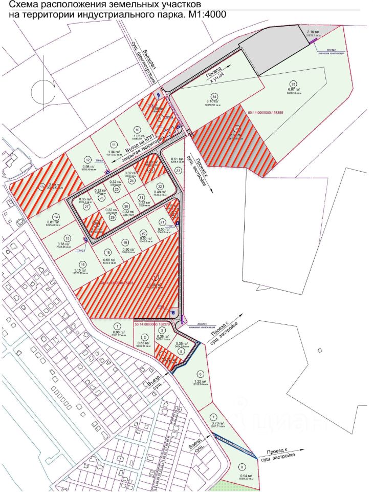
Продается земельный участок в Индустриальном парке Моносеево, площадью 0,5 Га, в 18 км от МКАД Щелковского шоссе.
Земельный участок многофункционального назначения. Виды разрешенного использования: производственная деятельность, склады, придорожный сервис, магазины и прочее.
Участок сухой, ровный и правильной, прямоугольной формы. Обременения отсутствуют.
Инженерные коммуникации внутри парка: газ, электричество.
В Индустриальном парке планируются: дороги, огороженная и охраняемая территория, КПП.
В 100 метрах от парка Моносеево находится остановка общественного транспорта с маршрутами до Москвы (в т.ч. до станции метро Щелковская).
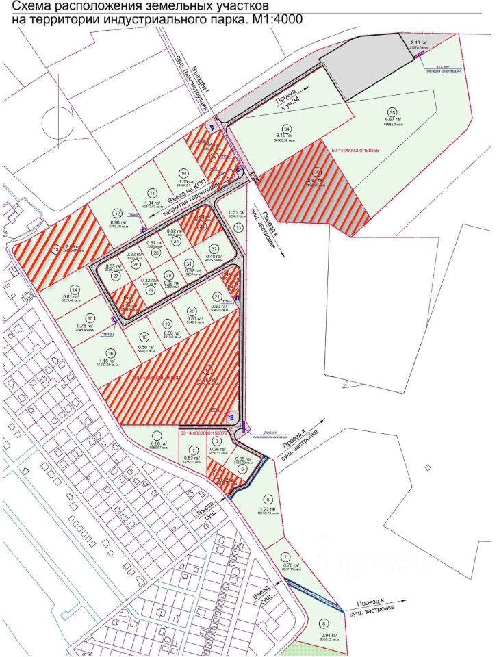
Продается земельный участок в Индустриальном парке Моносеево, площадью 0,5 Га, в 18 км от МКАД Щелковского шоссе.
Земельный участок многофункционального назначения. Виды разрешенного использования: производственная деятельность, склады, придорожный сервис, магазины и прочее.
Участок сухой, ровный и правильной, прямоугольной формы. Обременения отсутствуют.
Инженерные коммуникации внутри парка: газ, электричество.
В Индустриальном парке планируются: дороги, огороженная и охраняемая территория, КПП.
В 100 метрах от парка Моносеево находится остановка общественного транспорта с маршрутами до Москвы (в т.ч. до станции метро Щелковская). В 3 км от парка Моносеево - ж/д станция Осеевская с маршрутами до центра Москвы (Ярославский вокзал).
Оказываем помощь в проектировании зданий и получении разрешения на строительство. Возможна покупка от 0,3 Га до 10 Га.
Актуальный план свободных земельных участков направляется по запросу. Подробнее звоните!