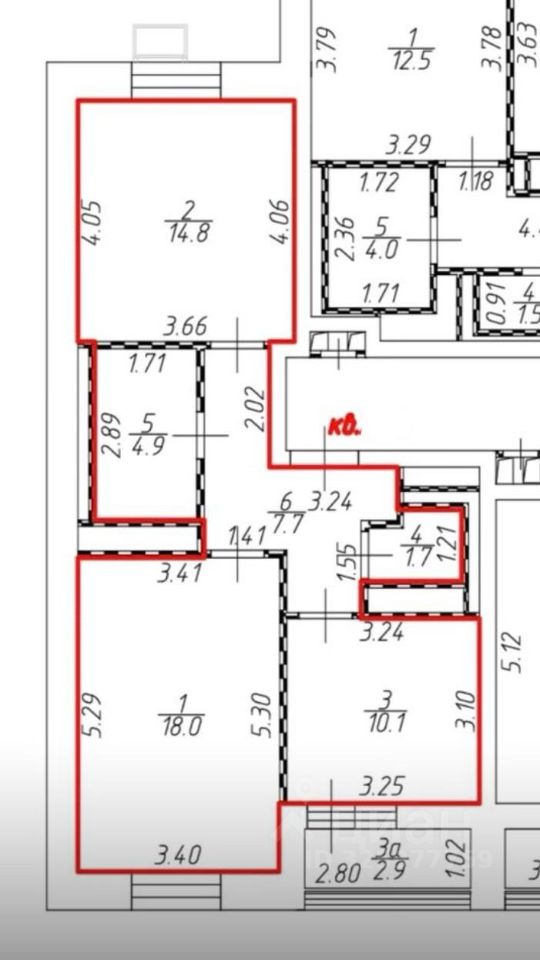
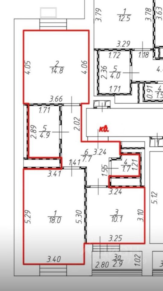
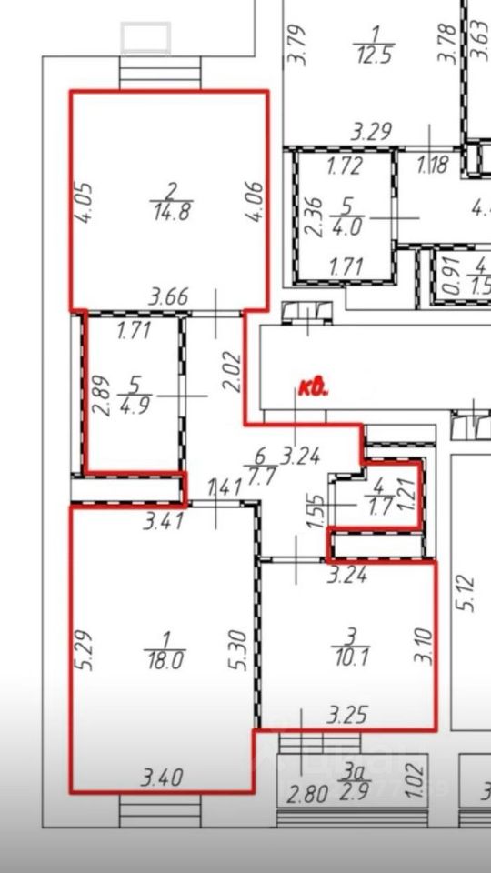
Современная двухкомнатная квартира в новом монолитном доме. Квартира распашонка! Функциональная планировка, максимум полезной площади. Кухня с выходом на лоджию с панорамным остеклением . Гостевой и основной санузел с ванной. Просторный коридор Кухня и комната квартиры выходят во двор, что обеспечивает спокойствие и уют Ремонт Выполнен качественный ремонт от застройщика: Стены оклеены обоями под покраску. Можно легко изменить цвет на ваш вкус - В жилых комнатах, прихожей и коридоре полы выполнены из стойкого светлого ламината . Напольное покрытие уложено на звукоизоляционную подложку. В прихожей и коридоре уложена керамогранитная плитка. Плинтус с кабель-каналом. - Поверхность потолков выровнена и окрашена - Установлена противопожарная сигнализация .
Современная двухкомнатная квартира в новом монолитном доме. Квартира распашонка! Функциональная планировка, максимум полезной площади. Кухня с выходом на лоджию с панорамным остеклением . Гостевой и основной санузел с ванной. Просторный коридор Кухня и комната квартиры выходят во двор, что обеспечивает спокойствие и уют Ремонт Выполнен качественный ремонт от застройщика: Стены оклеены обоями под покраску. Можно легко изменить цвет на ваш вкус - В жилых комнатах, прихожей и коридоре полы выполнены из стойкого светлого ламината . Напольное покрытие уложено на звукоизоляционную подложку. В прихожей и коридоре уложена керамогранитная плитка. Плинтус с кабель-каналом. - Поверхность потолков выровнена и окрашена - Установлена противопожарная сигнализация . Видовая квартира с красивыми видами на Москву. Расположение квартиры на этаже вдали от лифтового холла, что обеспечивает тишину и приватность . Современные стандарты жизни: двор без машин, беспороговая доступность в подъезд, наземный паркинг, колясочная, видеонаблюдение, скоростные лифты .Отличная доступность: до метро Тушинская 5 минут пешком, до МЦД-2 Тушино 10 минут пешком . Удобный выезд на Волоколамское шоссе и МКАД . Покровское-Стрешнево - зеленый и экологичный район с развитой инфраструктурой - В шаговой доступности несколько парков, включая парк Покровское-Стрешнево и Долина реки Химки - Зона отдыха Покровский берег с пляжем, парком, детскими и спортивными площадками Квартира получена по реновации, один взрослый собственник. Альтернатива.