Если цена в объявлении изменится, мы сразу сообщим вам об этом на электронную почту.
Нажимая «Подписаться», вы соглашаетесь с правилами.
продам коттедж, 1 Маевки аллея79 800 000 ₽
16 янв
Дата публикации объявления
Обн. вчера
Дата обновления объявления
1
Количество просмотров (+ просмотры за сегодня)
121 721 ₽/м²
Чистая продажа
Термин "Чистая продажа" означает, что в квартире никто не прописан или
есть куда выписаться и вывезти вещи. Это лучший вариант для покупателя.
Вероятность срыва сделки минимальна.
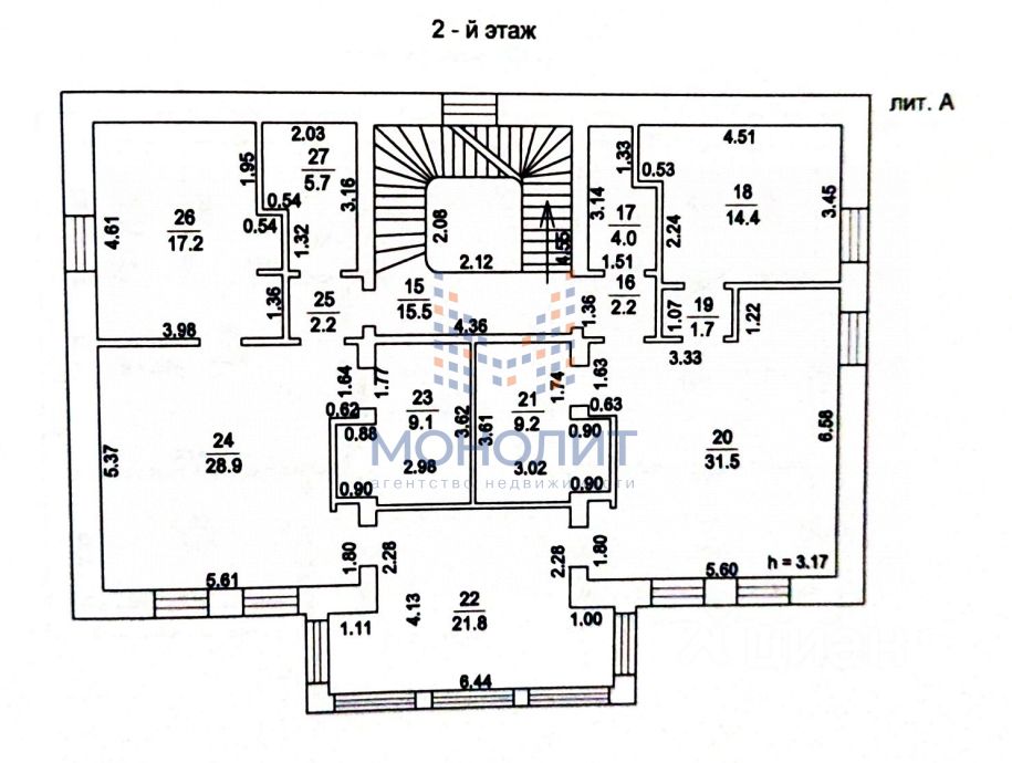
Этажей3
Площадь участка5,97 соток
Общая площадь655,6 м2
Материал домакирпич
ЭлектричествоЕсть
Газоснабжениецентральное
Продается Шикарный КОТТЕДЖ в 1,6 км от станции МЕТРО Корниловская, 3 км от МКАДа!
Продается Шикарный КОТТЕДЖ в 1,6 км от станции МЕТРО Корниловская, 3 км от МКАДа!
О ДОМЕ: * 3 этажа, 655,6 кв м, * первый этаж (201,3 кв м) полностью отделан, жилой, всё работает, * 2 санузла запущено, в дальнейшем на других этажах запланировано более сан узлов, * второй и мансардный этажи без ремонта, * стены - кирпич (толщина стены 60 см), фундамент - монолитный, * высота потолка 3,67 м, * панорамные окна, * эл-во 15 кВт, * интернет кабель заведен в дом, * вода центральная, заведена в дом и разведена, * канализация центральная, городская, заведена в дом и разведена, * трубы приточно-вытяжной вентиляции разведены по дому, * отопление газовое, газ в дом заведен, подключен, отопление, в том числе, тёплые полы и горячая вода функционируют.
УЧАСТОК: * 5,97 соток, * огорожен забором, * перед входом в дом бетонированные и вымощенные брусчаткой парковочные места, * высокое крыльцо с лестницей, * во дворе газонная трава, высажены туи, кустарник вдоль забора, выполнен палисадник, * навес для автомобиля, который можно превратить в эксплуатируемую зону, * выполнен дренаж участка ниже фундамента, вывод дренажа осуществлен в центральную ливневую канализацию.
ИНФРАСТРУКТУРА: * внутри Коттеджного посёлка асфальтированные дороги, * шлагбаум, охрана, гостевая парковка, * 500 метров до остановки автобусов, маршрутных такси на Калужском шоссе, * 900 метров до школы 547 ''Логика'' и до детского сада ''Белый кролик'', * 1 км до всех магазинов, кофейни, пекарни, площадки с настольным теннисом, прогулочной зоны, * Салоны красоты, химчистки, стоматологии, школа современного искусства, пункты выдачи, кондитерские, аптеки, банки, зоомагазин, фитнес-центры и многое другое в Испанских кварталах, * подъезд асфальтирован, чистят круглогодично.
ДОКУМЕНТЫ: * 1 взрослый собственник - физ лицо, * прописка г. Москва сразу после покупки дома, * обременений нет.
Не упустите свой шанс приобрести Шикарный КОТТЕДЖ в 1,6 км от станции МЕТРО Корниловская, 3 км от МКАДа по САМОЙ выгодной цене! Звоните прямо сейчас, чтобы узнать больше информации и договориться о просмотре. Мы гарантируем безопасную сделку и юридическую поддержку нашим клиентам. Поможем одобрить ипотеку с сниженной ставкой.