Офис 6 017 м² в бизнес-центре ''СТОУН Савеловская (Башня 2)'' (класс A) - подходит для собственного бизнеса или сдачи в аренду. Рассчитаем доходность и поможем найти арендатора под этот объект.
Ключевые параметры: Площадь: 6 017 м². Рабочие места: 502-1337*. Планировка: смешанная. Состояние: под отделку. Этаж: 3, 13, 14, 24 из 24. Налоговая: 15. Метро рядом: м. Савёловская в 4 минутах пешком, м. Савёловская в 7 минутах пешком, м. Марьина Роща в 17 минутах пешком.
Офис 6 017 м² в бизнес-центре ''СТОУН Савеловская (Башня 2)'' (класс A) - подходит для собственного бизнеса или сдачи в аренду. Рассчитаем доходность и поможем найти арендатора под этот объект.
Ключевые параметры: Площадь: 6 017 м². Рабочие места: 502-1337*. Планировка: смешанная. Состояние: под отделку. Этаж: 3, 13, 14, 24 из 24. Налоговая: 15. Метро рядом: м. Савёловская в 4 минутах пешком, м. Савёловская в 7 минутах пешком, м. Марьина Роща в 17 минутах пешком.
Бизнес-центр ''СТОУН Савеловская'' класса А расположен рядом с метро Савеловская.
Удобный выезд на: ТТК, Бутырская улица.
Инфраструктура здания: Подземная и наземная многоуровневая парковка, столовая, кафе и ресторан, продуктовый магазин, торговые помещения, аптеки, банкоматы, фитнес-центр.
В пешей доступности: ТЦ ''Савеловский''.
Юридические адреса обслуживаются в налоговой 15.
Коммерческие условия: Стоимость: 3 295 197 000 руб. Цена за м²: 547 648 руб. Налог: включая НДС. Тип договора: ДКП БНВ Без комиссии.
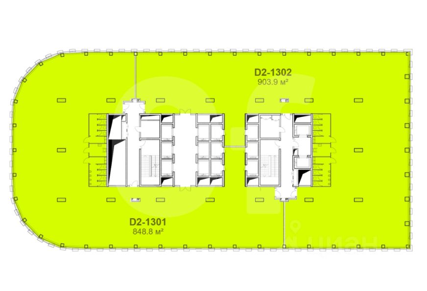
Этот лот состоит из нескольких помещений: 1813 кв. м., 849 кв. м., 1531 кв. м. и 1824 кв. м.
По данному объекту: Поможем рассчитать потенциальную доходность и окупаемость. Оценим возможный арендный поток по текущему рынку. При необходимости подберём арендатора.
Если объект рассматривается для инвестиций: Подберём сопоставимые варианты в этом районе для сравнения. Поможем оценить ликвидность и перспективу перепродажи.
Позвоните - организуем просмотр, пришлём презентацию и расчёты по доходности и вариантам использования объекта. *Количество рабочих мест рассчитано автоматически: от 4,5 до 8 м² на человека. ID объекта: 033401