Лот 151822.
Предлагается в продажу торговое помещение в клубном доме DeLuxe по адресу: г. Москва, Дербеневская наб., дом 1, ЖК OPUS, всего в 1 мин. от Садового кольца, 7 мин. езды от Кремля по набережной. Первая линия Москвы-реки, рядом с историческим центром.
Срок передачи ключей 2 кв. 2026 г.
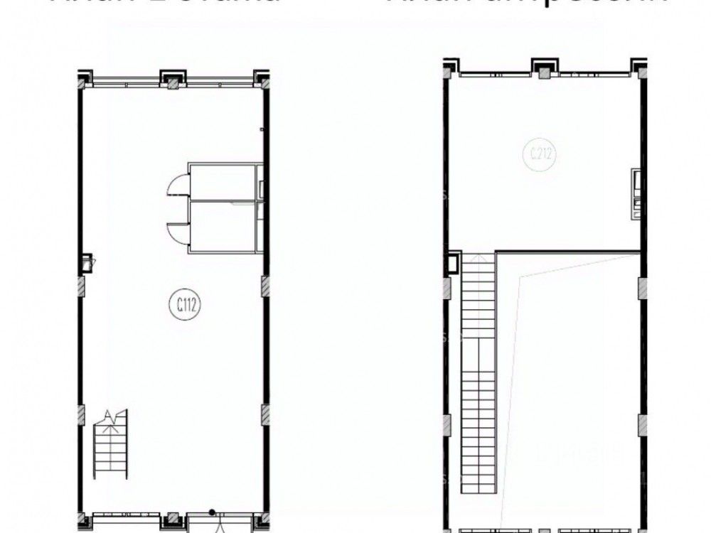
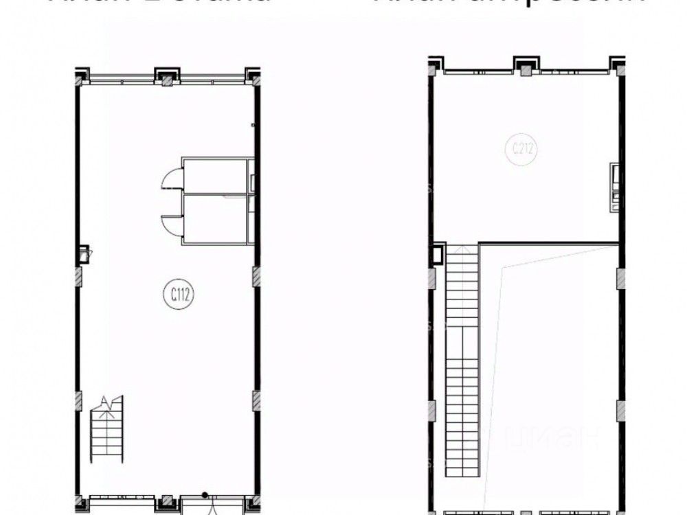
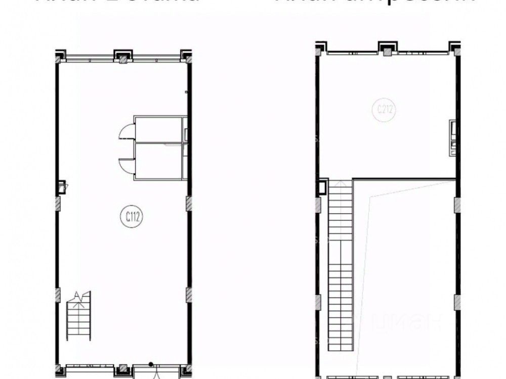
Технические характеристики: общая площадь 155,8 кв.м. • первый этаж с антресолью в жилом 12 этажного дома • электроэнергия 31,16 кВт. • отдельных вход • без отделки • площадь 1го этажа 112,8 кв.м., антресоль 43,1 кв.м.
Коммерческие условия:
• Стоимость 135 951 080 рублей
• Стоимость кв.м. 872 600 рублей
• Продажа по ДДУ от юр.лица















