Если цена в объявлении изменится, мы сразу сообщим вам об этом на электронную почту.
Нажимая «Подписаться», вы соглашаетесь с правилами.
продам 1-к, Подъемная, 14 ст258 050 000 ₽
14 янв
Дата публикации объявления
Обн. вчера
Дата обновления объявления
3
Количество просмотров (+ просмотры за сегодня)
223 611 ₽/м²
Чистая продажа
Термин "Чистая продажа" означает, что в квартире никто не прописан или
есть куда выписаться и вывезти вещи. Это лучший вариант для покупателя.
Вероятность срыва сделки минимальна.
Продаётся студия в современном апарт-комплексе с полноценной двухэтажной планировкой.
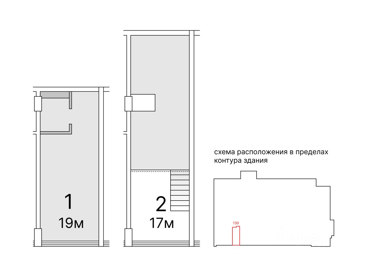
Площадь первого этажа по документам — 18,4 м². Планировка выполнена в два полноценных этажа, что создаёт ощущение значительно большего пространства и позволяет комфортно разделить жилые зоны. Общая площадь квартиры 36 м². Высота потолков — 6 метров.
Планировка: Первый этаж — кухня-гостиная. Второй этаж — спальня, гардеробная и зона под прачечную. На втором этаже предусмотрены выводы под стиральную машину и сушилку. Санузел совмещённый.
Апартаменты расположены на 1 этаже 4-этажного дома. Окна выходят во двор — тихо и спокойно.
Состояние: Косметический ремонт. Можно заехать и жить сразу.
Продаётся студия в современном апарт-комплексе с полноценной двухэтажной планировкой.
Площадь первого этажа по документам — 18,4 м². Планировка выполнена в два полноценных этажа, что создаёт ощущение значительно большего пространства и позволяет комфортно разделить жилые зоны. Общая площадь квартиры 36 м². Высота потолков — 6 метров.
Планировка: Первый этаж — кухня-гостиная. Второй этаж — спальня, гардеробная и зона под прачечную. На втором этаже предусмотрены выводы под стиральную машину и сушилку. Санузел совмещённый.
Апартаменты расположены на 1 этаже 4-этажного дома. Окна выходят во двор — тихо и спокойно.
Состояние: Косметический ремонт. Можно заехать и жить сразу.
Апарт-комплекс: •закрытая территория •круглосуточная охрана •видеонаблюдение •спортзал •бильярдная •прачечная •зоны хранения
Парковка: •большая наземная парковка на территории комплекса •въезд под шлагбаум
Локация: Метро Авиамоторная и Площадь Ильича — около 16 минут пешком или 10 минут на транспорте. Вся городская инфраструктура в пешей доступности.
Подходит для проживания и инвестиционных целей. Формат двухэтажных апартаментов пользуется стабильным спросом у арендаторов. Объект легко сдаётся, средняя рыночная ставка аренды — около 60 000 ? в месяц (ориентир по рынку).
Продажа напрямую от собственника. Полный комплект документов готов. Сделка сопровождается юристами с полным документальным оформлением.