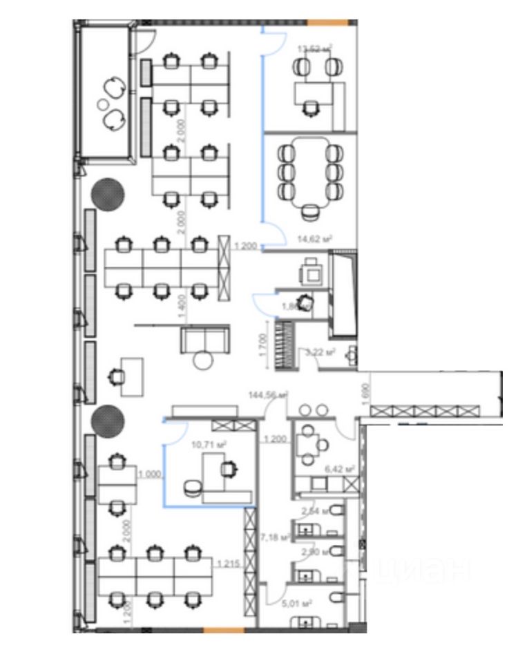
Сдается офис площадью 220 м² с видом на ТТК, расположенный на 16 этаже в башне ''Space Tower'' деловых небоскребов класса ''A'' iCity.
Высокие потолки 3,75 м и панорамное остекление обеспечивают прекрасную естественную освещенность. Архитектором проекта является всемирно знаменитый Хельмут Ян.
БЦ имеет 24 пассажирских лифта + 1 грузовой, а также парковку на 942 машиноместа.
Работы по отделке осуществляет компания CRE construction.
Помещение будет готово к заезду в середине мая 2026 года.
Также к данному объекту предлагается в аренду машиноместо.
Оперативный показ.
Готовы к работе с агентами.
Использование и копирование любых материалов без разрешения запрещено.






























