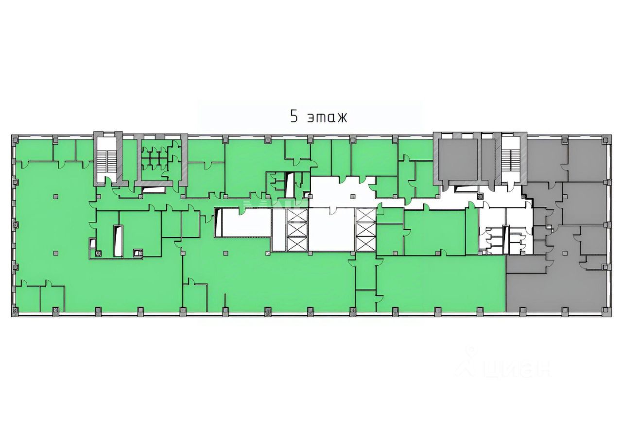
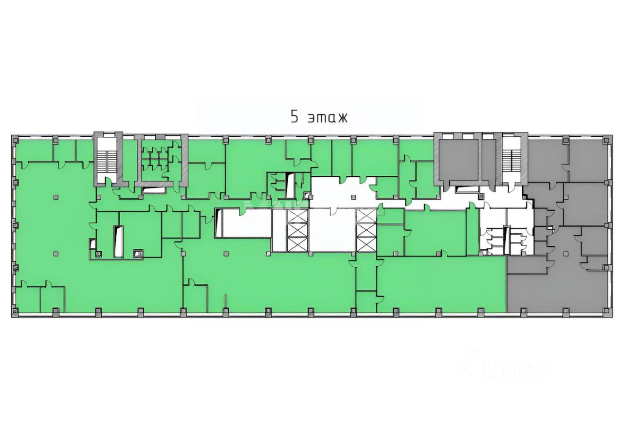
Лот: 47954pd. Офисный центр класса B+ расположен в северном округе Москвы на Новодмитровской улице в непосредственной близости от станции метро Дмитровская (5 мин. пешком) и в 5 минутах езды от ТТК. Эффективные планировки, естественное освещение, кафетерий на 400 кв.м.
Здание площадью 21 349 м², 2008 года постройки, имеет 9 этажей, относится к классу B.
На территории есть парковка, доступ в здание - пропускная система, 4 лифта, в здании есть конференц-зал, столовая, банкомат, центральная рецепция, кафе.





















