Если цена в объявлении изменится, мы сразу сообщим вам об этом на электронную почту.
Нажимая «Подписаться», вы соглашаетесь с правилами.
продам 3-к, Лихачева проспект, 2046 800 000 ₽
6 янв
Дата публикации объявления
Обн. вчера
Дата обновления объявления
3
Количество просмотров (+ просмотры за сегодня)
Топ
Спецпредложение
Выделение цветом
Турбо x2
Турбо x4
Турбо x8
535 469 ₽/м²
Чистая продажа
Термин "Чистая продажа" означает, что в квартире никто не прописан или
есть куда выписаться и вывезти вещи. Это лучший вариант для покупателя.
Вероятность срыва сделки минимальна.
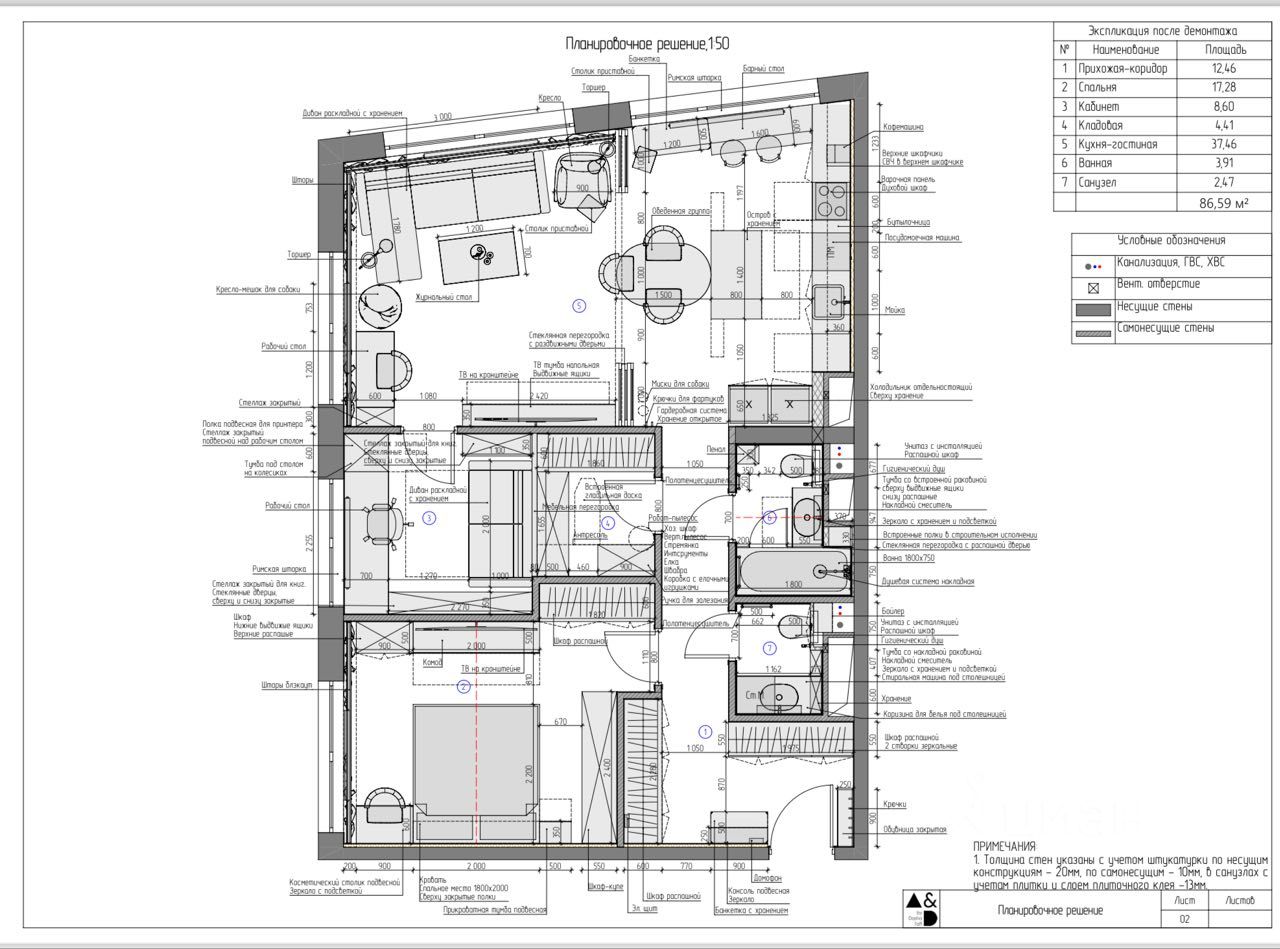
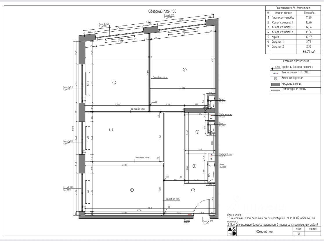
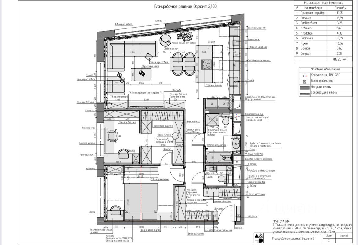
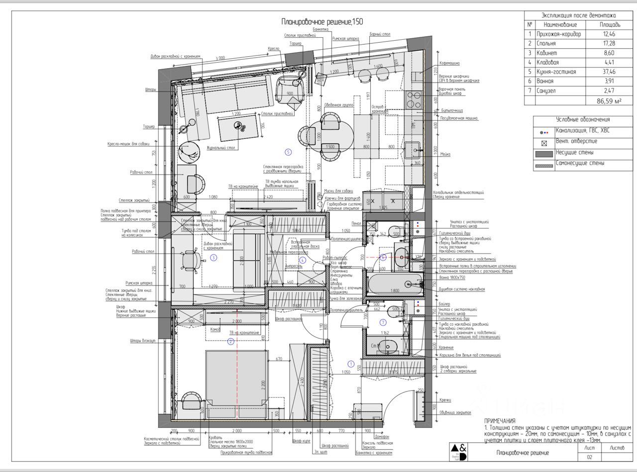
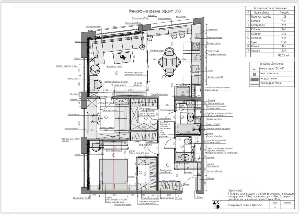
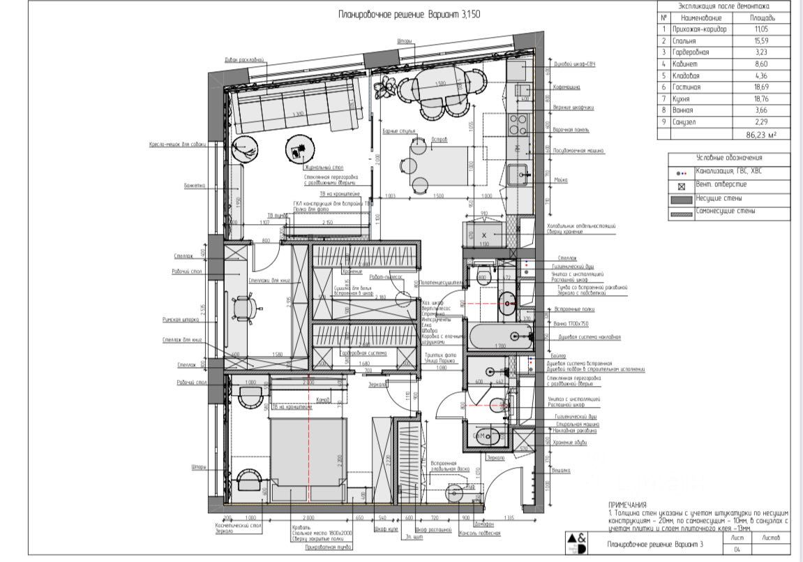
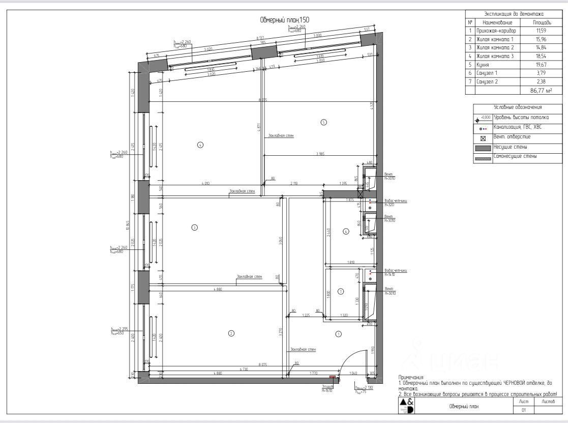
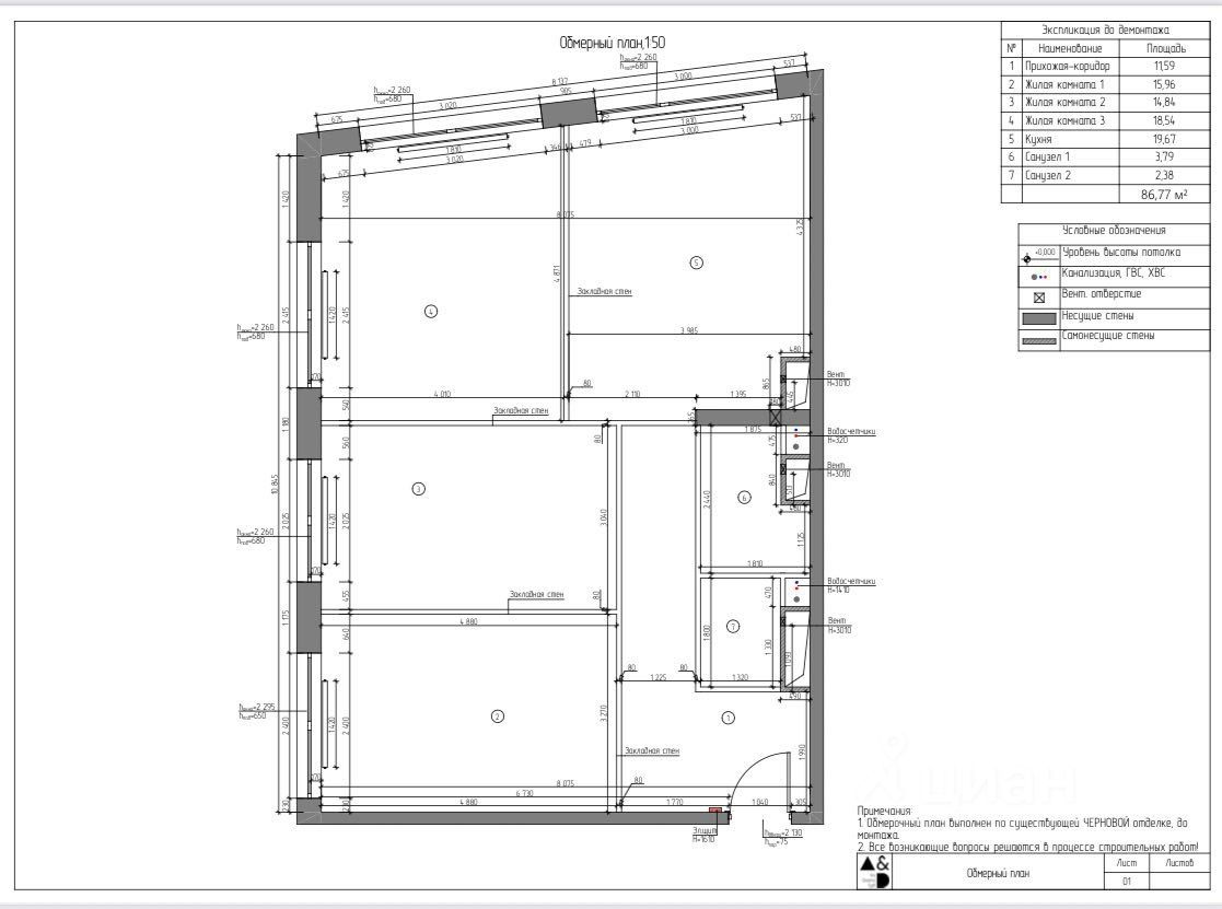
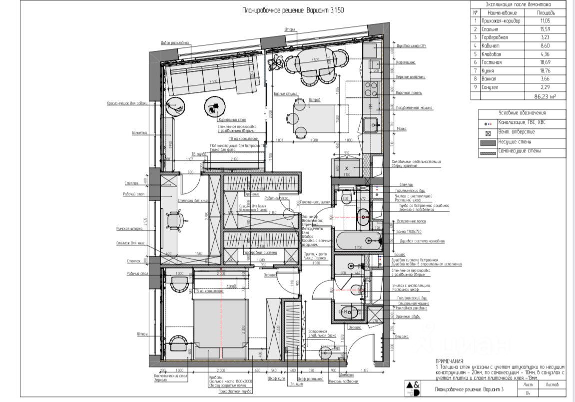
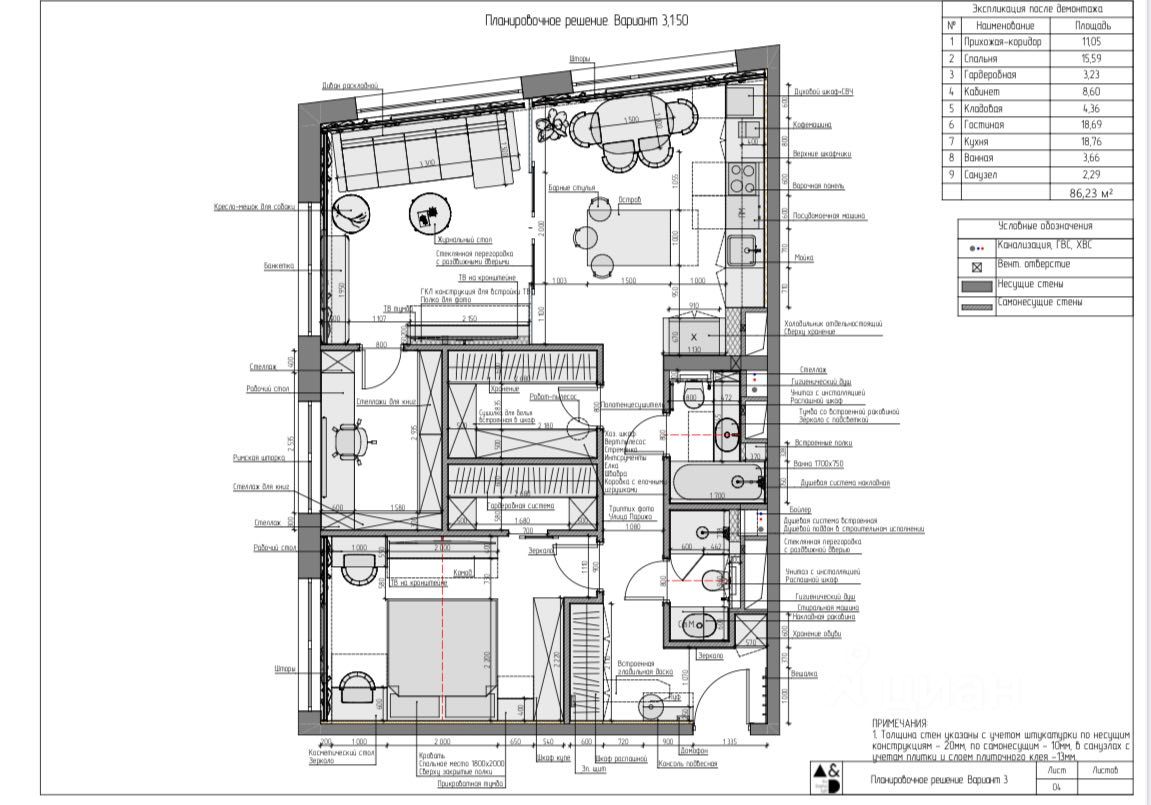
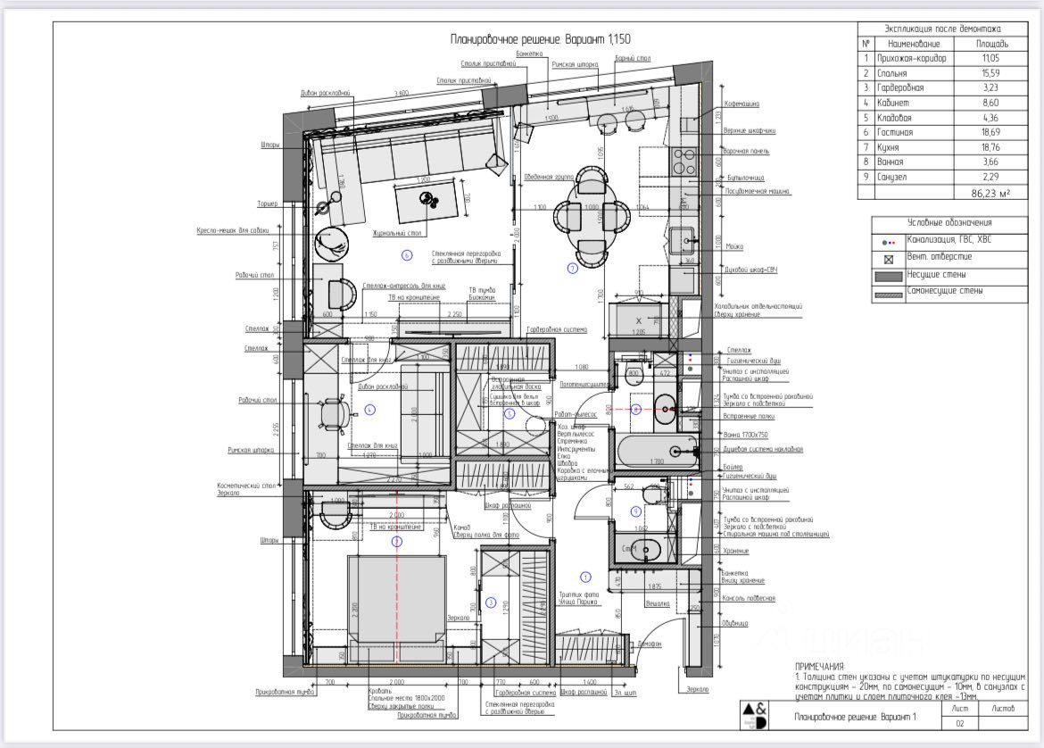
3-х комнатная квартира, вид на Москва-реку. Удобную и комфортную для себя планировку можно создать самим. Без отделки, без межкомнатных стен, с высокими потолками. Дом сдан в 2023 году. Осадка дома уже произошла, поэтому данный период - наверное, самое лучшее время ремонта. Метро Технопарк в 14 минутах ходьбы. Проектная площадь - 87,4 кв.м. Мы делали дизайн-проект для себя, с разными вариантами, можем поделиться. На фото - виды возможных планировок, с большой гостиной, объединенной с кухней (пространство больше 38 кв.м), спальней, гардеробной, небольшим кабинетом, двумя полноценными санузлами (в одном из санузлов - ванна). Окна выходят на 2 стороны.
В гостиной/кухне - три больших окна, с видом на Москва-реку.
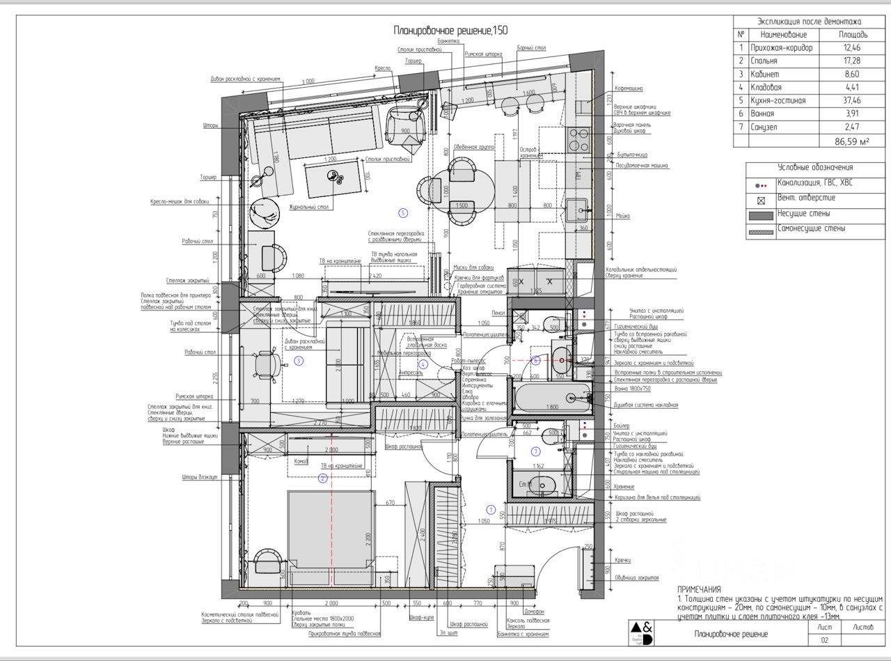
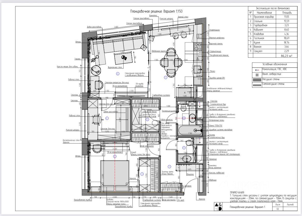
3-х комнатная квартира, вид на Москва-реку. Удобную и комфортную для себя планировку можно создать самим. Без отделки, без межкомнатных стен, с высокими потолками. Дом сдан в 2023 году. Осадка дома уже произошла, поэтому данный период - наверное, самое лучшее время ремонта. Метро Технопарк в 14 минутах ходьбы. Проектная площадь - 87,4 кв.м. Мы делали дизайн-проект для себя, с разными вариантами, можем поделиться. На фото - виды возможных планировок, с большой гостиной, объединенной с кухней (пространство больше 38 кв.м), спальней, гардеробной, небольшим кабинетом, двумя полноценными санузлами (в одном из санузлов - ванна). Окна выходят на 2 стороны.
В гостиной/кухне - три больших окна, с видом на Москва-реку.
Огороженная охраняемая территория. Подземный паркинг. Двор с детскими и спортивными площадками. Развитая инфраструктура, красивые набережные для прогулок, недалеко хороший парк вокруг торгово-развлекательного комплекса - Остров Мечты, в пешей доступности - Южный речной вокзал, с речными трамвайчиками. Есть обременение-не полностью погашенная ипотека от Сбербанка, безопасно гасится при продаже, через сам Сбер (ДомКлик). На всякий случай, от банка имеется разрешение на продажу.
Объявление от собственника. К сожалению, много звонков от агентов и агентств, поэтому просьба писать сообщения здесь, в циан, на сайте, укажите свой номер в сообщении, я перезвоню или напишу.
С приходом Весны Вас! Исполнения желаний, здоровья, счастья и всего наилучшего, Вам и всем, кто Вам дорог!