Термин "Чистая продажа" означает, что в квартире никто не прописан или
есть куда выписаться и вывезти вещи. Это лучший вариант для покупателя.
Вероятность срыва сделки минимальна.
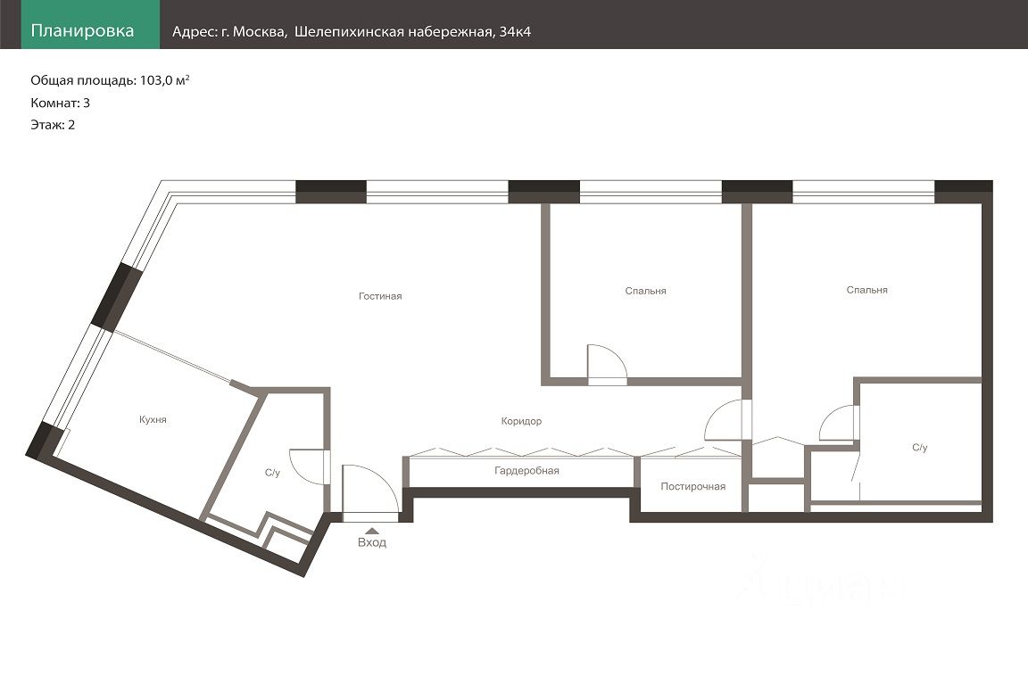
ЛОТ 25143. Предлагается 3-комнатная квартира в ЖК ''Сердце Столицы'', расположенном на набережной Москва-реки. Интерьер квартиры выполнен с использованием качественных натуральных материалов. Квартира полностью укомплектована мебелью, предметами интерьера, оборудована современной бытовой техникой и готова к проживанию. Функциональная планировка включает в себя кухню, гостиную-столовую, мастер спальню с ванной комнатой, вторую спальню, гостевой санузел. Сердце Столицы - современный городской квартал, состоящий из 9 жилых корпусов, школы, детского сада, офисного центра. Комплекс располагается вдоль обустроенной городской набережной с прогулочной зоной. Жилые дома находятся на огороженной, охраняемой территории.
ЛОТ 25143. Предлагается 3-комнатная квартира в ЖК ''Сердце Столицы'', расположенном на набережной Москва-реки. Интерьер квартиры выполнен с использованием качественных натуральных материалов. Квартира полностью укомплектована мебелью, предметами интерьера, оборудована современной бытовой техникой и готова к проживанию. Функциональная планировка включает в себя кухню, гостиную-столовую, мастер спальню с ванной комнатой, вторую спальню, гостевой санузел. Сердце Столицы - современный городской квартал, состоящий из 9 жилых корпусов, школы, детского сада, офисного центра. Комплекс располагается вдоль обустроенной городской набережной с прогулочной зоной. Жилые дома находятся на огороженной, охраняемой территории. Внутренний двор без машин, со своим парком, разделяющим корпуса, детскими и спортивными площадками. Круглосуточная служба консьержей. Подземный паркинг. Удобная транспортная доступность и развитая инфраструктура района сделают проживание в квартире еще более комфортным.