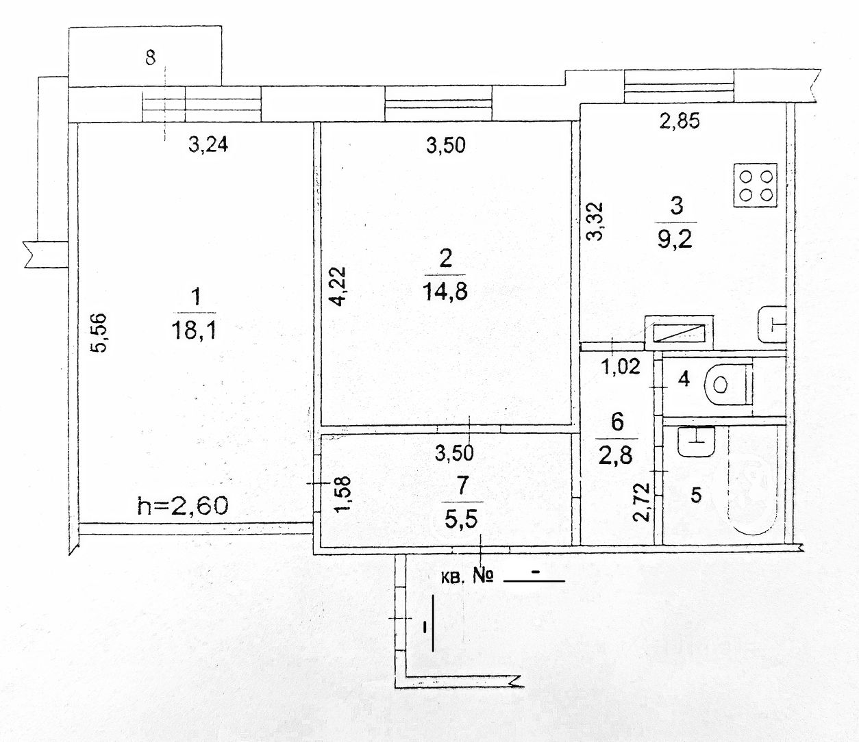
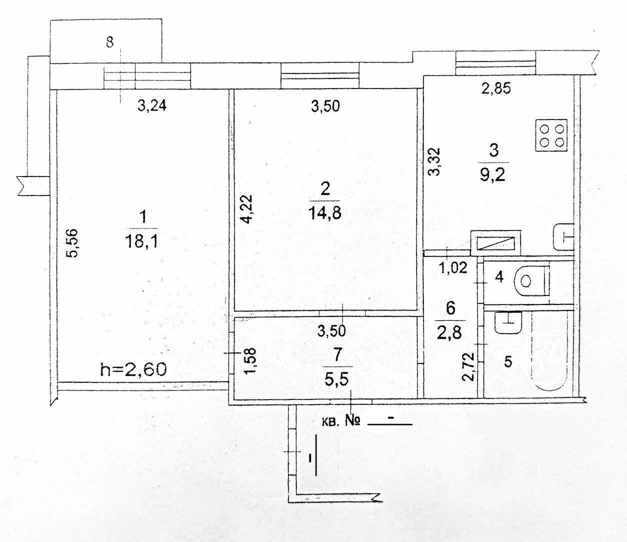
Звёздный городок, ЗАТО, полностью со своей инфраструктурой - школа, дет.сад, поликлиника, милиция, торговый центр, магазины и т.д. Квартира светлая, уютная 2-х-комнатная, с мебелью. Солнечная сторона, с окнами на Восток, вид из окон - лес, жилые дома отсутствуют. Ремонт 2020-2021 гг., не требуется. Квартира в собственности, собственник единственный, освобождена для заезда - можно заезжать.