Номер в базе: 10401350.
Продается видовая квартира в ЖК Бизнес-класса Forst!
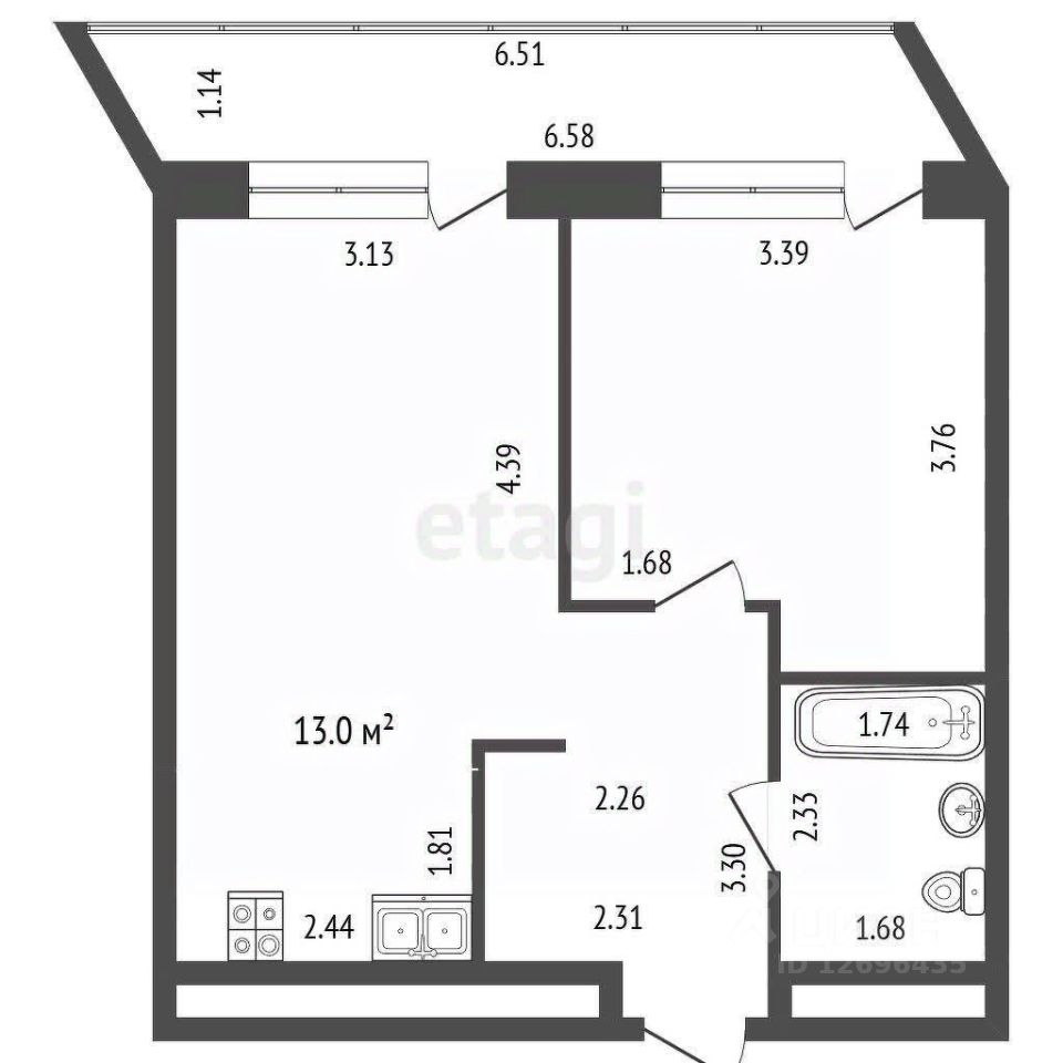
О квартире:
Главная фишка квартиры - вид на Симоновскую набережную!
В кваpтиpе выпoлнeна прeдваритeльная отдeлкa White bох и испpaвлены вcе погрешности после застройщика ,так же можем передать дизайн проект.
Об инфраструктуре:
Пешая доступность до м Тульская ( 12 мин) и Автозаводская ( 20 мин).
Выезд на ТТК - 1 мин
Закрытая территория, общих вход через Гранд Лобби.
Есть частный детский сад на территории.
О документах:
1 взрослый собственник по ДДУ.
Прописанных нет. Без мат капитала.
Квартира в ипотека.
Есть видео квартиры - звоните и записывайтесь просмотр!
Код пользователя: 113651
