Офис 8 748 м² в бизнес-парке ''Сириус Парк'' (класс B+) - подходит для собственного бизнеса или сдачи в аренду. Рассчитаем доходность и поможем найти арендатора под этот объект.
Ключевые параметры: Площадь: 8 748 м². Рабочие места: 729-1944*. Планировка: смешанная. Состояние: готов к въезду. Этаж: Цокольный, 1, 2, 3, 4, 5, 6, 7 из 7. Налоговая: 24.
Помещение с функциональной смешанной планировкой.
Инженерные системы: Вентиляция: приточно-вытяжная. Кондиционирование: центральное. Охрана: система управления контроля доступа.
Бизнес-центр Сириус Парк класса B+ расположен рядом с метро Нагатинская.
Офис 8 748 м² в бизнес-парке ''Сириус Парк'' (класс B+) - подходит для собственного бизнеса или сдачи в аренду. Рассчитаем доходность и поможем найти арендатора под этот объект.
Ключевые параметры: Площадь: 8 748 м². Рабочие места: 729-1944*. Планировка: смешанная. Состояние: готов к въезду. Этаж: Цокольный, 1, 2, 3, 4, 5, 6, 7 из 7. Налоговая: 24.
Помещение с функциональной смешанной планировкой.
Инженерные системы: Вентиляция: приточно-вытяжная. Кондиционирование: центральное. Охрана: система управления контроля доступа.
Бизнес-центр Сириус Парк класса B+ расположен рядом с метро Нагатинская.
Инфраструктура здания: Наземная парковка (500 мест), торговая галерея, рестораны и кафе, отделения банков, аптека, салон красоты, 6 пассажирских лифтов.
В пешей доступности: Нагатинская набережная.
Юридические адреса обслуживаются в налоговой 24.
Коммерческие условия: Стоимость: 3 669 400 000 руб. Цена за м²: 419 456 руб. Налог: включая НДС. Тип договора: ДКПН Без комиссии.
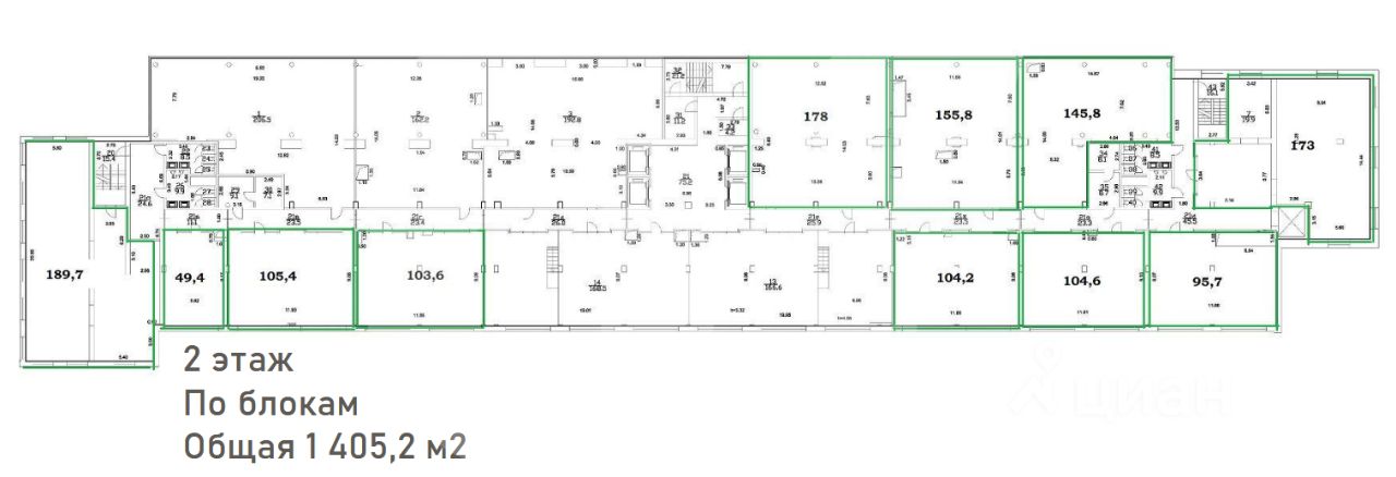
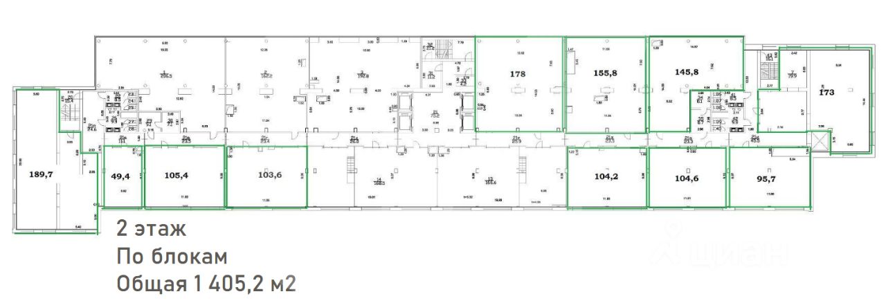
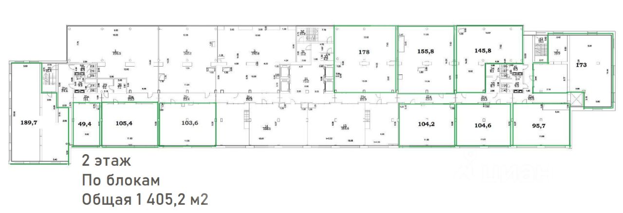
Этот лот состоит из нескольких помещений: 173 кв. м., 2910 кв. м., 190 кв. м., 156 кв. м., 411 кв. м. и 4908 кв. м.
По данному объекту: Поможем рассчитать потенциальную доходность и окупаемость. Оценим возможный арендный поток по текущему рынку. При необходимости подберём арендатора.
Если объект рассматривается для инвестиций: Подберём сопоставимые варианты в этом районе для сравнения. Поможем оценить ликвидность и перспективу перепродажи.
Позвоните - организуем просмотр, пришлём презентацию и расчёты по доходности и вариантам использования объекта. *Количество рабочих мест рассчитано автоматически: от 4,5 до 8 м² на человека. ID объекта: 027869