ТЦ Щелково - 52 000 квм
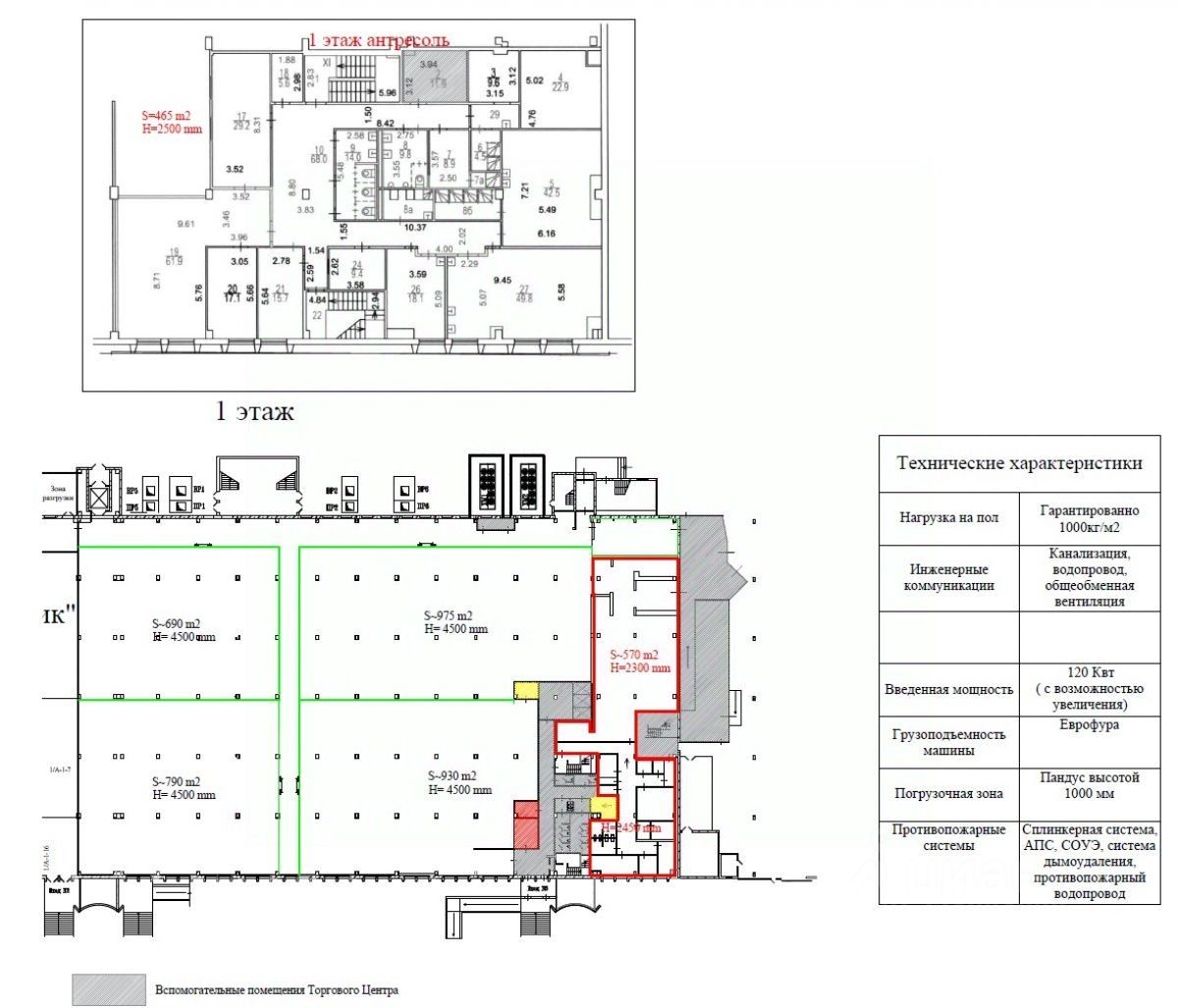
Парковка 500 мм
Первая линия вечерней стороны Щелковского шоссе
Более 750 000 авто - трафик шоссе в сутки
Арендаторы: Космик, Веллтекс, Экономный универмаг 1, МВидео, Спортмастер, Familia, Первый мебельный, Детский мир, Чижик. Лэтуаль, Точка красоты, DNS, Fix price, Вкусно и точка, Burger King, Теремок, Крошка Картошка, Stardogs
Деление на 600/ 700/ 950 кв.м.
Разгрузка пандус 1000 мм
Мощность 120 квт
Нагрузка на пол 1000 кг/квм
Номер объекта: #1/537980/24598








