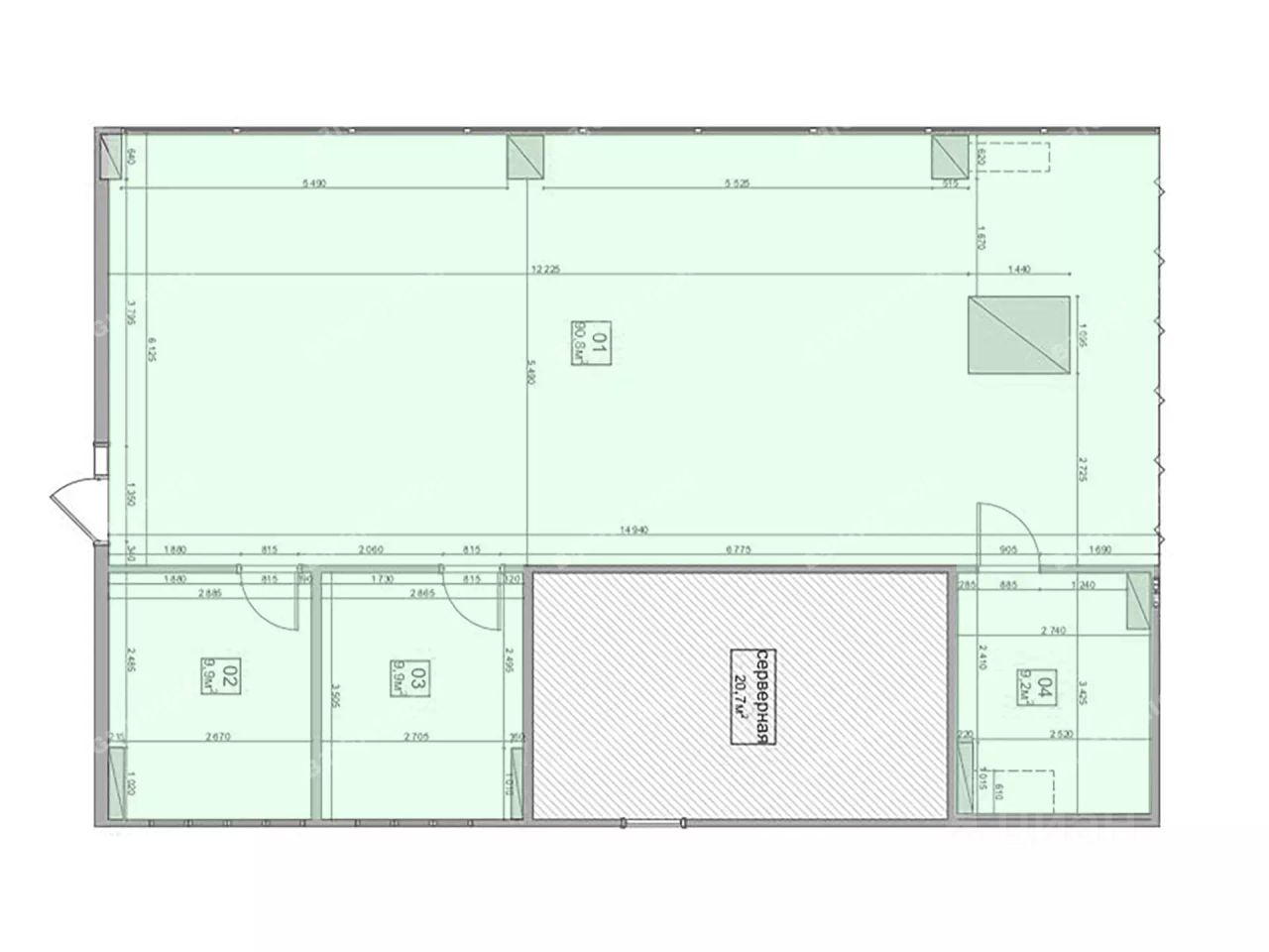
Характеристики: - Класс: B+, - Арендопригодная площадь: 40161, - Код налоговой: 34, - Высота потолков: 3.5 м, - Наличие лифта: Есть, - Кол-во мест наземного паркинга: 323, - Интернет-провайдеры: Глобус Телеком, Мегафон, МТС, Наука-Связь, ПАО ''Вымпелком''.
Арендная ставка: 31 719.6 руб./кв. м в год.
Финансовые условия: - В стоимость включено: OPEX, НДС, - Оплачивается отдельно: Интернет, Коммунальные услуги, Телефония, Уборка, Электроэнергия, - Налог: Включая НДС.
Без комиссии и скрытых платежей для арендатора.
Готовы оперативно организовать просмотр в удобное время, предоставить PDF-презентацию и план. Точное местоположение объекта можно найти по данным координатам: 55.803806,37.490183